本帖最后由 南通华浔品味 于 2017-3-12 11:35 编辑 : a" o- l* X2 E; w/ Q( ~, W6 ^
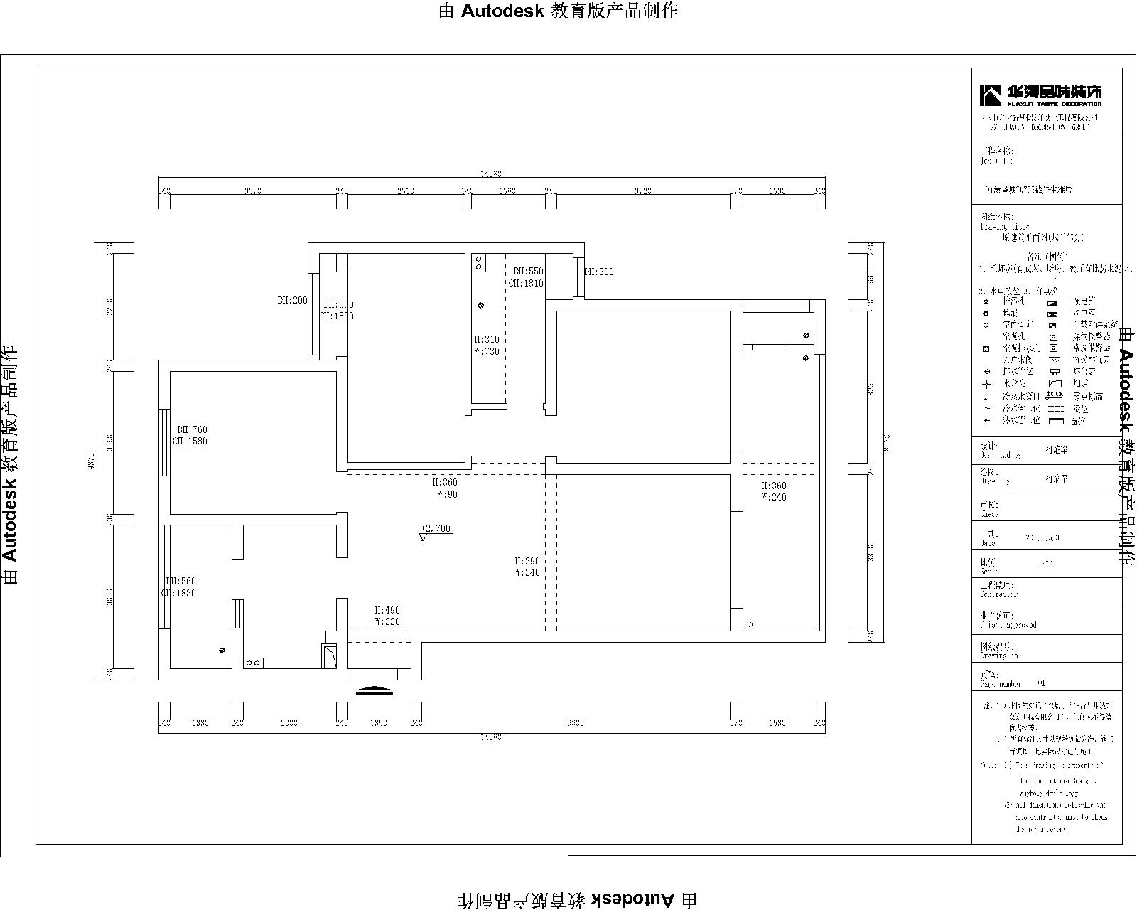
, ~6 j3 t8 w/ @唯有大师级的设计灵感 才能圆梦您的极致人生 尊敬的万濠星城业主: 您好,南通华浔品味装饰精英设计师专家团已将万濠星城的精准样板户型,实地现场量房,从功能布局到主材搭配及软装配饰做了深度解析,并做出各个户型的多套设计方案、平面图、多套风格效果图,备选出适合的相应主材供您挑选,更有几十套在建工地,期待与您一起探讨设计潮流风尚! 有一种设计叫华浔的设计 小区:万濠星城7#603 面积:100 风格:现代简约8 v. G: Q) ?, _
设计说明: 客户是位和蔼可敬的奶奶辛勤培育了出色的两代人,现在这套房子自己住以享天伦之乐。再好再漂亮的设计最终服务于人,所以设计主线功能性与美观度的结合。造型上为充分满足业主的储蓄需求,设计以木质柜体为主要元素和构成。墙面以浅浅的绿色为肌底色,给生活以盎然之感,结合纯纯的烤漆白色柜体碰撞出娇滴滴的柔美感,再加上软装上的元素更添灵动。大面积的纯色下,得以地面返朴的木纹地板,无疑坐实了作用自然,接天地之灵气,取长江之悠久,享天伦之乐哉。 . d; \# o6 o" v2 J# m
% C' P6 W* x3 K& j
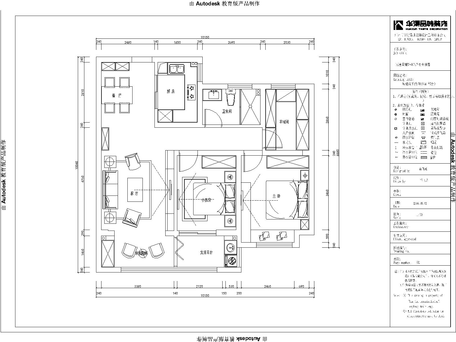
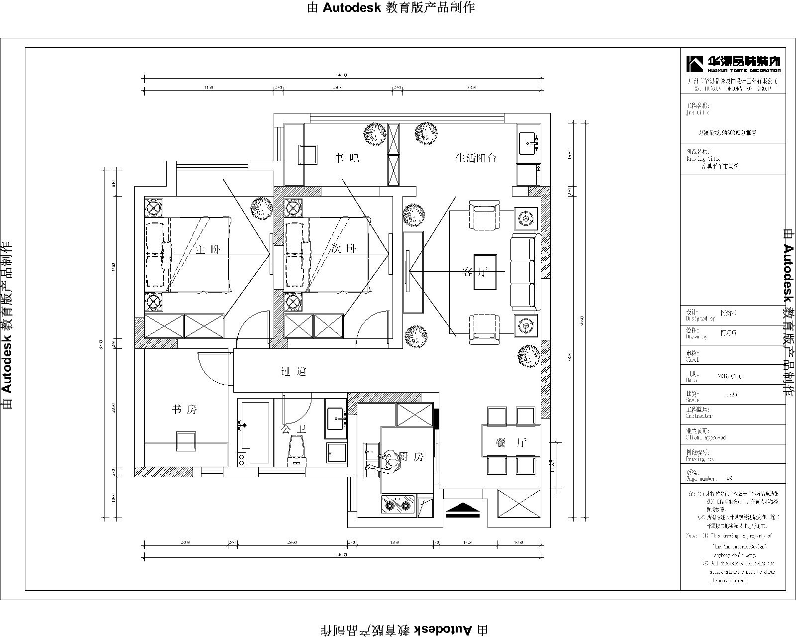
小区:万濠星城7#705 面积:119 风格:田园小清新
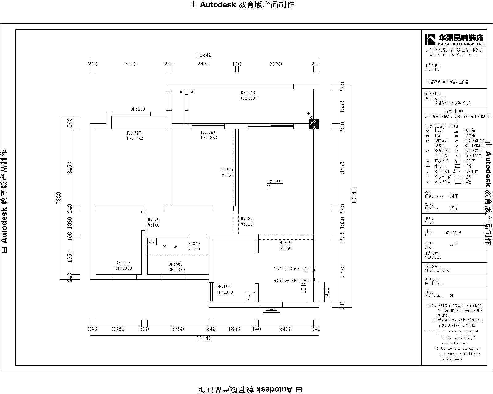
' o [+ l: d% ]& i) Y7 D 设计说明: 本案例风格源于欧洲融合了韩式文化特有的时尚,兼具西方[url=]新古典风格[/url]和东方的后现代的神韵,演绎着韩式文化特有的浪漫,纯真,宁静和自然。 小区:万濠星城19#503 面积:100 风格:现代简约
8 P6 a# P) {# x4 t 设计说明: 家是心灵的港湾。随着人们在旅游中感受到简约的魅力,“简约但并不简单的装饰风格”。当疲惫的身心对家的依恋越发强烈,人们想要的是轻松、自由的环境.
, w3 @4 |3 A7 G- U, `# g& J: f7 k7 o$ ^2 U |0 [5 ^
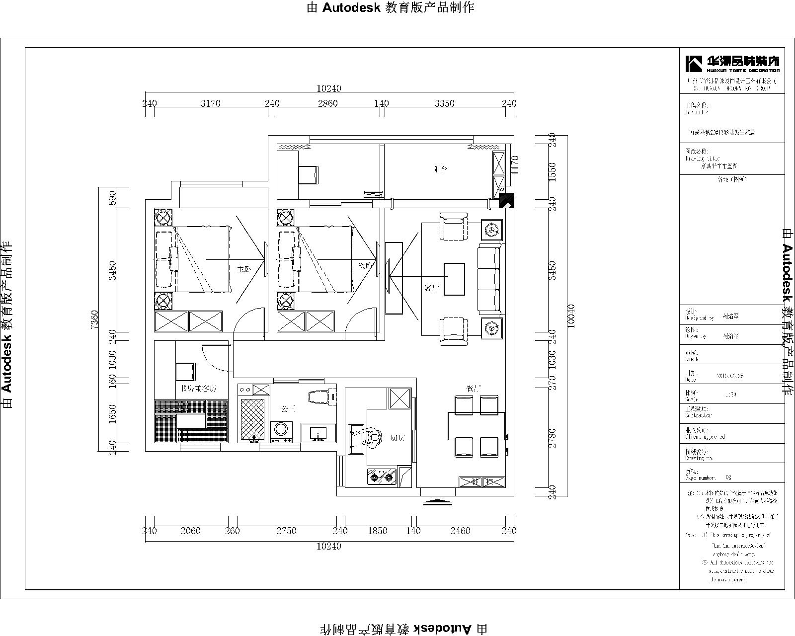
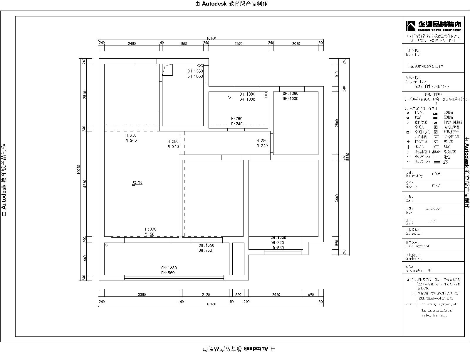
5 k& O# n ^& L- O; e0 Q小区:万濠星城20#1303 面积:100 风格:美式乡村
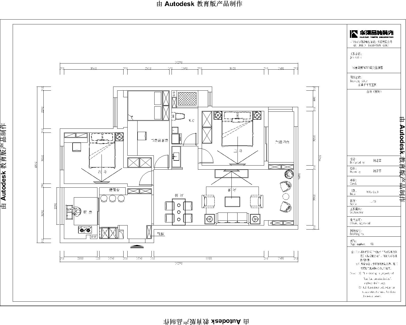
! Y+ P/ ?# n6 [" Q" w. b/ I9 D 设计说明: 本案例摒弃了繁琐和奢华,并将不同风格中的优秀元素汇集融合,以舒适机能为导向,强调“回归自然”,使这种风格变得更加轻松、舒适 小区:万濠星城20#1403 面积:100 风格:现代清新
3 j) M# p+ P3 E4 S# F0 J" c% |- K 设计说明: 本套设计主线时尚前卫。整套设计以浅浅的绿搭配纯纯的白,让整个空间略带一份果色的温馨感,浅绿中撞击着那一抹橄榄绿,那就是电视背景的调色,温馨中不乏小资的性感。整体的开放式厨房让整个小户型顿时开阔,加以吧台的高雅,让空间更有趣味感。
6 C" V1 p6 c/ f- h s
亲爱的业主:
% G4 \% G& t; l不管您准备今年装,明年装、后年装,如果您希望能够拥有一个温馨、美观、环保、健康、时尚、舒适的家居环境,请您百忙之中抽出时间前来“华浔”,亲身体验“华浔”专业的设计理念,专业的施工团队给您带来的与众不同的感受!
- S2 `/ E9 [. @) G9 Q
' ]% H8 S9 \- W3 |! K* Y# h" o5 C% d 为了您的消费权益请选择正规有装修设计资质公司进行装修。
! a6 o; s' ~% Q5 q 3 G; U2 G. V) y- e c. Z
8 a: ^' v0 i" u' b8 i9 W) }
1242761035  南通华浔品味装饰官网: http://nthuaxun.com/index.php 欢迎大家登入,更多了解 南通华浔! 
& c' `% [9 y" b. p6 K关注微信公众号会有更多的惊喜☝☝☝☝☝
* D k4 f- f0 Y0 ~9 B% P
' Z8 q( f) n, D- W+ ]
; `5 B2 q0 J9 w' |6 Q
H" ?% G" [; b. x南通0 |