濠滨论坛

点击扫描二维码

查看: 64187|回复: 9

【品元设计】高级设计师【潘锦芳】简介及作品

[复制链接]

该用户从未签到

发表于 2017-2-17 11:12 | 显示全部楼层 |阅读模式 来自:江苏
5 R& t. {* m2 n; c
3 e' Y, B* v, ?. r/ X/ I: `# R1 Y
幻灯片35.jpg

, Z) m7 Y7 P& T% B2 l8 r8 I. ]9 M8 E2 x& ^% g# I/ l

; W  O- s+ M5 o4 j1 x; L% w" j
2 Q& ?' h0 F% V2 f& r1 _
               所获荣誉:
               品元装饰高级设计师
               ICIAD会员
               软装配饰专家
               注册高级室内设计师
               注册陈设设计师
               中国室内装饰协会专业会员
               擅长风格:
               欧式、中式、后现代
               设计理念:
               崇尚自然舒适的完美空间!
               成功案例:
              【骏和棕榈湾】 【万濠华府】【保利香槟国际】【万达华府】
              【绿城玉兰公寓】 【万濠世家】 【尚海城】 【优山美地名邸】
              【绿墅湾】 【城市嘉苑
3 P. s/ ~7 [. V8 q$ W* v

3 f; Z. i. T$ ^7 @  K南通0

该用户从未签到

 楼主| 发表于 2017-2-17 15:17 | 显示全部楼层 来自:江苏
北城名郡2 i$ `3 b+ _9 k" B
1副本_副本.jpg 2副本(5)_副本.jpg
1 o% K6 ^: ?) _! m" {5 d$ I
回复 支持 反对

使用道具 举报

该用户从未签到

 楼主| 发表于 2017-2-17 15:19 | 显示全部楼层 来自:江苏
德成翠湖湾 1副本_副本.jpg 2副本_副本.jpg
* o/ e0 n  i2 Q7 Q! ]; y$ D& [
回复 支持 反对

使用道具 举报

该用户从未签到

 楼主| 发表于 2017-3-3 13:55 | 显示全部楼层 来自:江苏
【楼盘名称】:香溢紫郡
2 c$ d3 ?& h4 E7 S【建筑面积】:114㎡+ r, S5 I% u& n9 t
【装修方式】:半包
1 s/ Y3 K# C! _. V【设计师】:潘锦芳
- z# J5 F5 X. P9 l% F% T【设计风格】:简约# h( m) c- r6 w3 |
【项目经理】:王志华
# X! C7 K5 W# G: o' u【监理】:孙苏
  I5 w2 q! W- g8 P1 ]% n9 H【开工日期】:2017年3月1日
% t6 \, K# ?5 _) _【完工日期】:2017年7月10日
+ N! F5 [# G: `; C/ e5 `3 d8 T【施工单位】:品元装饰国际设计中心
: J" K( W3 h( t0 I原始结构图:* U! v1 y8 w7 V! a! K! a/ D0 e
8 p4 t& r, a% H0 J: [7 r5 Z
8 W. u% r' A: a* f& o
平面方案:
" t8 j. |# \8 `4 ]
* A; P' t8 z$ U* ^2 J5 }/ s, D
6 R/ p. D+ C* E, {/ ~- A
效果图:
7 E: g7 @  Y  B3 `; S0 R: ]& D/ @! S

# t: R9 B# d( `/ i1 n4 o& r& U

( `6 h3 z; ^1 i2 Q; n

" K6 L3 o2 Y4 p, c& N2 P
' i6 P. O/ M; s1 Q7 C4 T; G8 R$ R
回复 支持 反对

使用道具 举报

该用户从未签到

 楼主| 发表于 2017-3-17 13:18 | 显示全部楼层 来自:江苏
【楼盘名称】:金水湾
【建筑面积】:103㎡
【装修方式】:半包
【设计师】:潘锦芳
【设计风格】:新中式
【项目经理】:马宏山
【监理】:蔡培兴
【开工日期】:2017年3月16日
【完工日期】:2017年7月16日
【施工单位】:品元装饰国际设计中心

+ A1 ~5 Q( Z! E- Y
原始结构图:

/ s/ P2 e6 A7 C4 b6 l' J
平面方案:

8 L" A1 W! X$ `) o
效果图:

' a3 N. j) \9 p2 k3 g) o( u2 K

8 P, I5 V3 R* g/ u' p7 q/ N

7 `+ Z0 [0 H3 N& j9 R1 p
回复 支持 反对

使用道具 举报

该用户从未签到

 楼主| 发表于 2017-3-24 23:58 | 显示全部楼层 来自:江苏
【楼盘名称】:华强城+ R7 {$ Z8 M' q& r
【建筑面积】:106㎡; j5 U  S" J. K% M5 C$ u9 X6 c8 G
【装修方式】:半包
% J& Z9 p0 I- s2 _# K; J" {- N, M【设计师】:潘锦芳
3 m: X  {+ M# |8 ~【设计风格】:现代
$ d; s6 ]# {% U" g' `& D【项目经理】:顾忠林
1 I/ ]0 L6 ~, @* i0 w9 p【监理】:欧开峰
% g8 k8 ^. O/ q8 L, t- w【开工日期】:2017年3月24日
+ ]+ a) D, u( N4 H7 c# z【完工日期】:2017年7月24日
% [; f- p; u; q, A1 z- n【施工单位】:品元装饰国际设计中心: c- J4 ?& u" z  r8 o% N( E, h
& Y- Z* Y( ~0 Q) ?
原始结构图:
  H  |& s7 t6 x0 ~* Y7 f
平面方案:

# R( P' `$ t% c) L+ w' {% }
效果图:

  j$ _8 T% M: e/ `

4 s, G6 u& [0 B

- S: q1 M# D5 [7 f7 L9 y  {7 \
回复 支持 反对

使用道具 举报

该用户从未签到

 楼主| 发表于 2017-3-31 22:38 | 显示全部楼层 来自:江苏
" `4 T$ ?, M& m5 \* j

% ^9 P. a9 \& K: I【楼盘名称】:万濠世家( H# S! b6 C8 s% X
【建筑面积】:120㎡; o! N( U+ p4 }
【装修方式】:半包
, a/ N! F7 E3 L1 t* _5 b, u【设计师】:潘锦芳
% H! y4 F$ n6 K【设计风格】:现代简约$ _1 x0 Q1 y" v0 Y
【项目经理】:江彬/ f' M( d9 ]" Y# `
【监理】:蔡培兴/ V$ ~& L7 u4 y1 x+ w# J( J5 I
【开工日期】:2017年3月25日8 I! X7 Z% Z9 p, u& s9 }
【完工日期】:2017年7月25日: l+ {/ u1 [: Y: V6 d
【施工单位】:品元装饰国际设计中心. D- J- p- o! i

( P9 X6 q9 A, P1 q5 ~: t: i
原始结构图:
+ m) Q# j7 |" Z! |/ q' L1 n: y
平面方案:

$ m% X9 [& B% Y& g0 v
效果图:
% h& Z% G- c% o& g  W
* a* Z4 |7 L8 \* x" x  x
回复 支持 反对

使用道具 举报

该用户从未签到

 楼主| 发表于 2017-4-14 14:34 | 显示全部楼层 来自:江苏
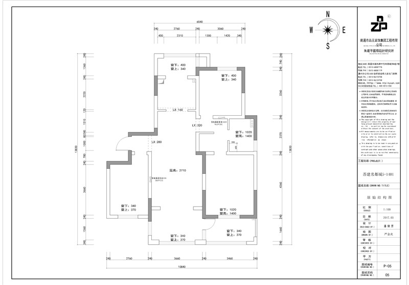
【楼盘名称】:苏建名都城
【建筑面积】:112㎡" }, T, O: e' z# Q, }0 h+ ~
【装修方式】:半包3 H$ {0 e3 N5 i% {( i+ F
【设计师】:潘锦芳
* w7 |; q) ?1 {; q: @3 ~* C【设计风格】:简约0 D0 B) J* `& T5 X
【项目经理】:黄成4 l; d: r! ^! M4 K3 m
【监理】:郭锡宏
% n7 B0 Q/ z  t; X, x, L【开工日期】:2017年4月9日$ j) x; `: H$ {/ {  c& ~, H
【完工日期】:2017年8月9日
9 J8 w7 v2 H* ^( d: E2 T6 ]' w【施工单位】:品元装饰国际设计中心
3 m) y, O$ b( Q  t
0 @7 X3 x  f& Z
原始结构图:
) @3 G+ [  y5 @! y$ g% B

7 {& l1 X; w' j& a; E9 Q& g5 \. u: p. N
平面方案:
. A4 Q2 o+ v0 N" \/ \

* J7 U9 h* j, Q/ ?% M% _1 d

$ v9 W9 `0 X7 d7 m6 I' o
效果图:
; {% W# k( O+ P. E; K- W
: o9 F+ d0 _: z# K! B6 r
回复 支持 反对

使用道具 举报

该用户从未签到

 楼主| 发表于 2017-4-14 14:55 | 显示全部楼层 来自:江苏
【楼盘名称】:万濠星城
【建筑面积】:115㎡( `; |6 A! f3 f9 s& ]( M
【装修方式】:半包
2 G( W7 P. N- G【设计师】:潘锦芳
/ S/ V' _8 G+ d! d7 K4 T【设计风格】:美式" T4 S3 _  v. H! N+ e. F+ O
【项目经理】:顾陆军
/ |' W9 O% }5 S, ?' u9 Q0 p【监理】:欧开峰
5 t  o# _' z! J: f2 {【开工日期】:2017年4月9日( B6 E3 c  }9 e, e. t
【完工日期】:2017年8月9日& z  {4 J3 l& l  Q3 ?1 z, |
【施工单位】:品元装饰国际设计中心* V/ h" b  S+ t
0 L: _  y' p' x2 s% X
原始结构图:4 t* ~8 m; c' _4 D  i+ J: k/ _6 E

6 l; u$ @4 D' ~& C1 X, t9 c
平面方案:

" y& l% ?, t; x9 d) _, r: u- b* _
效果图:
  X) Y9 X0 C1 _3 D

& `$ [2 e# f5 C* ~' W1 v
回复 支持 反对

使用道具 举报

该用户从未签到

 楼主| 发表于 2017-4-14 17:22 | 显示全部楼层 来自:江苏
【楼盘名称】:万濠世家
3 o- _2 ^! O( @
【建筑面积】:120㎡2 ~. O( T6 r; r, w! o
【装修方式】:半包
) {2 D& S7 a1 r' G! V2 ^+ m【设计师】:潘锦芳
3 c7 V8 V5 p9 L# Q0 {/ ^【设计风格】:现代
% |4 n. D+ G& U1 c【项目经理】:黄成1 [4 h% ?9 ?$ e) O9 J! L4 x5 e) s  h
【监理】:孙苏" g7 a1 Y' j% |3 M3 I
【开工日期】:2017年4月10日1 @8 Y) a; r/ c( S
【完工日期】:2017年8月10日
1 o  N8 e/ C. G【施工单位】:品元装饰国际设计中心- m* B3 ^( l/ L2 t  v

1 `2 ]4 R  I, p1 N3 e/ D8 p7 P
平面方案:
( h% n# l2 `* h* t+ d) P- U
原始结构图:

: G7 n5 C( q) e1 ]
效果图:

# U: F# P# s+ R# O1 m- Q

, p. G; c: {7 _. l3 o

' Z5 e3 |) o3 A2 n# l5 C7 m1 p/ M
回复 支持 反对

使用道具 举报

您需要登录后才可以回帖 登录 | 注册

本版积分规则

手机版|无图版|站务联系 | 商务合作 | 平台公约

信息产业部备案:苏ICP备05014191号-1 经营性ICP许可证:苏B2-20110445 苏公网安备 32060202000307号 © 2001-2019 0513.org All Right Reserved.

投诉争议 技术支持:第一互联 GMT+8, 2025-12-23 17:33 , Processed in 0.243562 second(s), 16 queries , MemCache On. 站点统计

快速回复 返回顶部 返回列表