|
江景苑的业主朋友们,最近就要拿到期许很久的新房了,激动吗? 两个月前就说能拿到,到现在还没拿到是不是很不开心啊!不过没关系 小编告诉大家,你们终于可以马上就能拿到你们的新房子啦! 9 K4 A$ |' D0 ?8 H* _6 x1 P
看到这里,是不是很激动啊! 江景苑为天一置业旗下地产,位于姚港路与虹桥路交汇处。相信在这之前估计大家被分配于此都会怨声载道, 因为在几年前这里是南通最大的农药厂!! 但是如今环境大大被改善,污染已去除,绿化进场,土地降解。 原来的担忧都以不存在!所以,业主们可以安心地入住啦 给大家看看江景苑的绿化吧! % s2 {1 Q) z5 g ~# s
# S: b( Y6 {$ a. k5 w
; D' b+ l9 E* T* \绿植已经整片覆盖,现在效果是不是美美哒~ 小编不多说喽!小编和一大波设计狮们开始了今天的江景苑量房之旅~今天天气还算暖和哈! 2 @: L1 _3 i4 e& z+ h- Z( w8 x
* }+ G3 O# T$ f+ c( [7 v- a& `5 y4 W" l% \
但是还是有一点点小冷的,设计狮们你们好样的!一起考察,为业主们的家只为更好! 为爱装满家!家与华浔18载!全包只要998,为爱互动!
+ }- b: i4 H+ `2 b8 a W W7 `" X" n. B
' d# C5 Z7 b: Z, ?% _
; b+ J2 ^& h. G6 o% z
& ^0 p0 e9 d& x7 @
( o* s/ K5 K: g
6 b" z6 ]( O- j5 G. S7 Z9 G1 {) b; z! L2 s6 _
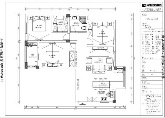
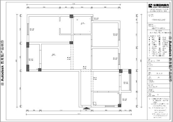
以上是设计师们的辛勤劳动! 江景苑的户型都有一个特点,就是南北很通透,采光很好,因为楼层不高的关系 基本每户人家都有充足的日光照射。 设计狮们量房回来之后就开会为大家户型优缺点开始点评! 为了在您装修之前,解决您的户型设计的疑问,也为了帮助我们收集更多的户型设计需求, 沃度现针对江景苑的所有业主朋友们进行户型研发大会。敬请期待!
这是进户门,大门都是字母门哦!
& P9 K. O- f `% c
7 _, v! [% k2 F0 [/ v( W# {* Z$ \
这是客餐厅过道,是不是也挺宽敞的!小编有太多照片,也就举个例子而已 话就不多说了,户型研发期待中! 6 R1 S! _" I Z j3 _+ j
如果您是江景苑业主,并对自家户型有设计需求,请告诉我们吧!让你的设计需求成为沃度开发模板。 我们为爱装满家!只期待你们的到来! 4 q% O/ }/ X$ h* V4 d3 b
: ?- C4 O; ^8 s! t
1 M) b5 M: L7 V' B& ]+ Y: z
* p' n4 U. k* e+ D1 ~( Z
参与互动即可获得自家户型解决方案!互动方式如下: , X! U# X4 _* X% G- Y
1、回复本帖:如“我是江景苑的业主,我想要xx风格,等等”
! a/ L5 G% z, P9 }2、发送短信“楼盘+楼号+设计需求”至“15950859035”获得自家户型解决方案。
1 o; p. A, k' U: h* i" t6 i+ R' H
8 p2 k+ f4 ^0 W {# n5 C m* c3 p
3 e- c& t" ~% Y# ` ?! h$ [装满爱 暨华浔品味装饰集团成立十八周年 盛!惠!来!袭! ▼ 活动时间:2016年11月21日-12月11日
6 n/ s: J# I" M+ x
活动地点: 濠西路濠西园15幢商办楼二层(中国银行二楼) 亲爱的业主: 7 k/ L, L4 Y$ o0 v) a3 `
不管您准备今年装,明年装、后年装,如果您希望能够拥有一个温馨、美观、环保、健康、时尚、舒适的家居环境,请您百忙之中抽出时间前来“华浔”,亲身体验“华浔”专业的设计理念,专业的施工团队给您带来的与众不同的感受! 0 f( C% J* n7 k+ K4 W; I0 {: o( Q% D
& A' G& i- {! Q% y" z
为了您的消费权益请选择正规有装修设计资质公司进行装修。
3 v: s {+ g8 X
2 k* x2 U" D( ^) X" g, v; A% j1 @ u% b
8 ^$ W! t9 u# G- u
南通华浔品味装饰官网: http://nthuaxun.com/index.php 欢迎大家登入,更多了解南通华浔! * d( l$ u2 W1 z' j5 s/ u& R

2 I0 y( K ]" u" P: U- F" X关注微信公众号会有更多的惊喜☝☝☝☝☝ " Z1 M4 {5 Z4 v z! w1 Z* Z1 n
0 o% R$ A+ P6 o# U, c. l, H
; Z3 K5 F. g4 F+ \
5 F, {4 E/ ]* u- [0 h0 U R
: i8 x; y$ V2 B; g$ @ * j& b- T% J# n' m4 x/ f
南通0 |