南通已经陆陆续续下了一个星期的雨了,搞的小编心情一点都不好!不过小编为了大家考虑,还是打起精神才好!小编是不是很好啊!!!小编昨天跑了两个工地,今天给大家现场直播吧!希望大家会喜欢哦!
) i3 r1 i' d) Y" x2 b; J) j; \( r4 ]" I7 p" r1 U
第一站呢,就是莱茵河畔,不多说先上平面设计图!想看效果图,可以来店看或者联系小编,可以直观看到360度旋转效果图哦!8 |, o9 x& k5 \3 s- ?
0 {& t3 Z1 z8 {2 \
# m: d% q6 ~/ \% u: }, {& g
. a2 B0 M4 V0 t7 @莱茵河畔1#1502的水电完工图
% R2 T5 y1 C8 g$ I* \! g* w1 {9 R- H3 P) d, x9 S8 p
! ^# j, N. X: A' e* M7 K t
: Q: R5 ]/ X2 [7 {
P- {( a# S4 O- h4 b0 \% G! m' c0 _. Q" F' L2 K1 J' N
8 o3 x5 c0 v9 P
& K. {; w% L+ H* u8 y6 E+ l, W6 N0 t7 B F: C
O7 _( ~8 u: `8 l2 B& I
7 w n& |' K9 i( e0 \( \% _' g
, U8 M# @3 b6 _5 D, @7 t$ z* C$ i2 F7 d& L
! B( d2 H: W# y: J7 P* ~
/ `3 W! A5 ?9 u. a' m% f4 R8 X% U* Z4 l& A6 Y
z5 P$ ^% \- t' ~
) X2 Z+ b0 W f) R7 L$ Z# a l
) a7 {& }+ h, U4 n% w1 j; [
: \9 W" H# E" _) R
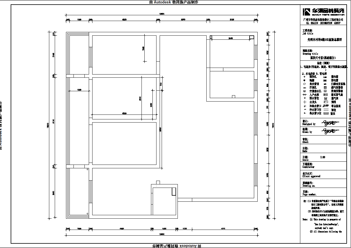
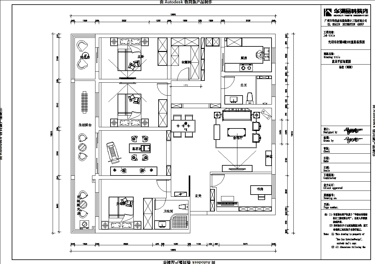
7 K! s7 M! f2 a, y第二站是光明东村,做为南通人都知道这个小区是老小区,二手房改造! 7 x# V T* s# n$ }0 x4 i
1 B1 w( f* E( v# j) r. |5 ]
3 U+ _/ z0 d0 K% \5 c W- h, l! N$ F {3 k" G, K# M
光明东村木工完工图,开始做油灰 ' z0 S- {3 W$ ?1 l* ^
* J D5 ^5 c- w4 b2 ^! U- f; g: `+ ` [& d2 c& `; x! S
! Q! h5 C! P8 c: Q2 y5 ?2 M+ V2 m, k0 a
/ w$ e/ m; |# o# C" B) S' _9 s
R4 x- t% v @* a+ d) z8 a& b5 T9 C1 M
; w% I' S# z+ ]1 I7 @1 U
5 G: \3 G$ p# }( v4 {5 a8 J! C; ?4 J: S* m) q1 @7 @$ `( J
" @# \0 A) \1 z
5 C$ F" }5 t3 z# K$ a$ p6 q+ p3 Q% f$ h1 B; e4 z5 J/ A
R2 q) H, O g( e7 U' r/ I3 @6 @2 H
/ x0 Q9 W6 [) D3 U$ Z* w9 x * b1 @. ]% ?' j6 {$ f$ u4 X: Z* T w
! K6 G2 @) T! U4 ?1 X5 e S5 ~4 T C- ?; s4 y
/ l* I" Z% a1 l2 ]# j7 F: |# j 6 w( K6 ~3 G, n2 S0 M
# g; Y# L6 J) Y( M: P- w
华浔无忧工程实景样板间开放中,敬请莅临! 2 S9 }, {. D( `( D2 _# z
装修小助手:dmycys34 任何装修问题都可找我! 华浔品味装饰十八年专注设计、弘扬工匠精神,每年30000多家庭的信任与选择。不忘初心,华浔将继续坚持“做一个工程树一个样板”的理念,把每一位客户的家都当成自己的家来装修。为爱设计,用心装修! 4 U/ Y! j8 r1 O6 V9 X/ [
亲爱的业主:3 j) ]# _/ P- _4 ~5 k
不管您准备今年装,明年装、后年装,如果您希望能够拥有一个温馨、美观、环保、健康、时尚、舒适的家居环境,请您百忙之中抽出时间前来“华浔”,亲身体验“华浔”专业的设计理念,专业的施工团队给您带来的与众不同的感受!
$ Y" y, S K% q5 j9 W5 F- X
7 l5 A b8 J a# A' d( F
6 g" u1 g6 R( N6 o* `情报人:华浔小颖
2 I. u! ]8 C9 U! X4 s I情报扣扣:1242761035  0 O4 ^, h1 j5 H5 X
- Q5 d5 z2 k* m" Z1 V
) @$ P7 q* c* i& W% c S" R欢迎来我的空间看我,每天都有案例更新,海量的实景,N多的装修宝典,保证亮瞎你的眼球。。。。。。猛戳,戳, 各种风格参考,海量实景图,各种创意方案戳,戳戳,戳戳戳。。。。。。。 # {3 M; D+ b0 U- n- C4 i; t
南通华浔品味装饰官网: http://nthuaxun.com/index.php 欢迎大家登入,更多了解南通华浔!
8 {" k) }: P; o$ f0 g* u* c/ O2 d0 D, u9 c
5 j7 W( Q! I: ~" `* H
0 Z: L$ C. t9 `( r$ b1 O h
6 k! }! D. p, M; V
* v- Q. ^) _4 R. _- b. @南通0 |