本帖最后由 南通华浔品味 于 2016-9-24 10:37 编辑
8 R* M/ L. Q( V% h3 p! k4 z7 b9 i5 ^ F" }" S$ {1 q
上次去豪景华庭我们华浔自己的工地, 后来去业务那边去咨询了下,了解那边交通便利,高架和以后地铁都在旁边,而且南边是中南商圈,北边是观音山新城,欧尚、大润发就在附近,购物娱乐一条龙,其次崇川小学、通大附中、南通大学都在附近,小孩教育都不用愁。在那边买房子的业主幸福了嘞,绿化也是很不错的,二期是不是比一期卖的还好啊?小编就不在这边八卦喽!给大家放点福利吧!! K" M7 X9 t. g% i
小区
# s. H& f) q! l
0 z3 W( ~) E: A. y/ d
绿化
2 D3 n: h7 X N
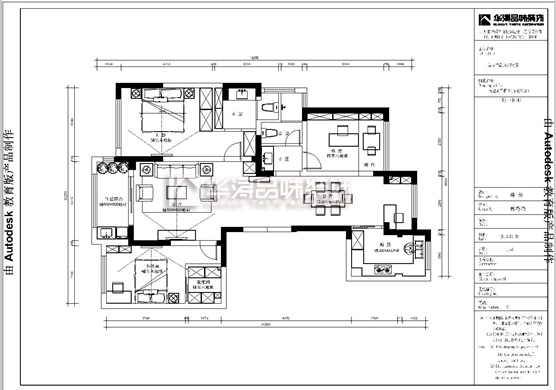
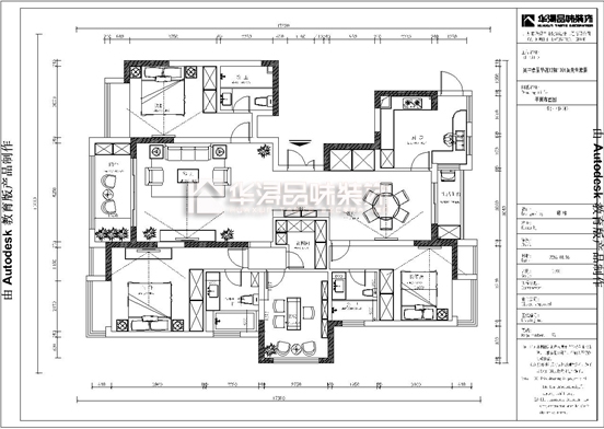
给大家看看户型吧!现在应该很多业主都了解自己家的户型吧!尊贵的豪景华庭的客户们,您们的新居就要交房啦!您想来一赌您的家居设计图吗?你想了解您家房型的优缺点吗?下面小编给你看看户型设计,只放福利一次哈,每个户型一个案例,想看更多案例的联系小编,为您量身定制您家的设计,和设计师面对面的交流!!!
. S8 E' Y) q! S7 v: D1 a8 E. ^
* Y( d& _# s8 {' `( Y: @% y/ a140平方原始结构▼▼ 1 W+ G" E$ |. _" x; i
0 e/ m8 G( S m4 B, x
140平方平面设计▼▼
8 v+ K+ {2 V: e! A8 n8 h' h9 v- _8 T; Z
+ u' \, Z3 Y: W& \# ?+ [
- I/ o) V1 C1 `. I7 ^180原始结构▼▼ $ v. N: v4 d: U, z5 X+ |5 C' M0 h% ?. |
2 Y5 P+ E# j: r4 }! F$ a7 Z3 C180平面设计▼▼ 7 _' F0 }3 y5 a1 f
3 h- m; i5 F7 b+ Z% L9 u) x
效果图就不发出来了,因为风格要因个人量身定制哦!联系小编,即可看到你想要的风格,样板房火热进行中…………
9 Y) E, [5 Y- T( L& B1 \" T% D! K" H- V7 }: K L: u
" b, Q4 z \5 i1 x, L5 r2 y. Q% o
: i6 @2 u& T* `' X. X( k' p4 O9 [这都是以往的实景图……实景图……
* `0 e ]$ n1 _ x7 `零距离领略华浔粤派6大工种365道工艺、全方位体验工程质量 * b. E7 E- u# a0 M q; j
4 A7 M& a2 l7 K1 c& D% X- i& j g: B1 h. k
1 A J3 [! O* p
0 N- e( W' o& `! B+ B! t( B7 m- ~9 b; ~5 }7 c3 g+ f9 {8 U6 |* X
华浔全面升级……从你做起!!!让业主一开始就很直观看到自己以后家的样子!比以上图片更加规范,更加全面…… # z% v* q0 }+ |/ z
" y; ^3 G5 K. G# C0 `- W1 A
1 q0 i" z% b9 h3 V0 |9 W0 ?( \- p" ?
: B) _' K' p' r5 W
$ o; S% P* [) Z* g2 U; Q( S0 u8 u& ~2 l3 W- A% c
: o7 v) r% \* B0 N# l" D$ @9 H; x! g( x: A0 K( R
' E' e( A/ l; X M- @# H
$ |! ^! N- M# E- w6 [
) W$ |( Z6 R( B9 U
& x% I- @% o- x3 G- `
+ a; S: V- b [5 p: Z/ j, Q
: O' C% @; G" a. C
0 T( t' d; r& ~6 k0 ~8 r
5 H7 Q% t5 W4 H' k. R/ q+ W
7 B. A8 t% v4 B" e7 f5 W$ L6 H' G2 ^3 S+ W, r8 y# D+ }
看了图片有没有感觉美美哒!业主都很喜欢呢!喜欢就联系小编吧!带你去现场更直观的观看…………
. R8 q+ L8 V- r# q( |
. q6 Q+ P$ |3 p0 C3 [ ( I" ]; T$ }9 I3 l
2 Q" ~& }% u* ?& ?- M5 e华浔品味装饰十八年专注设计、弘扬工匠精神,每年30000多家庭的信任与选择。不忘初心,华浔将继续坚持“做一个工程树一个样板”的理念,把每一位客户的家都当成自己的家来装修。为爱设计,用心装修!
' h* _3 Z& n7 k; J, A2 Q
亲爱的业主:- P; z7 R% P, x
不管您准备今年装,明年装、后年装,如果您希望能够拥有一个温馨、美观、环保、健康、时尚、舒适的家居环境,请您百忙之中抽出时间前来“华浔”,亲身体验“华浔”专业的设计理念,专业的施工团队给您带来的与众不同的感受!
; f* H+ I% l( N$ i, Z+ n! {* L7 k& y3 J' L
% S7 s7 P2 r" p. P6 B6 L' r
情报人:华浔小颖
( |; R0 @) X+ |# G9 w7 d3 P% x情报扣扣:1242761035 
0 T0 J+ L# t5 c8 O9 A4 A6 k! c- G咨询热线:15950859035(微信) : d9 M6 K6 g* ^ J
4 \% J$ E- c% C k8 O# M欢迎来我的空间看我,每天都有案例更新,海量的实景,N多的装修宝典,保证亮瞎你的眼球。。。。。。猛戳,戳, 各种风格参考,海量实景图,各种创意方案戳,戳戳,戳戳戳。。。。。。。 4 n# f6 s" B( m: |0 N/ H6 B1 l# }
南通华浔品味装饰官网: http://nthuaxun.com/index.php 欢迎大家登入,更多了解南通华浔!+ r/ ^& a: d) G0 S& h7 F
: |5 @% \. T2 P/ {/ ^( n% q( B 5 J' m* i, ^0 C$ P/ }1 o0 G
南通0 |