本帖最后由 南通华浔品味 于 2016-8-19 15:00 编辑 0 s! i. s/ z% Z. C9 T3 u0 v
" E) u, Z, w( Z- y! W/ k先来一批户型和效果图吧! 3 T1 S$ @( I" ?( O6 x' R2 P0 I
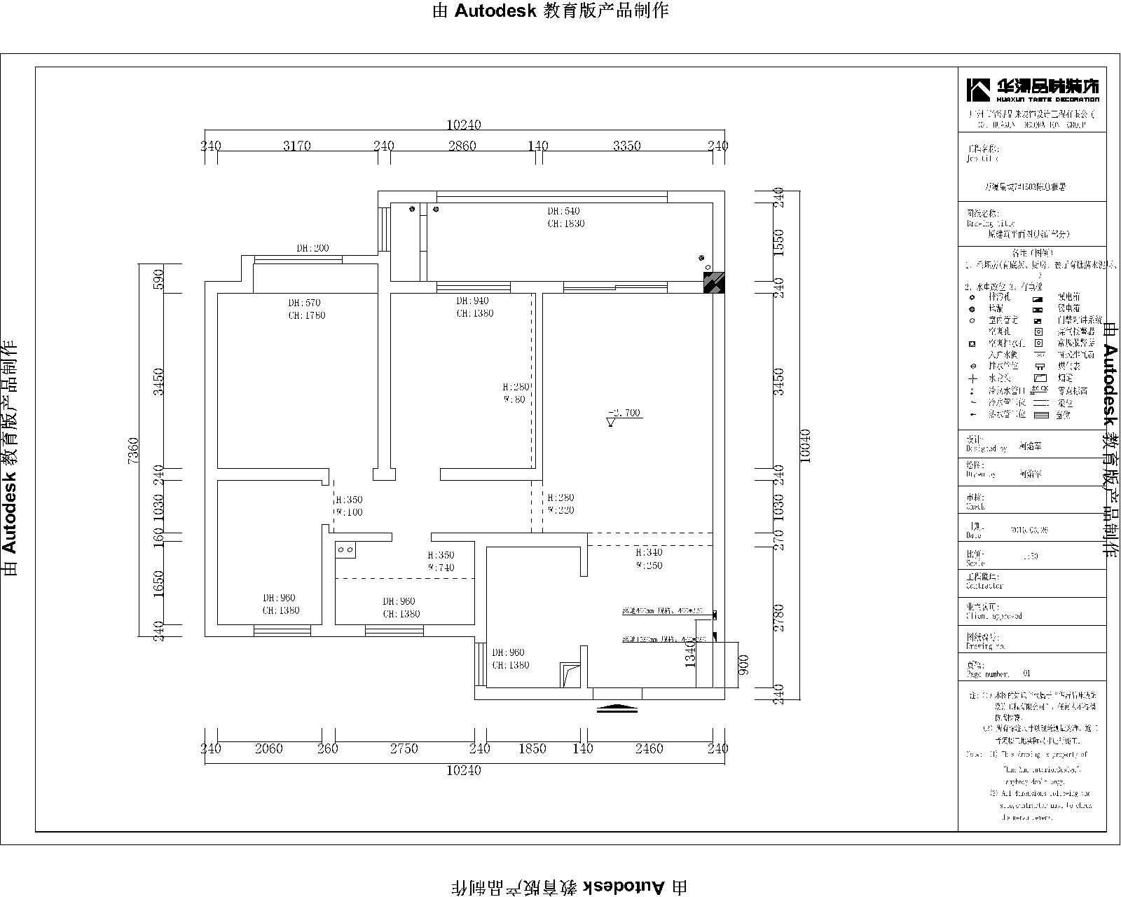
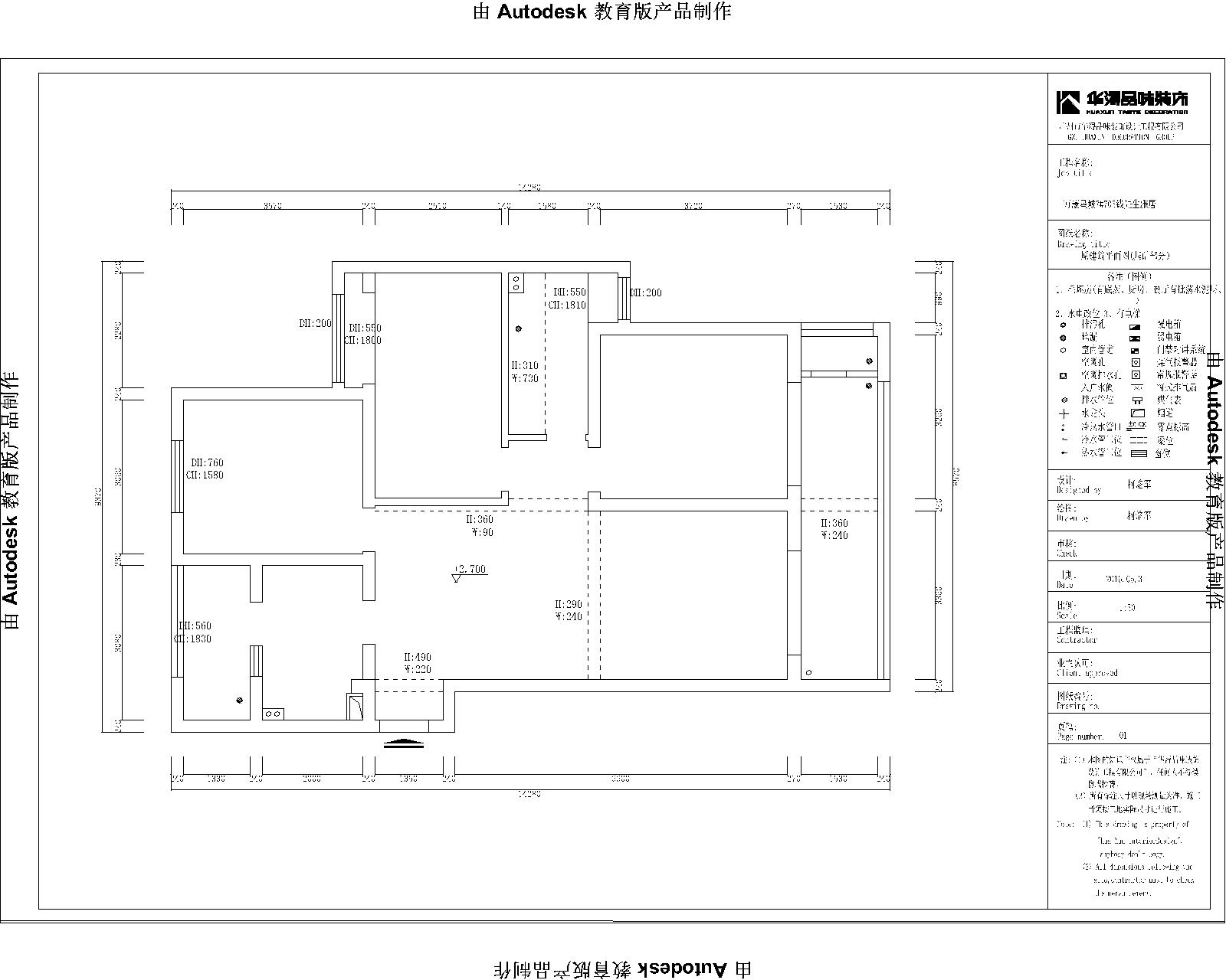
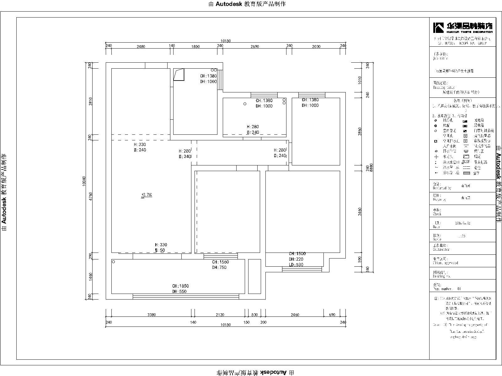
案例风格:简欧 面积范围:100 装修费用:170000(全包模式) 设计说明:本案例融入了现代的生活元素。欧式的居室有的不只是豪华大气,更多的是惬意和浪漫。通过完美的典线,精益求精的细节处理,带给家人不尽的舒服触感。 原始结构图
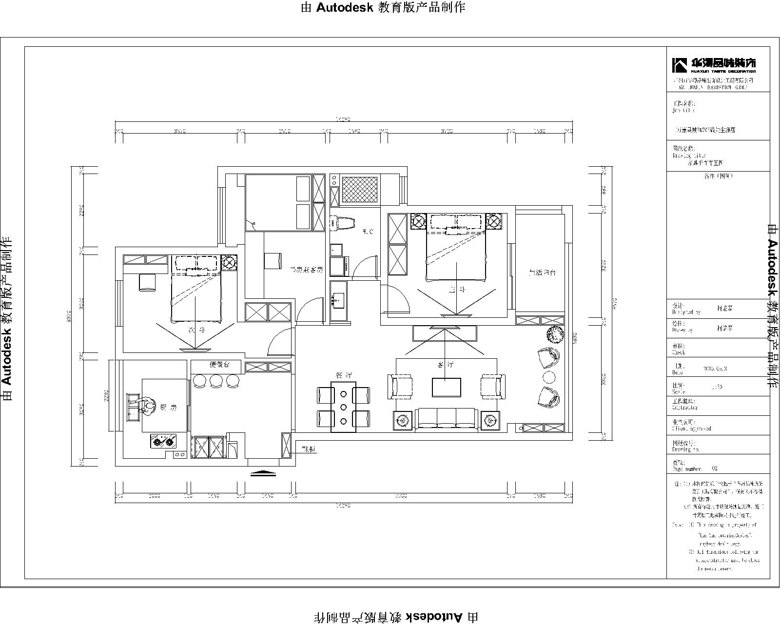
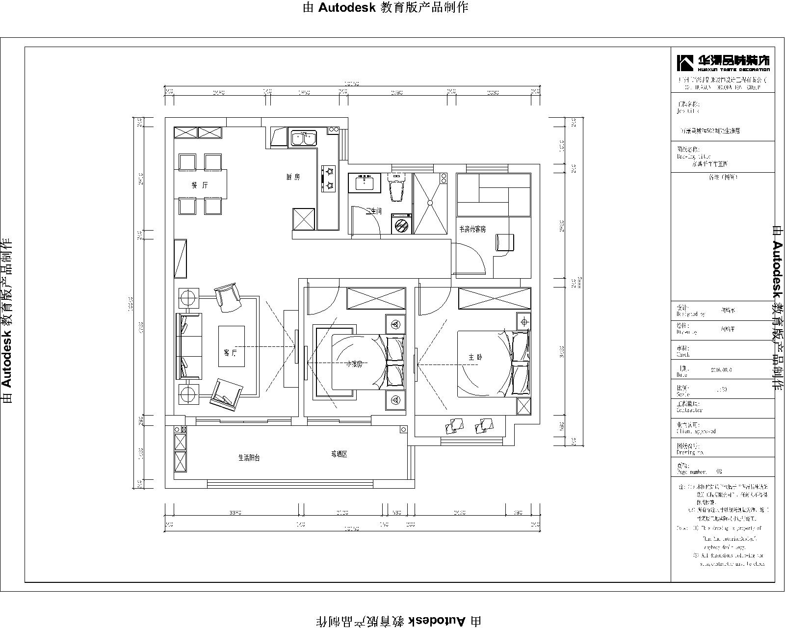
3 [- W' m5 t& q& C' E; s/ W平面布置图
客厅
客厅效果图 案例风格:现代 面积范围:100 装修费用:170000(全包模式) 设计说明:客户是位和蔼可敬的奶奶辛勤培育了出色的两代人,现在这套房子自己住以享天伦之乐。再好再漂亮的设计最终服务于人,所以设计主线功能性与美观度的结合。造型上为充分满足业主的储蓄需求,设计以木质柜体为主要元素和构成。墙面以浅浅的绿色为肌底色,给生活以盎然之感,结合纯纯的烤漆白色柜体碰撞出娇滴滴的柔美感,再加上软装上的元素更添灵动。大面积的纯色下,得以地面返朴的木纹地板,无疑坐实了作用自然,接天地之灵气,取长江之悠久,享天伦之乐哉。 - R+ ?9 |7 @: W+ B5 F0 S# R
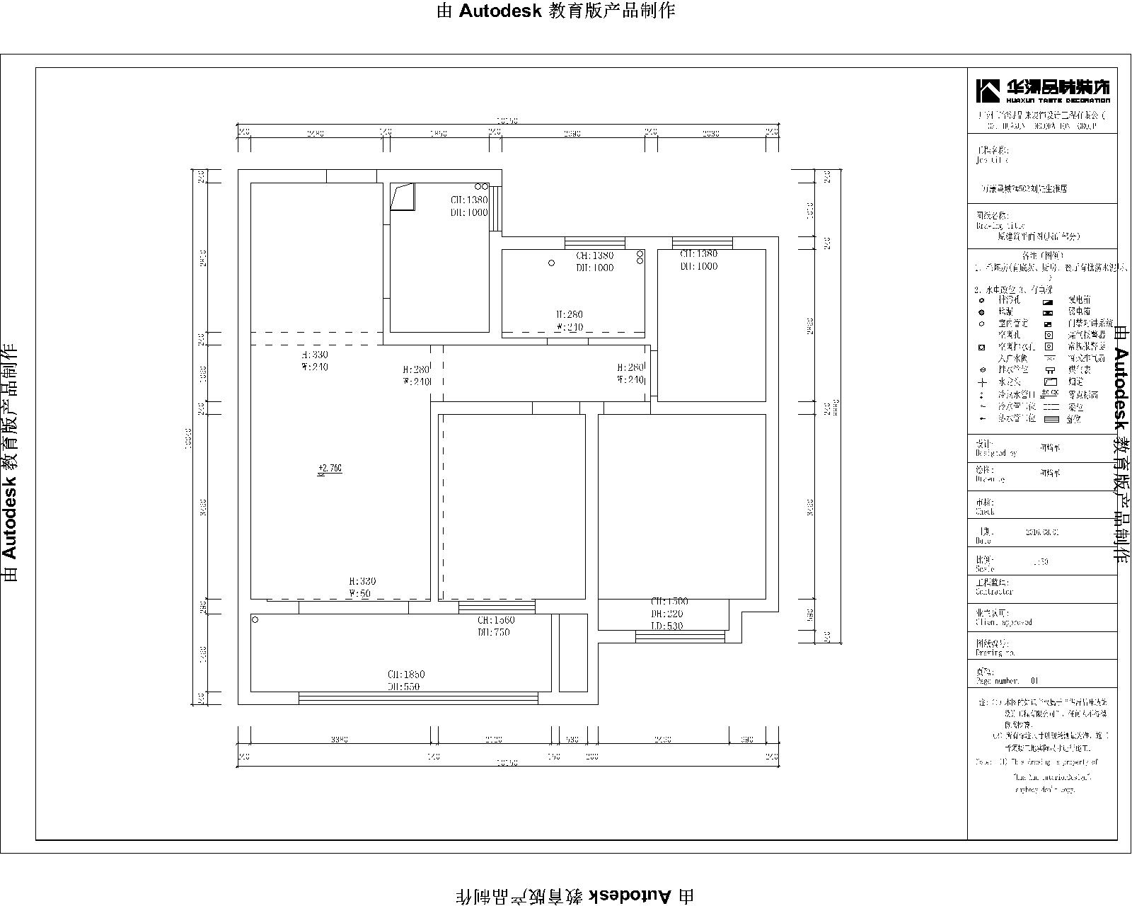
原始结构 平面布置图 客厅效果图 餐厅效果图 案例风格:田园小清新 面积范围:119 装修费用:5.8万(半包模式) 设计说明:本案例风格源于欧洲融合了韩式文化特有的时尚,兼具西方新古典风格和东方的后现代的神韵,演绎着韩式文化特有的浪漫,纯真,宁静和自然。 原始结构
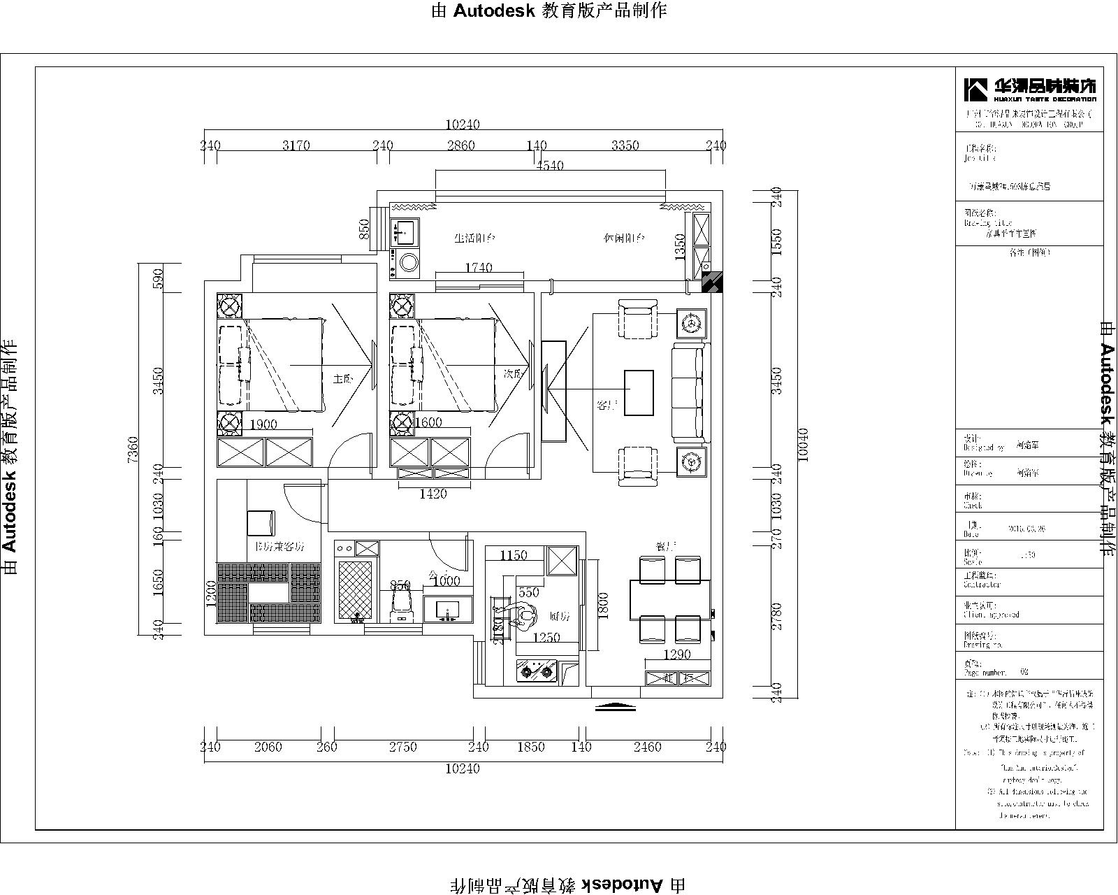
5 s/ N7 N+ e5 c0 V平面布置图 客厅效果图 $ i! L2 V, S2 g& ` V( F5 V, M
接下来给大家上传水电,陆续的木工。 敬请期待吧…… 8 c/ w4 u9 Z1 J' w M+ ~
, O& f& H% S: m 亲爱的业主:/ g) k D3 e5 P1 l
不管您准备今年装,明年装、后年装,如果您希望能够拥有一个温馨、美观、环保、健康、时尚、舒适的家居环境,请您百忙之中抽出时间前来“华浔”,亲身体验“华浔”专业的设计理念,专业的施工团队给您带来的与众不同的感受! ! s2 u7 h9 _' m/ V" T
8 w% M# E- ?7 |/ G% K+ S2 s
$ J0 d9 h" ~4 d- ]1 V
情报人:华浔小颖
: I: K5 J% `" z. P情报扣扣:1242761035 9 d4 d4 ]5 O2 ~$ T
咨询热线:15950859035(微信) , y x0 I5 E. F7 _8 z) C4 D$ R6 E. h3 q
: ~3 M$ B. Y* b7 |/ j欢迎来我的空间看我,每天都有案例更新,海量的实景,N多的装修宝典,保证亮瞎你的眼球。。。。。。猛戳,戳, 各种风格参考,海量实景图,各种创意方案戳,戳戳,戳戳戳。。。。。。。
# E* q$ j5 u" X8 T. V南通华浔品味装饰官网:http://nt.hxpwzs.com/ 欢迎大家登入,更多了解南通华浔!
* g X% J0 Z/ q1 M0 Q7 D
: F% I5 {. j9 Z/ H9 v; b% C$ G 3 u8 ?- m: |8 b
7 m% F7 q% B! h/ f3 q# w1 n
4 V6 @9 c L3 d5 c
7 B/ _, x7 s; c/ `0 `
南通0 |