本帖最后由 南通华浔品味 于 2016-8-16 14:49 编辑
0 y2 {+ c2 q. G& b: _! M/ b+ N+ f2 L3 n- `
. z" w/ i# t2 T7 j3 n+ S* ^
$ A0 ]$ e4 a4 v* B$ j1 W6 I3 ~* h/ w7 c6 n
做一个工程,树立一个样板房精湛的粤式工艺,18年丰富的施工经验,为您筑家保驾护航; * w( Y6 B, |/ |* W: Q1 A+ W
雄厚的设计实力,让您享受品质生活;
, ], {) m; P1 Y9 a: S$ [10年水电隐蔽工程保修,两年木制品保修,完善的售后,解决您的后顾之忧,让您住的放心,居家安心。 Y( {; m( [. c$ [% z! X1 |1 b
: U \7 C. q$ v5 B6 w恭喜文锦佳苑王先生8月16号9.58分开工大吉 7 y% O S* D( _, p" }
开工大吉
感恩,感谢文锦佳苑及家人选择华浔,信任华浔!我们一定会竭尽全力为您打造温馨而幸福的家! 3 r6 r& v+ q) y' F* F
华浔品味装饰主任设计师薛工 7 c$ [( F5 I+ T4 C# q6 x+ r
擅长领域:套房,公寓,复式。
9 A; f. [" W1 S9 U- l; } 擅长风格:美式田园,现代简约,欧式,地中海,新中式。 主要作品:代表作:景瑞望府,南山国际,德明旺角,万达华府,皇家花园,南通幸福天地,万濠星城、华强城、桐墅湾、中港城、世茂公元...... 设计理念:设计理念:艺术与生活的相濡以沫、交相辉映是我最大的追求 荣誉:2012年毕业于扬州大学艺术设计系本科毕业学士学位。2012全国高校师生设计大赛学生组铜牌 2013全国NCDA设计大赛第二名
作品档案|
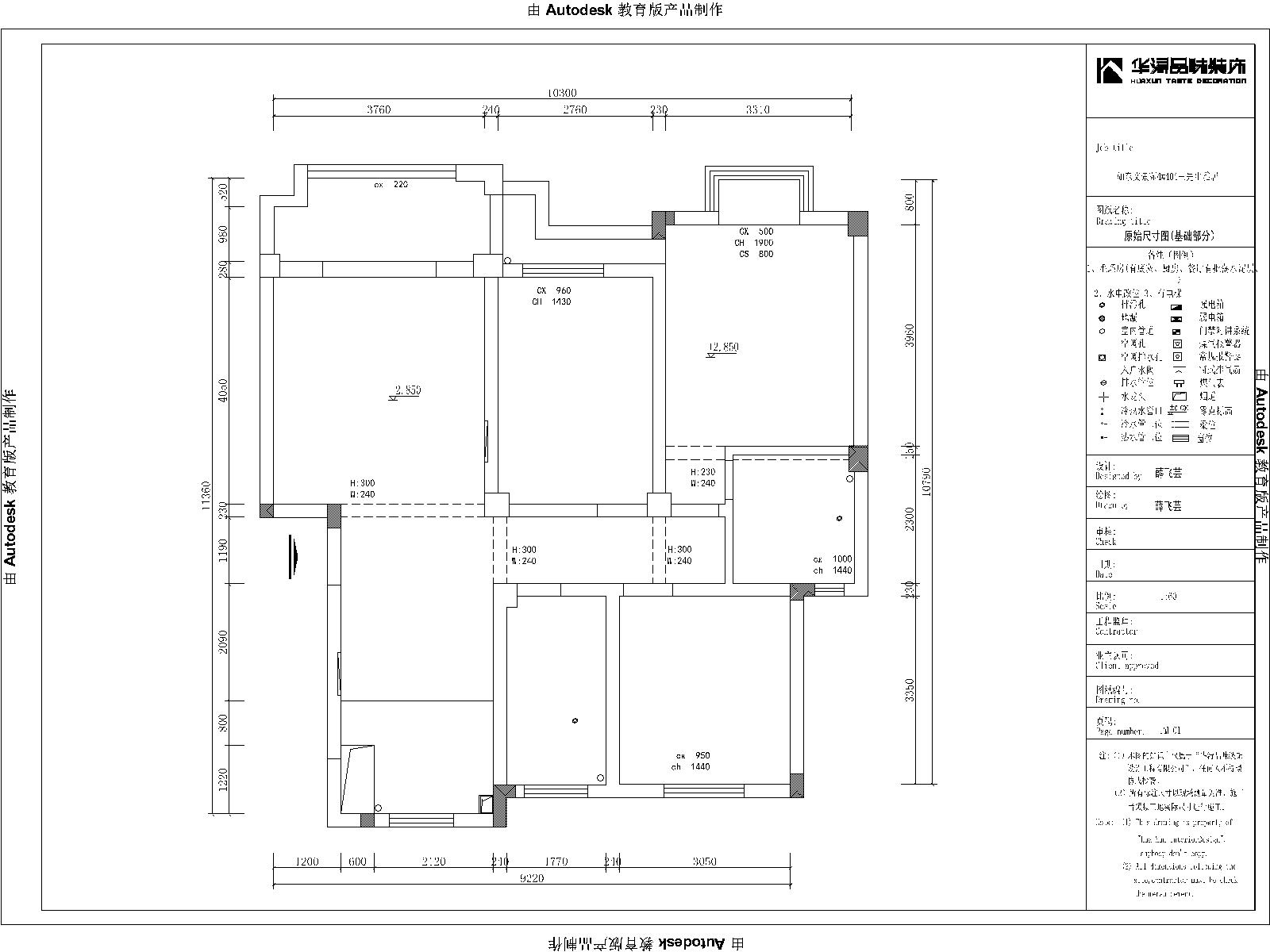
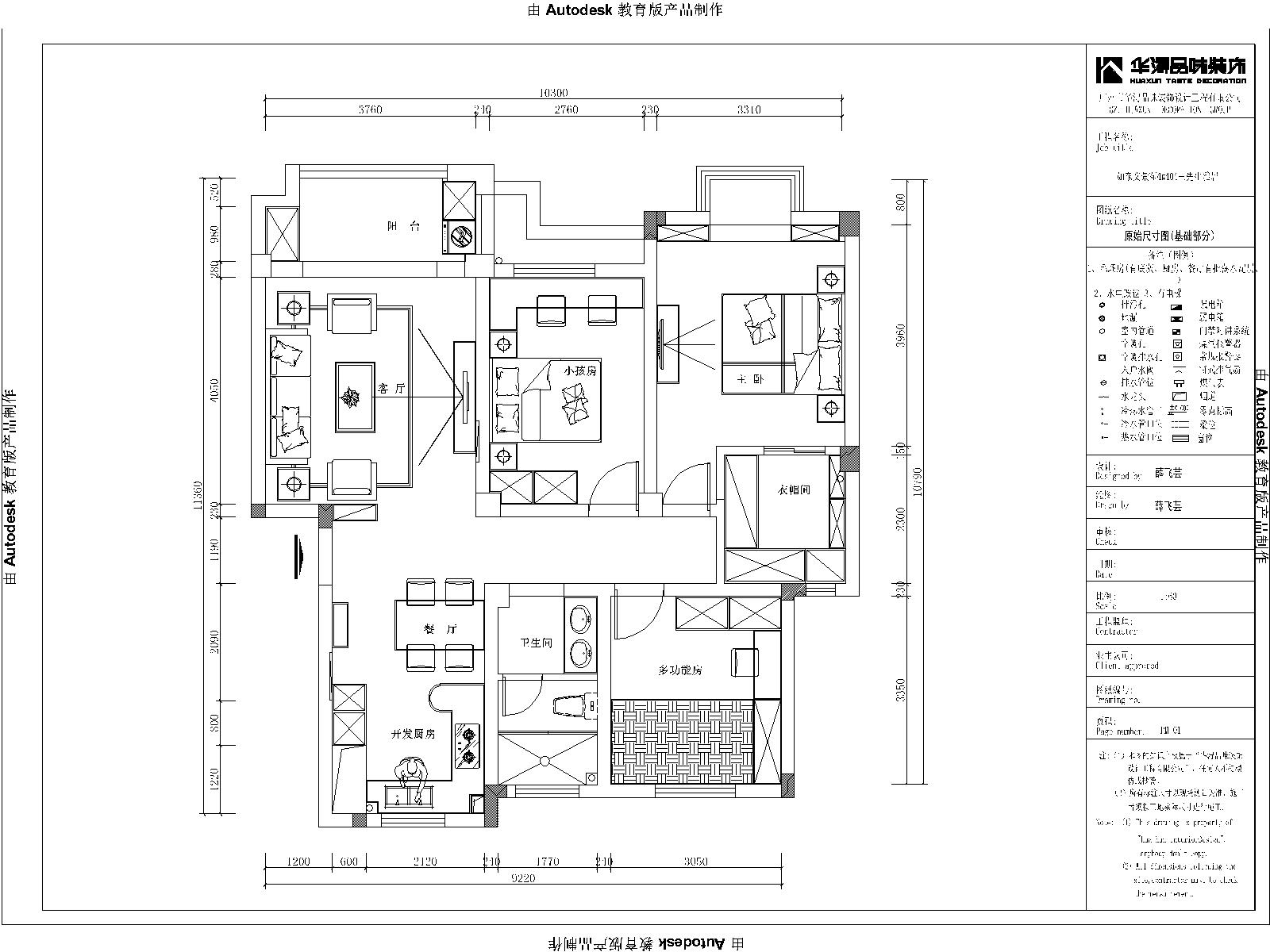
& f# |) x* J1 G- ?% z. W 楼盘地址:文锦佳苑 建筑面积:100㎡ 设计师:薛飞芸(主案设计师) 装修风格:北欧风格
* k, J! u" a$ A" v作品说明| 业主要求简单大方,我们设计就推荐了北欧风格,业主看了很是喜欢。整体简单大方,又出效果。100平方的房子,业主选择留住三房。使整个户型看起来很完整。业主的思想并不保守,选择了开放式的厨房,使整体看起来空间宽敞,南北通透。简单的电视背景墙,更符合北欧风格的特点。其实有一种风格白墙与木纹砖更配哦!那就是北欧风格。 * o0 k( o) b* U$ _; A. X9 b
文锦佳苑100平方【客厅效果图】▲
$ C; x9 v- z6 L$ [8 I& z7 a/ Y
A) x9 V- M% X文锦佳苑100平方【餐厅效果图】▲ 4 U9 m6 F. _' m- H3 c: x
^8 S; q% W7 V6 i4 O ?% O5 R1 A' i, D, Y$ [3 ]# {7 l% m
文锦佳苑100平方【全景效果图】▲
# a: Z- h p: a! g$ ]; I想要免费看到360度旋转效果图吗? 8 s3 Z2 v) n( H; v4 a. d2 R
( @; }/ M+ K7 V% ]
亲爱的业主:1 O3 [ }- W- ^8 g
不管您准备今年装,明年装、后年装,如果您希望能够拥有一个温馨、美观、环保、健康、时尚、舒适的家居环境,请您百忙之中抽出时间前来“华浔”,亲身体验“华浔”专业的设计理念,专业的施工团队给您带来的与众不同的感受!
. v: N7 c/ f# O; p! t; L
6 c# ?' B2 O, v$ M3 J( w- F
6 t% r l4 ?; `& \& B. _情报人:华浔小颖
6 ]% M1 {: O: ?8 |5 _$ ]) q S情报扣扣:1242761035
' a g4 J! q% ]' C: ? d' [9 g咨询热线:15950859035(微信)
9 i1 t b7 Q- _- \' \4 Q/ ^1 S
2 i9 R) x; ]' D. y欢迎来我的空间看我,每天都有案例更新,海量的实景,N多的装修宝典,保证亮瞎你的眼球。。。。。。猛戳,戳, 各种风格参考,海量实景图,各种创意方案戳,戳戳,戳戳戳。。。。。。。
2 ]0 C" X, F7 X南通华浔品味装饰官网:http://nt.hxpwzs.com/ 欢迎大家登入,更多了解南通华浔!
l6 t. c/ A2 l4 n9 N) u3 a) }1 [' l& ~
6 T, q, v5 y+ ^* c7 L* T N, h
南通0 |