8 S: i5 n/ [ u, Y5 J4 V7 k
, O' h& Q2 a+ d1 x6 @3 A【楼盘概况】:
7 H7 a1 u9 I a; ? 小编一直觉得,【雨润星雨华府】的业主们很给小编面子,小编一发什么内容,雨润的业主们都积极和小编进行互动。小编一定不负众望,给雨润星雨华府的业主们带来福利。 小编今天也随雨润星雨华府楼盘主管小邵童鞋到雨润看看,小邵同学说起雨润,那是一个连声称赞!说雨润星雨华府是标准的16-18层的小洋房,而且楼间距很大,就连底楼的住户也不用担心通风采光的问题哦。雨润星雨华府靠近华润万象城和圆融二号馆,商场等相关配套设施会很完善。而且据说,雨润星雨华府周边即将建一个菜市场,麻麻再也不担心我买不到新鲜蔬菜啦~ ▲小编随拍,雨润星雨华府一期7月已经拿房,二期还在建设中。 ☟小编也不在这里多嘴了,雨润一期入住率还不是很高,但是已经有工地在施工了,想要预约工地的可以戳这里☟
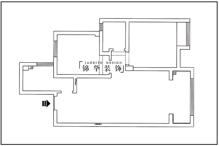
5 D5 M: p1 A( p1 `) O: U. D! f7 g4 ^————1、雨润星雨华府 85㎡户型研发——— ▼研发背景▼ 男主人:某科技公司职员,工作比较辛苦。 女主人:某外贸公司的会计,朝九晚五的生活,生活较为规律 小孩:10岁女孩,在上小学。 需求:家人都喜欢比较温馨清爽的感觉。
2 i9 R$ g8 b1 X7 F. D) \6 q& P5 a▼研发档案▼ 面积:85㎡ 风格:现代简约 设计师:徐超凡(锦华城北全案设计中心主案设计师) ▼
4 }4 t" ]% F+ |. [& e
平面户型图# b' m( g2 ~ P" n3 p: g
▼
8 P& Y4 ]; _# c. R
" f6 p2 b4 c9 b0 y5 K效果图3 B8 D. e4 H$ J; s+ k, x8 K
▼
0 J- Z# j) q: }0 ~) {
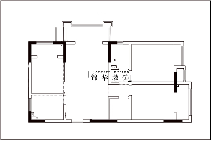
% }, ~' \" v7 @" k( w————2、雨润星雨华府 95㎡户型研发———0 Y: m0 j# M {( L) r( c
▼研发背景▼ 男主人:刚进入工作岗位,普通职员,家里人给了买房钱的首付,每月需要还房贷 女主人:有一份相对稳定的工作 夫妻俩刚结婚,父母有时间会过来做做饭,偶尔小住一阵。 需求:男女主人喜欢木质的家,希望在家中得到放松 5 J# X, @3 k2 H
▼研发档案▼
2 R2 a: R+ W( d! P面积:95㎡
8 b1 U/ u$ s, K风格:现代简约
% c8 U" I F+ j! P( B设计师:王笃森(锦华城北全案设计中心主案设计师) ▼
+ b3 k' D8 e6 Z" x0 [4 e5 {平面户型图
( Q( Z2 ~9 f$ g+ |) x5 ^& `# m▼
7 {2 B( t8 i9 s. ~" Q8 g6 H( D效果图
E& e. a) ^1 B# C▼
+ M+ s5 ~7 u2 g5 f& a, J' {* S————3、雨润星雨华府 100㎡户型研发——— ▼研发背景▼
* p0 s, C S" z7 d1 {人口:5口人男主人和女主人在同一家单位上班,都比较忙 小孩:3岁男孩,平时爷爷奶奶带孩子 需求:家里人比较多,需要较多的储藏空间 ; d& ]/ u) |& |( Y+ F+ N+ T W
▼研发档案▼ 面积:100㎡
+ h7 f1 m! c# u K风格:现代简约6 P5 }7 g3 ]' [0 W' F
设计师:陈辉(锦华城北全案设计中心主案设计师)
1 {9 I( Q0 V( Y n▼ 3 G9 u1 v& t; c. a5 Q. l% d
平面户型图
1 T. _% L; L- |5 v1 K▼ 1 X! S1 f, `& Q4 T9 N
效果图
5 h' }; @5 i. }3 u* s6 V▼
0 P1 Z6 Y/ ?* `: |0 b, P0 v4 e1 h————4、雨润星雨华府 110㎡户型研发——— ▼研发背景▼
; ?3 _7 o5 a/ ]4 B2 T+ ?人口:5口人 男主人和女主人平时工作都比较忙 小孩:14岁男孩,准备进入中考,后面还会参与高考 需求:1、家里人比较多,需要较多的储藏空间 2、孩子需要独立学习的空间
3 { ^! q% \) t
▼研发档案▼ 面积:110㎡$ f+ u4 L" k( c
风格:现代简约
# J6 K6 C+ q% h1 @. ?设计师:彭彬(锦华城北全案设计中心主任设计师) ▼
$ }- T1 @2 Y! B3 @, _3 f! @7 \$ p平面户型图
4 g5 N$ u4 i( U) L▼ + Q& p4 m9 e9 G0 \( G2 M
效果图/ H2 B. l& i; c M9 Q7 p r
▼
3 `7 w# s* b2 K4 J$ G6 L( E0 ]9 r$ x* y+ i* a/ S
————5、雨润星雨华府 117㎡户型研发——— 一家人喜欢有品质的家居生活,喜欢简单的温馨的家,希望待在家里能够感受到家的温暖与轻松
+ h' V }4 Q) l; f% x! c& E, u8 b
面积:117㎡
- f" {2 I- i( B风格:现代简约/ {. j: ]; L& G; V: K3 A
设计师:曹玉梅(锦华城北全案设计中心主案设计师) ▼
3 K; T$ W! B! j: t) T# Z平面户型图
1 ^) J j6 r1 v% E: i▼
2 d8 p. ?/ v8 R效果图
0 c/ K1 n$ ?& m2 `▼
8 G7 n; j' \6 S& L8 e, o$ _! l+ L6 R————6、雨润星雨华府 138㎡户型研发——— 家里人喜欢出去旅游,喜欢不一样的家的感觉,喜欢清清爽爽的家 7 r a5 j, W+ Z8 a2 C" |# L
面积:138㎡8 T5 M0 T3 H& N+ b8 }9 P5 {- H
风格:北欧风
d s- w/ d1 Y2 G& R$ `3 W% L: {9 o设计师:曹玉梅(锦华城北全案设计中心主案设计师) 8 ?! j$ X" x& r! U1 Y
平面户型图
: X8 A6 v2 n; w! u' O5 I. X, N▼ . O* e( V: K y x" Z9 w7 U# X
效果图
5 g2 S6 v: d. o3 T/ C▼ 6 i' H/ ]; `. k% R
, T6 J& j7 B9 w' w) Y 您家拿房前,锦华装饰都做了什么呢? 3月20日,锦华装饰楼盘主管小熊童鞋带着设计师们去雨润星雨华府去量房啦~想要做出精细化的研发方案,必须要亲自去星雨华府看看实际情况哦~ ▲ 锦华装饰设计师们亲自去工地,对各个户型进行实际测量并记录下相应尺寸 9 b; c j' v: D) Y, w
4月2日,锦华设计师们经过10天多的思考,雨润星雨华府的设计研发小组聚在一起讨论各个户型的优缺点,并提出自己的修正方式。 ▲ 雨润星雨华府锦华专案设计组进行分组讨论,最后派出设计师代表进行讨论结果分享。
8 f% S9 R8 v. f7 ^& y 现在,所有的雨润星雨华府的研发方案早已出炉,期待您的翻阅 : ~( u" ~, Y3 @- K- x* B/ d
▲6 k: x; ?7 r% ]
雨润星雨华府最精细化的研发方案等您来看!
# l+ Z; W8 O- q! i7 {. [: u P 动了吗?那就联系小编吧 联系小编您还可以获得: 1)获得自家平面方案一套 2)参观锦华装饰在建工地 3)参观锦华装饰实景样板房 5)获得150P《2015-2016年度·锦华装饰优秀实景作品年鉴》 6)和设计师面对面进行设计沟通 7)获得当期活动相关优惠 8)以及其他一些关于家装设计方面的服务都可以联系小编哦。 在线预约: 电话预约:0513-68506787
( c1 K) n% g2 ~: p& |& Q. |8 z& l! D H
# K9 v+ e: t% B. `3 a5 G& { . o) Q6 g( ^( q* O* E& n
6 _; M. ]7 ]$ |, i
# b9 r/ |+ A; j% g. y1 D/ v3 s+ `3 F! S
0 w1 L9 z, A. q5 V1 o# [$ g; \' t
; ?5 |; g7 n$ }/ B& u7 J, p6 c
$ z7 A% l' }4 }, {7 g* C
. o& K) E3 F- x$ p7 D
! i6 P# S: I5 [5 d$ ~( \
/ b' J( H! m6 l, k
" d+ z3 \# \- {3 _& G
8 Y! @6 Z$ a9 k, N* c
+ F1 a& D6 d( B
南通0 |