本帖最后由 南通华浔品味 于 2016-7-22 11:07 编辑 4 K, I2 c( [: z# s/ P
: X/ G7 P1 t5 P* C& x2 X92平二居室巧妙隔出书房,空间0浪费
' E6 Z3 B$ g6 z3 [% U; l5 j# [1 R屋主说:房子交付后,完全没有经验,如何装,找谁装,装什么样的风格,这都是问题,在和设计师默契的交谈之后,很快有了设计方案,设计简单、大气,美观且实用,低调中夹杂很多时尚元素,90方的房子有了100多方的空间,空间0浪费,果然是有眼前一亮的感觉。 - r$ n- |1 |- E$ c+ }
▲ 原来的户型图,一进门就是一堵墙,超级压抑,北边阳台死大死大的,都可以顶厕所和 厨房 那么大了,不利用太可惜了,而且整个户型没法找到一个储藏室,非常苦恼。 3 J: e2 C9 t' E3 P) q
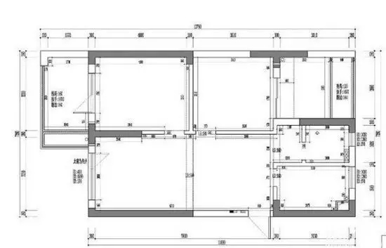
▲设计后的户型图,把次卧改成客厅,和 餐厅 连一起,北边阳台设计成阳光 书房和客厅半隔断,而且还多了个储藏室,次卧的大小也刚刚好。
% e( {) z2 M6 S1 F5 I/ t" C1 ]# q3 L2 F
▲ 全开放式装修,增加了房子的通透性,小户型空间也显得特别宽阔* ?0 [( K( n( f4 \. w6 |
' D* N0 x$ L5 k' j9 t5 A
+ e* I* @4 @. i, [▲餐厅和客厅的吊灯一定要买同一套的,这样才会在视觉上和谐' t" Y* K* O8 V/ W' Q Z
" o5 w1 h- L6 n+ V5 x, [) O5 ]
▲用半墙作为隔断,还做了一扇腰门,显得很有生活情调的感觉。沙发隔断后面就是设计师巧妙设计出的书房空间 0 i9 S- l3 y# E$ E
▲把次卧改成客厅,和餐厅连一起,北边阳台设计成阳光书房,和客厅半隔断,而且还多了个储藏室 ! E' _: n& Q: @. j2 g
9 ?2 w$ p# b, ]
▲最喜欢在冬天里,猫在阳光房里晒着太阳,多么惬意的一件事情!阳台隔出来的阳光房,客卧室改成客厅,多出一个储物间 9 [" D- R! Q$ U/ U
▲主卧室里,绿色背景墙很显小清新,床品和壁纸的色调也很和谐。
2 i0 A1 ^ ^9 `1 p▲ 次卧室带一点点小小的田园风格,窗帘和床单风格相近,唯美温馨
# t& y9 D! l; C& C8 l
& D3 S" R, V& z' Y- N5 A9 N1 C一张纸、一个框架、一个户型、一群人、一件事———方案设计,为得是有更好的设计想法和舒适的空间带给亲爱的客户…做设计我们一直很认真、一直在前行 , ^# ?5 B6 { x1 |$ `2 G
如此团队只你给打造一个适合你自己的方案。还有什么可忧心的? 来华浔吧,你会得到你想不到的意外之喜!! 5 d9 F" p; x, a' k
活动赶紧报名起来吧!报名热线:15950859035
' ^' e- ]& S# `+ Q0 ~ q 亲爱的业主:
6 q/ z" I2 _0 n& h$ z. K不管您准备今年装,明年装、后年装,如果您希望能够拥有一个温馨、美观、环保、健康、时尚、舒适的家居环境,请您百忙之中抽出时间前来“华浔”,亲身体验“华浔”专业的设计理念,专业的施工团队给您带来的与众不同的感受!
! d. k3 c/ ]1 P
( K( f. }0 P/ R& J
0 {3 `9 E i1 X3 ]" n# [# ~5 C为了您的消费权益请选择正规有装修设计资质公司进行装修。+ p. i2 f2 W% Q- s/ `
一切家装都是为了完成一个梦想,华浔将为您圆梦。 2 g2 h( n9 Z1 T' \: n0 \
7 i: T. m8 v1 A6 d1 b6 n
- s. h# e+ J# n( A5 S5 \8 c: V0 R情报人:华浔小颖
) N4 L9 D2 L0 |' r+ s情报扣扣:1242761035
) f5 B4 @6 `+ Q6 k" N" {
1 R" v+ U8 Y0 m欢迎来我的空间看我,每天都有案例更新,海量的实景,N多的装修宝典,保证亮瞎你的眼球。。。。。。猛戳,戳, 各种风格参考,海量实景图,各种创意方案戳,戳戳,戳戳戳。。。。。。。 4 c7 r6 k, M# J/ `
南通华浔品味装饰官网:http://nt.hxpwzs.com/ 欢迎大家登入,更多了解南通华浔! ( q3 O1 n4 M/ B8 P% F6 u( V" q
$ d5 I' u5 u) R5 G7 g9 p/ c ]
关注微信公众号会有更多的惊喜☝☝☝☝☝
) R) t% }# ~0 n" ~; i" U; t$ a9 s3 T. }
5 `- R. C( t8 b+ }6 k5 F南通0 |