: g N! T$ ^+ a6 I& [# S
- Z3 k; m( h5 k/ L0 R# D' c' J* _; a6 F品质十三年,相伴十三载,华浔品味装饰扎根锡城13年时间里,坚持以创新的服务意识,将客户的需求与设计师的设计风格相结合,不断推陈出新,在工程服务上,公司坚持“做一个工程树一个样板”,把每一位客户的家都当成自己的家来装修。6 n# ^# F: r+ L: D6 g# H% p
/ b8 Y5 f9 L$ w) C# q+ P, A& k$ j% k$ V/ F
男主人:而立之年,是一家私人企业的高级主管,整日置身商场,忙于奔波。希望能有一个舒适温馨的家,抚慰他整日疲惫的身体。 女主人:年轻貌美,全职太太。喜好种花养草、欣赏文学,经常参加瑜伽之类的健身活动,希望拥有明亮宽敞的落地窗,午后沐浴阳光,夜晚赏观星星。 两个小主人:活泼可爱,爱幻想,总爱在放学后缠着爷爷奶奶,听他们讲那个年代的故事。 备 注:两位老人每周都会前来,一大家聚在一起共进晚餐,其乐融融。
, J& P8 O+ y- }
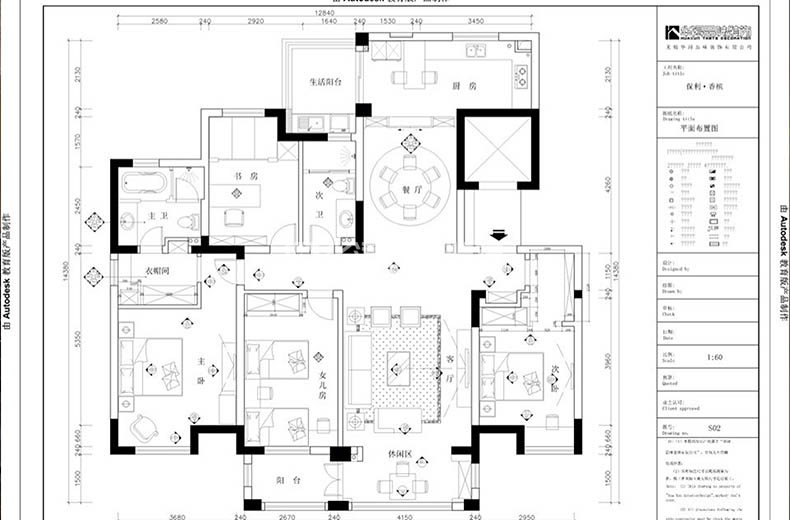
案例风格:欧式经典: l9 }8 b7 r, L5 @9 X
面积范围:170平米
# e. k6 D: J z/ m1 k6 d% }+ O 户型结构:四房两厅2 m+ i- U* K' X
6 x8 v0 b" A. k' X* F
本案采用清新简明的欧式风格,并且强调了线性流动的变化,将室内雕刻工艺集中在装饰盒陈设艺术上,色彩华丽且用暖色调加以协调,变形的直线与曲线相互作用以及猫脚家具与装饰工艺手段搭配,构成了本案室内华美厚重的气氛,显示出豪华、富丽并且充满强烈的动感效果。
5 T2 W, @/ q1 i( t4 p1 i; n# }, a6 a
- c) \ c0 }% U4 C3 P3 c& a2 }
$ u- v' d h5 ~
: k( n) F ~) |: \5 h
& G* v7 g- y3 }9 G6 }6 w. j/ k" B* R4 m
( G7 Q3 h3 T. Z3 o( I+ j
% h/ T" r/ u W5 j7 j7 K8 Y5 n6 R/ l; n) {: T
% f$ N/ R+ q8 }1 }
; R6 L6 \ A9 _/ P& x; i# l, u" B4 d1 k
, s0 b! ` Z% Y ?* O- H! o- d7 Z" c" k
+ Q& v8 ]6 W* j7 d! s6 x; i! q+ n( L
( j0 n& S* F) B6 {. }' W1 I6 ]7 f4 o4 Q. i! y- L
& y8 @' }2 D3 q; _6 q7 w+ ?2 |6 ^
( R' N' D( l: B0 n0 z' H+ G6 U s
6 ^; f, ^9 L# L/ m5 i- L: T; v1 b3 V9 }# J7 ~: J, ]" @% R; k
* v& P+ ], |* N; {3 G2 \* ^6 R! N1 I7 \6 \ L1 K
- C8 q( ]3 k* g' g: B
% \' c* |9 h% L0 e4 }/ U. j% p七月十七:普天同庆大酒店(长江南路与紫琅路交叉路口) 来华浔吧,你会得到你想不到的意外之喜!!
/ P9 A8 G( P' g0 j, |1 ~4 B* C9 [
活动赶紧报名起来吧!报名热线:15950859035 报名热线链接: http://g.eqxiu,coм/s/8Hcd42wx?eq ... ne&isappinstalled=0
# _) M( ^' i' n4 \* m% n! @0 S' ~; C步伐不停,精彩不停,优惠不停!! 6 _. R8 D) ~& a
1 V1 R' S- `! Y& }
亲爱的业主:
2 c$ X3 R- {' v% A不管您准备今年装,明年装、后年装,如果您希望能够拥有一个温馨、美观、环保、健康、时尚、舒适的家居环境,请您百忙之中抽出时间前来“华浔”,亲身体验“华浔”专业的设计理念,专业的施工团队给您带来的与众不同的感受!
7 t- ?0 y, R% F! f* S5 i; h% o* _& A3 G; I1 w- s9 v
+ @: j# f$ o$ p% ]) S" M |
情报人:华浔小张 0 n3 t" t+ C5 ]+ M% v% W
情报扣扣: 2907601580
" z j3 J) s S- L# U8 p W咨询热线:15950859035(微信) 6 C' u2 I) G; i$ k6 r4 p3 Z
1 e- w$ x+ H, L( O
欢迎来我的空间看我,每天都有案例更新,海量的实景,N多的装修宝典,保证亮瞎你的眼球。。。。。。猛戳,戳, 各种风格参考,海量实景图,各种创意方案戳,戳戳,戳戳戳。。。。。。。 , W9 [% |; b V$ ?; n7 T# R! S8 E* u
南通华浔品味装饰官网:http://nt.hxpwzs.com/ 欢迎大家登入,更多了解南通华浔! & M2 h: K" q8 Q( Y$ }4 n9 S; R0 L
关注微信公众号会有更多的惊喜☝☝☝☝☝ |
南通0 |