本帖最后由 南通华浔品味 于 2016-7-2 15:12 编辑
, g+ G! i# G; k3 ]# b+ g4 A8 J1 i
六月是奋斗的季节, 2 P* U7 L' |! _
六月是丰收的季节,
& ?7 Z- {/ B( T7 g0 M# q六月是有喜有悲的季节, ( l% R( k: C b$ y
让我们来见证这一刻!
0 k' N/ S1 `8 x' B0 m0 U1 }: z+ K六月也是万濠业主拿新家的日子,大家现在已经开始向很多装修公司了解装修方面的知识了!殊不知我们华浔六月份正在为业主搞了一场圆梦幸福家全国26城与当地的15家建材联盟商搞了一场隆重的活动。
W2 Y: ]4 T0 V9 w, `% o↓↓↓
3 O" ~5 C5 \7 y3 h2 A七月十七:普天同庆大酒店(长江南路与紫琅路交叉路口) 万濠星城上期的我们总共做了做了三十多家,其中有22#803,20#1303,20#702,20#902,20#2202…………等等,小编在这里就不一一说明了 ,即将拿房的四期,已经开始陆陆续续有很多业主向我们咨询了,并且签约的有7#603,7#1503,7#705,7#504等等,小编也就不一一说明喽!别人都开始寻找家了,你呢!圆梦幸福家——华浔品味装饰! 4 a" A) O, F5 Z6 H3 G
2 E2 B: z& J0 [* I
# a/ w6 R( k# h( J% G* J
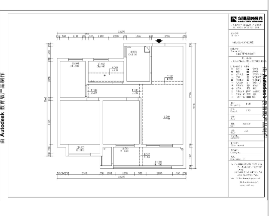
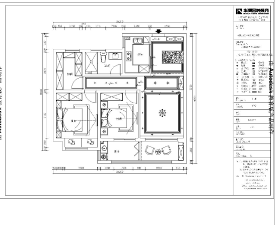
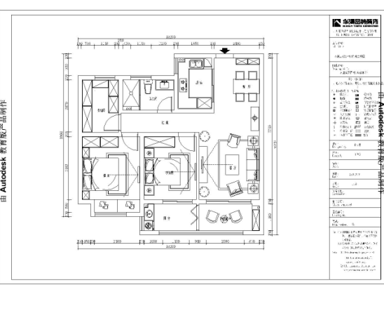
接下来小编给你看看你们这期的设计方案和效果图吧!我要是再不进入主题,你们是不是要发疯的节奏哇! 1 u/ J% @( L: `& q; D
5 M3 ]) F! O9 L* X
% J# A" c5 D7 p# o" C/ m* Z
3 {5 S, G$ j( d" @) {4 h# v
8 X& w6 i/ i% |' \0 A* r
" r- q4 d& C7 |: m! E _
$ a1 `# r& u0 x7 ^. K( j' }+ w% H2 |- U8 A
% e) J' l5 v4 T+ z4 Y, W
2 ^: V1 Z9 Y4 U+ k
7 j& N1 t9 A4 d" `& }4 h$ n+ x平面看不过瘾,还有360旋转哦,来华浔,更有不一样的体验哦! 3 a( z% Y% k2 |- V1 Q' b
0 O4 w' a3 J8 b& G% @4 z. S
7 a1 p, R4 G( F4 E8 |
{$ [3 ^! @# ?/ l4 x$ D$ S
9 ]7 r- `5 P6 D b5 i: z8 x2 u/ N# T: j) P' j6 p) W+ W- X
# V9 e$ F J% O" a- z
. ^* M& a0 Z' B3 H7 z h! H" P* B4 @
8 u3 k3 ~% }: T ^' b) ~# Y/ G% w1 T/ }* e$ A! n' n G* S
平面看不过瘾,还有360旋转哦,来华浔,更有不一样的体验哦! ; l' w) L0 X* g$ G5 I$ O$ N0 F
- S( p' O, Y( C华浔品味装饰是你最好的选择 . M+ n9 ?7 T' M; f0 j, Q
亲爱的业主:# z- }: D% a* x- Q" u& n/ u) m* H
不管您准备今年装,明年装、后年装,如果您希望能够拥有一个温馨、美观、环保、健康、时尚、舒适的家居环境,请您百忙之中抽出时间前来“华浔”,亲身体验“华浔”专业的设计理念,专业的施工团队给您带来的与众不同的感受!2 ^8 w+ j) Z8 ?/ J$ [! [
+ g, u2 [2 I( P! S; C; q I# r
为了您的消费权益请选择正规有装修设计资质公司进行装修。
3 d, F) b2 z: Z3 ]/ N 一切家装都是为了完成一个梦想,华浔将为您圆梦。
" J4 |( K X- E3 F, o8 D/ t! H2 N. a8 I) u. y
. P6 {% Z2 F6 x/ c( F
情报人:华浔小颖 2 A! K# ?3 X+ g- D. z6 x! c
情报扣扣: 1242761035  咨询热线:15950859035(微信)
& r* b J4 E+ @3 c! t& ?5 S Q& H! U s, C4 o
欢迎来我的空间看我,每天都有案例更新,海量的实景,N多的装修宝典,保证亮瞎你的眼球。。。。。。猛戳,戳, 各种风格参考,海量实景图,各种创意方案戳,戳戳,戳戳戳。。。。。。。 ) K" A' S E1 N* k% `
南通华浔品味装饰官网:http://nt.hxpwzs.com/ 欢迎大家登入,更多了解南通华浔!
, S# n( P. p9 m5 L- H9 _
2 S6 B# M6 h9 A9 r7 b( v关注微信公众号会有更多的惊喜☝☝☝☝☝
5 ?0 Z' x# S3 c" V: G. x5 h, Z! j+ o! o2 m
南通0 |