- 阅读权限
- 255
- 精华
- 最后登录
- 1970-1-1
- 在线时间
- 小时
- 主题
- 好友
- 相册
- 分享
- 日志
- 记录
- UID
- 992952
- 帖子
- 0
该用户从未签到
|
发表于 2016-6-21 18:20
|
显示全部楼层
|阅读模式
来自:江苏 移动/数据上网公共出口
楼盘地址:华强城 \) `8 p/ L- l1 U/ a8 N; ~, @
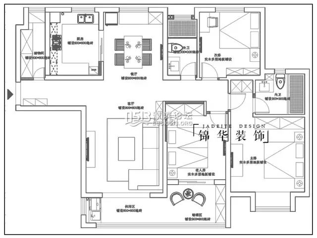
建筑面积:139㎡
; y9 ^; {8 R3 O. Y% P7 I" B装修风格:现代简约) ?. @ b% ^8 w- t+ O/ W/ x2 }/ J) Z
全案主材报价:10.8481万. {2 S1 J6 r1 ^: y+ M: W4 W
G7 Z, l. R* q- {" E# a$ o) g
原始户型图 ▼
5 S% C* V0 {- p+ J; l
平面户型图 ▼
; W' T% T7 L8 O4 z风格效果图 ▼
& W0 U3 T3 T4 z! C" a8 y' G0 _全案报价 ▼
▲1280元/平米主材报价(点击上图放大看更清晰)& { x5 V7 c+ Y: }& F
1 |5 T0 K5 @2 c9 E: p8 a锦华装饰【3店齐开·家装升级】 全案升级:从半包到全案8大项主材整装,效果前置和价格前置双重保障。 8大项主材整装:锦华装饰集团采购,包含厨卫墙地砖、地板、衣柜、木门、集成吊顶、橱柜、卫浴、灯具8大项主材整体配置。 效果前置:在可视化的彩色效果图和实样先期确认的前提下,以效果图+材料实样为工具的高性价比的家居效果解决方案。 价格前置:在材料的价格体系和品牌体系可保证的前提下,以总投入控制在如1280元/㎡为基础的家居集采解决方案。 ) B; l B' R2 v" s, P
锦华城北全案中心,6月正式开业! (城北店地址:濠西路118号尚德城邦A幢201) 更透明,更便利,更放心的品质家装
: U: x9 d3 V _5 X" B/ h* ?% o ?( K- f给您全新的全案家居体验* I+ J. r2 Y0 ~$ j% R
点击了解更多 ☟
* G( a- w6 J$ X
联系小编您可以获得: 1)获得自家平面方案 2)参观锦华装饰在建工地 3)参观锦华装饰实景样板房 4)和设计师面对面进行设计沟通 5)获得150P《2015-2016年度·锦华装饰优秀实景作品年鉴》 7)以及其他一些关于家装设计方面的服务都可以联系小编哦。 在线预约: 电话预约:0513-68506787 4 H7 m, O+ R: H! A
1 _+ {7 Z6 T; [' j6 Y8 r& u& n
X5 h5 T+ X! S8 W P$ V# }
4 {7 l0 |' {; t: c% C
( I# b3 \) t( u& p7 ?
! c7 @8 _* {3 L; a) k4 V3 Z% h
9 c' E5 B7 t9 {. b Y/ G南通0 |
|