濠滨论坛

点击扫描二维码

查看: 60902|回复: 1

绿地新都会150平米现代风格赏析

[复制链接]

该用户从未签到

发表于 2016-6-19 17:59 | 显示全部楼层 |阅读模式 来自:江苏 联通
【主材预算】:35   
半包预算】:9
【设计师】:陈文潮     
户型】:三室两厅            
【面积】: 150
【装修风格】:现代简约   工程地址 绿地新都会11#1802
【户型缺点】:1、厨房空间有点小  2、书房和衣帽间空间过小

2 z. l8 D- H- G% N
【原始平面图】:
原始结构.jpg

5 E$ H7 K4 s1 N2 ?: U' x9 d$ F8 B. d3 ?0 r& e& e

& M8 S9 ^6 z/ @) L: C7 Q; G; Q4 ~: O
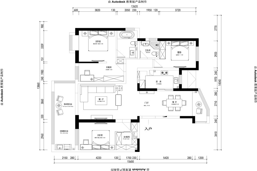
【改良后布局图】:
平面布置图.jpg
- g* \5 q7 O4 K5 S0 R, l& @

% t% }2 k+ `( m* O$ V1 U6 H
【效果图】:

" e% y6 l7 i8 ^! e! C9 E4 s
kt1.tga.jpg
  `$ w8 N( F& H6 y* @9 v# o
% Z. C. l" X6 V. h  Z# a
ct.tga.jpg
4 {) h- g! |( \, a  x

; K" @$ ^, P' H# C" P( ^
【设计说明】:   此户型为150平方案例,在功能格局设计上,北阳台墙体拆除,设计个地台做为休闲区,使餐厅的空间更大一些,采光效果也会更好;厨房空间扩大用起来更舒适;次卧室考虑个衣帽间增加储物空间,生活上更实用。

. k2 M6 P1 s1 K% i2 S  g* I: c5 O/ e
在设计材质上,大面积采用了墙纸和护墙板搭配,营造出一种简洁,大气,温馨的感觉,配合简洁流畅的木线条,和背景墙仿石材砖的运用,是整体不失档次感和大气感,符合了业主的生活品味。

2 C' b$ Z! g$ v, T8 A! A" p. @0 A6 p5 X南通0

该用户从未签到

发表于 2017-3-4 11:54 | 显示全部楼层 来自:江苏
为设计师点个赞
回复 支持 反对

使用道具 举报

您需要登录后才可以回帖 登录 | 注册

本版积分规则

手机版|无图版|站务联系 | 商务合作 | 平台公约

信息产业部备案:苏ICP备05014191号-1 经营性ICP许可证:苏B2-20110445 苏公网安备 32060202000307号 © 2001-2019 0513.org All Right Reserved.

投诉争议 技术支持:第一互联 GMT+8, 2025-12-23 15:45 , Processed in 1.301704 second(s), 17 queries , MemCache On. 站点统计

快速回复 返回顶部 返回列表