濠滨论坛

点击扫描二维码

查看: 39157|回复: 0

【设计秀】惊呆了!这才是美式风的正确打开方式!

[复制链接]

该用户从未签到

发表于 2016-6-13 10:09 | 显示全部楼层 |阅读模式 来自:江苏
厚重、大气、温馨、自由
美式,一直被阔绰的有钱人追捧
当然,不但是他丝毫不吝啬的挥洒
还有他看起来就与众不同的个性
重金装饰,气场杠杠滴

0 [% }, x. @" s5 b* E7 k8 Z; M# O
QQ图片20160609093853_副本.jpg
. p( W& f1 F' X5 D6 `

) K+ p# ]/ n5 m( N       设计说明:美国是一个崇尚自由的国家,这也造就了其自在、随意的不羁生活方式,没有太多造作的修饰与约束,不经意中也成就了另外一种休闲式的浪漫,而美国的文化又是一个移植文化为主导的脉络,它有着欧罗巴的奢侈与贵气,但又结合了美洲大陆这块水土的不羁,这样结合的结果是剔除了许多羁绊,但又能找寻文化根基的新的怀旧、贵气加大气而又不失自在与随意的风格。美式家居风格的这些元素也正好迎合了时下的文化资产者对生活方式的需求,即:有文化感、有贵气感,还不能缺乏自在感与情调感。6 ]/ E: E7 e( u3 c( ]) C1 S+ @
: S3 Z) Q# q2 X  r3 @) ?, B" Z
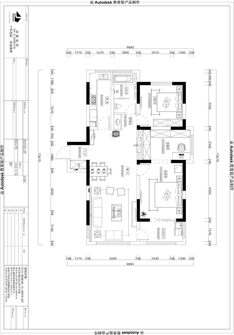
平面布置图
平面.jpg

0 c' r6 B, I7 u9 x  ]! p: w
效果图
1790ae894beec77314baa3c5d2f6a44_副本.jpg
( Z$ c4 b. c( Y
833a17b076134537e2175280c9fc5ea_副本.jpg
! x/ b/ a/ ?" Q9 Z. `
2d340e5e4cafc886526da8e40746757_副本.jpg
" K+ U/ t& y) `7 a. N" E; q
1358170f177bc085ec71caccbace486_副本.jpg
% n) X: U  \1 r" }; c4 z
* M4 S' t9 ?4 h' f' B5 G9 V4 i
      如果说中式风格庄重沉稳,日式恬淡宁静,欧式华贵铺张,那么美式,就是粗犷霸气。他厚重得像陈年的北大荒,有着天生的坚硬和放肆。说一不说二的单一木料和粗石铺陈,现代与古典的碰撞自由和独立的果敢,既不羁又温暖、开放又霸道。没错,对美式风格钟爱的业主,都透着那股不言自明的坚毅与张力。
南通0
您需要登录后才可以回帖 登录 | 注册

本版积分规则

手机版|无图版|站务联系 | 商务合作 | 平台公约

信息产业部备案:苏ICP备05014191号-1 经营性ICP许可证:苏B2-20110445 苏公网安备 32060202000307号 © 2001-2019 0513.org All Right Reserved.

投诉争议 技术支持:第一互联 GMT+8, 2025-12-22 19:54 , Processed in 1.078352 second(s), 13 queries , MemCache On. 站点统计

快速回复 返回顶部 返回列表