濠滨论坛

点击扫描二维码

查看: 32830|回复: 0

金水湾-欧式案例

[复制链接]

该用户从未签到

发表于 2016-6-12 09:58 | 显示全部楼层 |阅读模式 来自:江苏
金水湾样板房-400平欧式案例

描述:本案以奢华、高雅的欧式风格设计呈现出空间界面丰富多彩的变化,既有立体感,又有一种奢华的表情。魅惑、华丽的吊灯和射灯堆砌出焕然一新的视觉美态,典雅、奢华,美轮美奂。大面积天然石材护墙板的运用使空间更显奢华、绚丽,整个居室充满灵性和浓郁的贵族气息。


客厅效果图

客厅效果图

客厅效果图

客厅效果图


挑空的客厅,华丽的窗帘,圆形的灯池配上水晶吊灯,制作精良的罗马柱,完美对称的电视背景,每一处都体现出了欧式的元素。
镂空的铁艺栏杆,花色的墙布,沙发华丽的布面和精美的雕刻互相配合,堪称艺术范。


客厅效果图

客厅效果图

客厅效果图

客厅效果图


卧室效果图

卧室效果图

卧室效果图

卧室效果图

卧室效果图

卧室效果图


超大的卧室给人一种以地为床以天为被的壮阔之感,搭配高档纯手工实木大床与水晶吊灯,尽显欧式奢华风范

卧室是家居中最不可忽视的部分,不大不小的空间,温馨,安静。暖色系色调,最有利于睡眠。绒布配白纱的窗帘,欧式的床柜都尽显优雅,还有如此大床,你不爱吗?

餐厅效果图

餐厅效果图


局部效果图

局部效果图

局部效果图

局部效果图


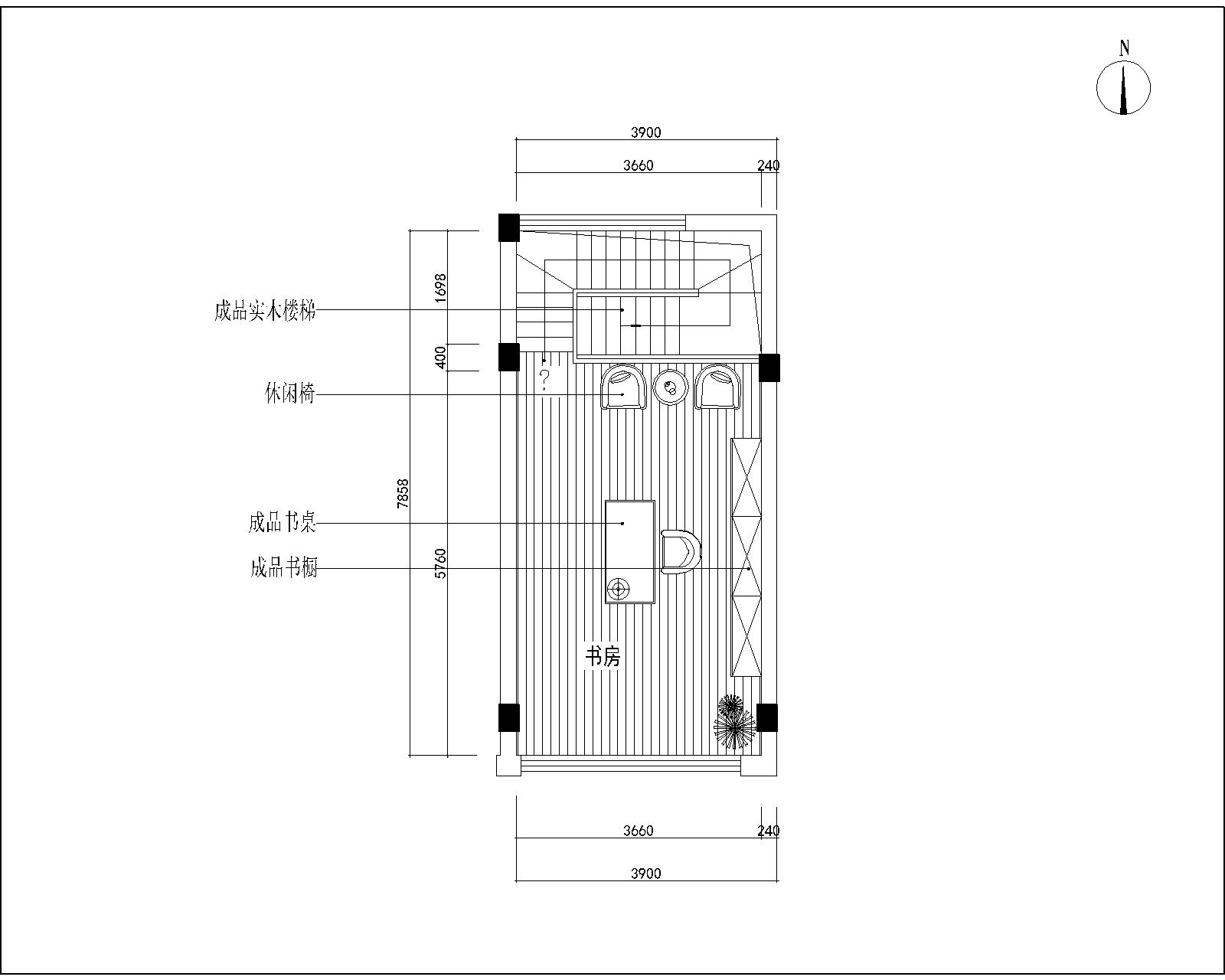
深色墙纸与实木内饰的搭配相得益彰,书柜与时钟简洁大方却又不失精致,整齐的书本与随意的相框优雅中传递着些许生活的味道。



书房效果图

书房效果图



放书桌的地方我们所需要做的就是减少多余的装饰,乌金木的材质保持了一如既往的豪华质感与独特触感,让家不仅仅是港湾,还是一个充满了艺术感的地方。



车库平面图

车库平面图

车库原始平面图

车库原始平面图

地下室平面图

地下室平面图

地下室原始平面图

地下室原始平面图

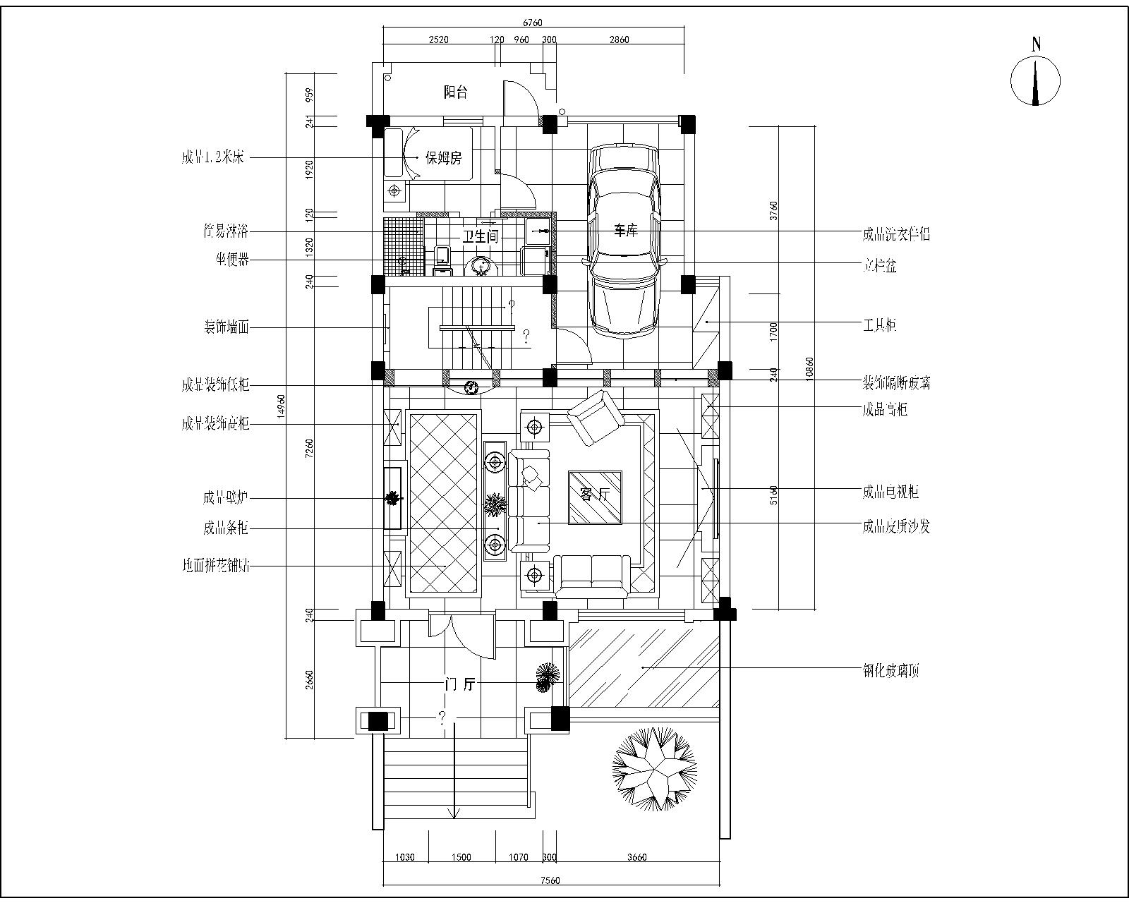
一楼户型图

一楼户型图

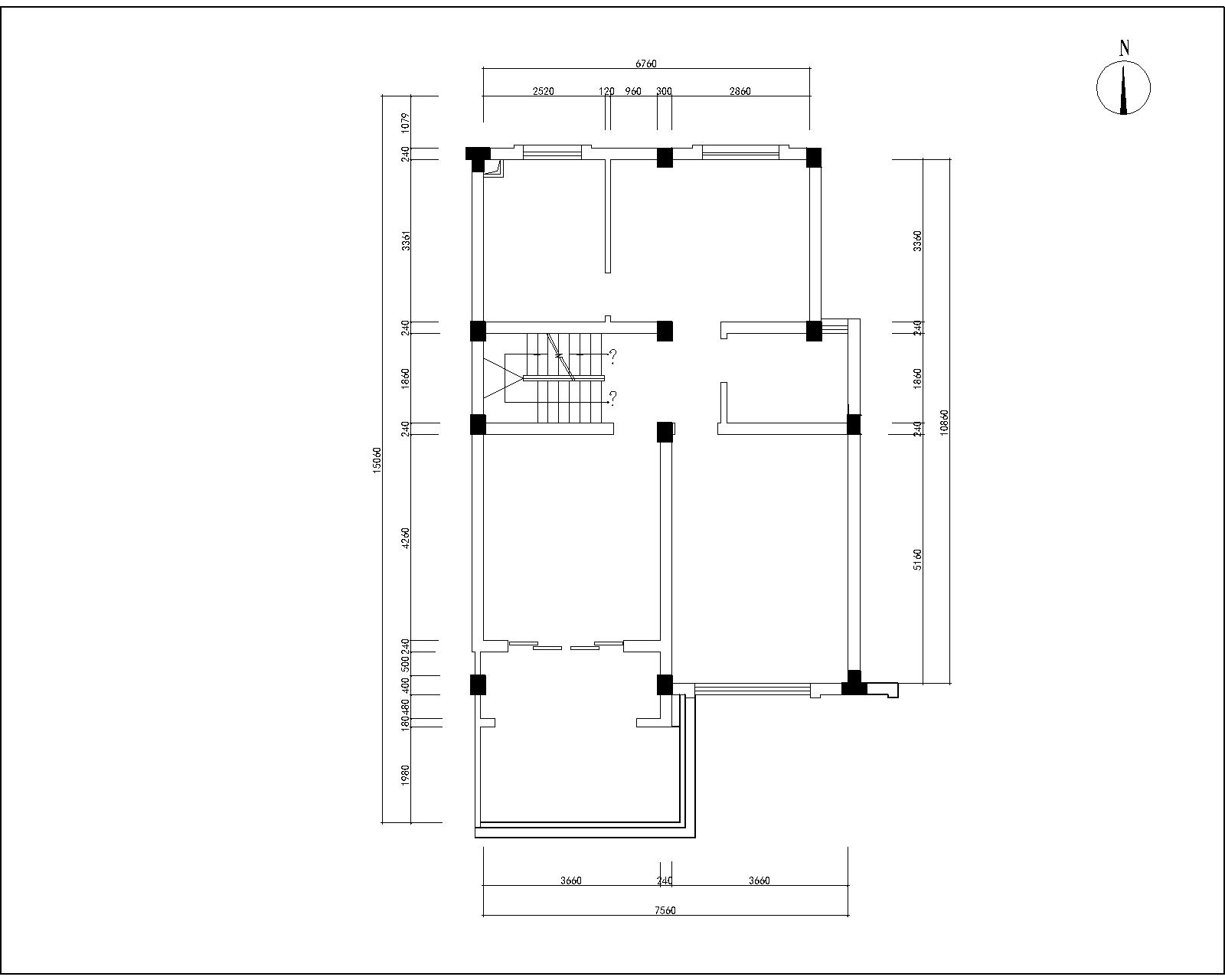
一楼原始户型图

一楼原始户型图

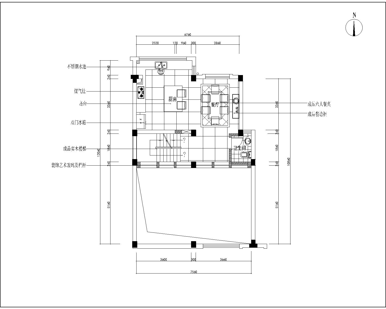
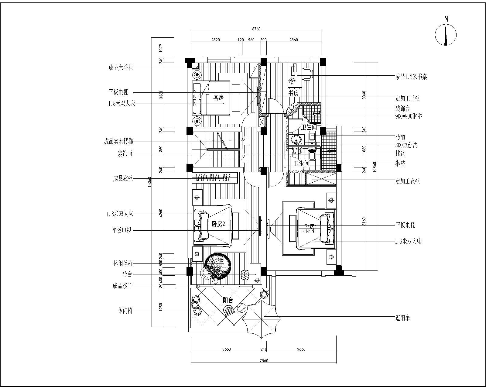
二楼户型图

二楼户型图

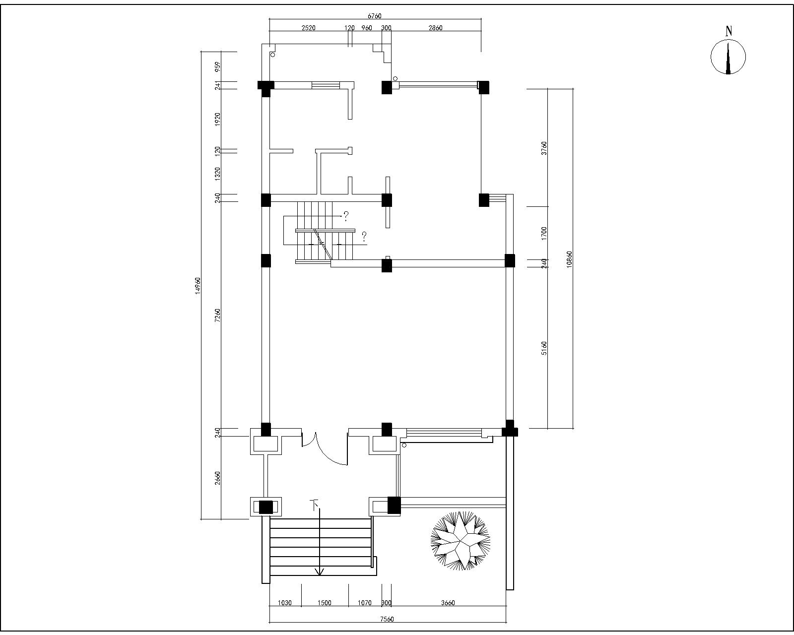
二楼原始户型图

二楼原始户型图

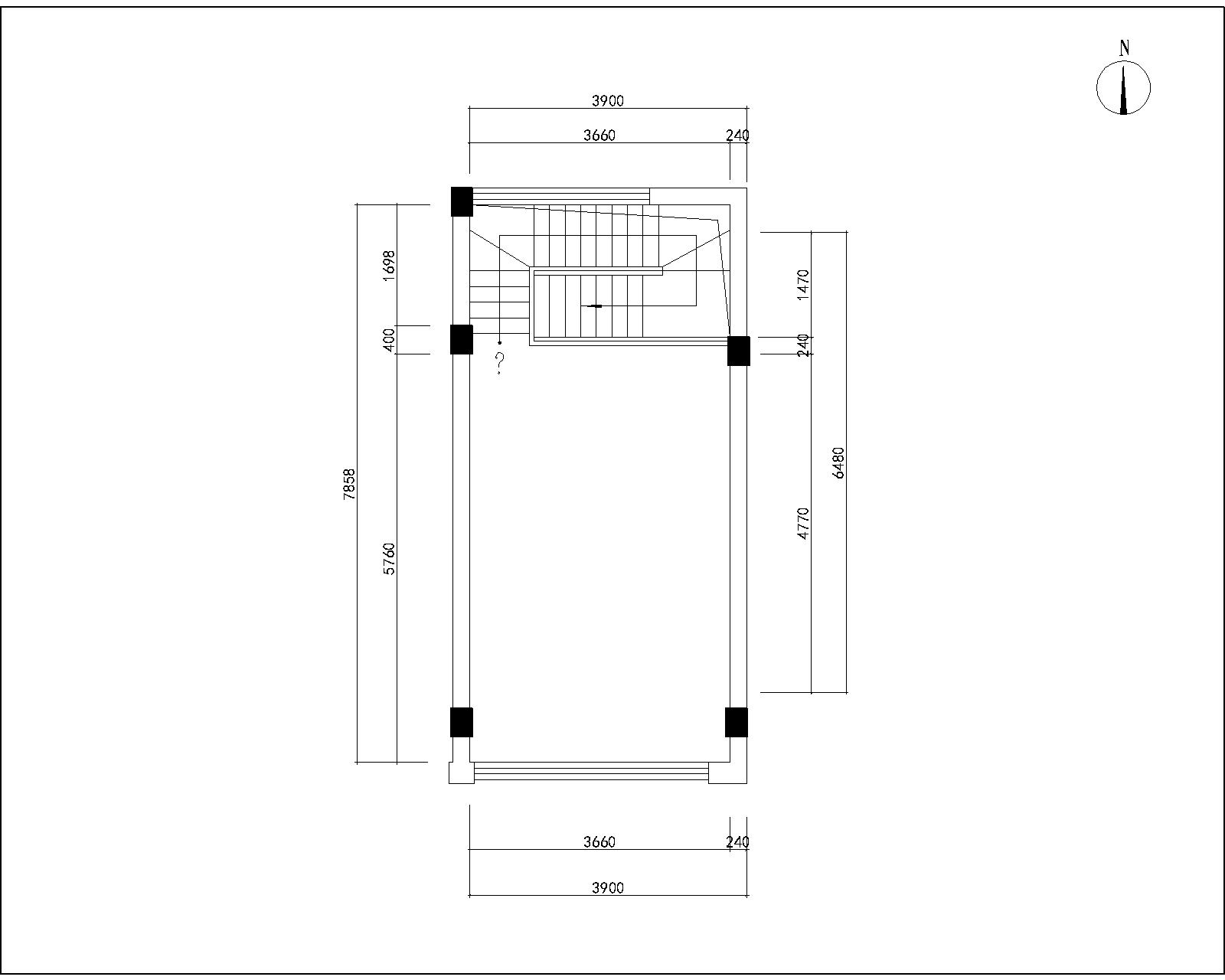
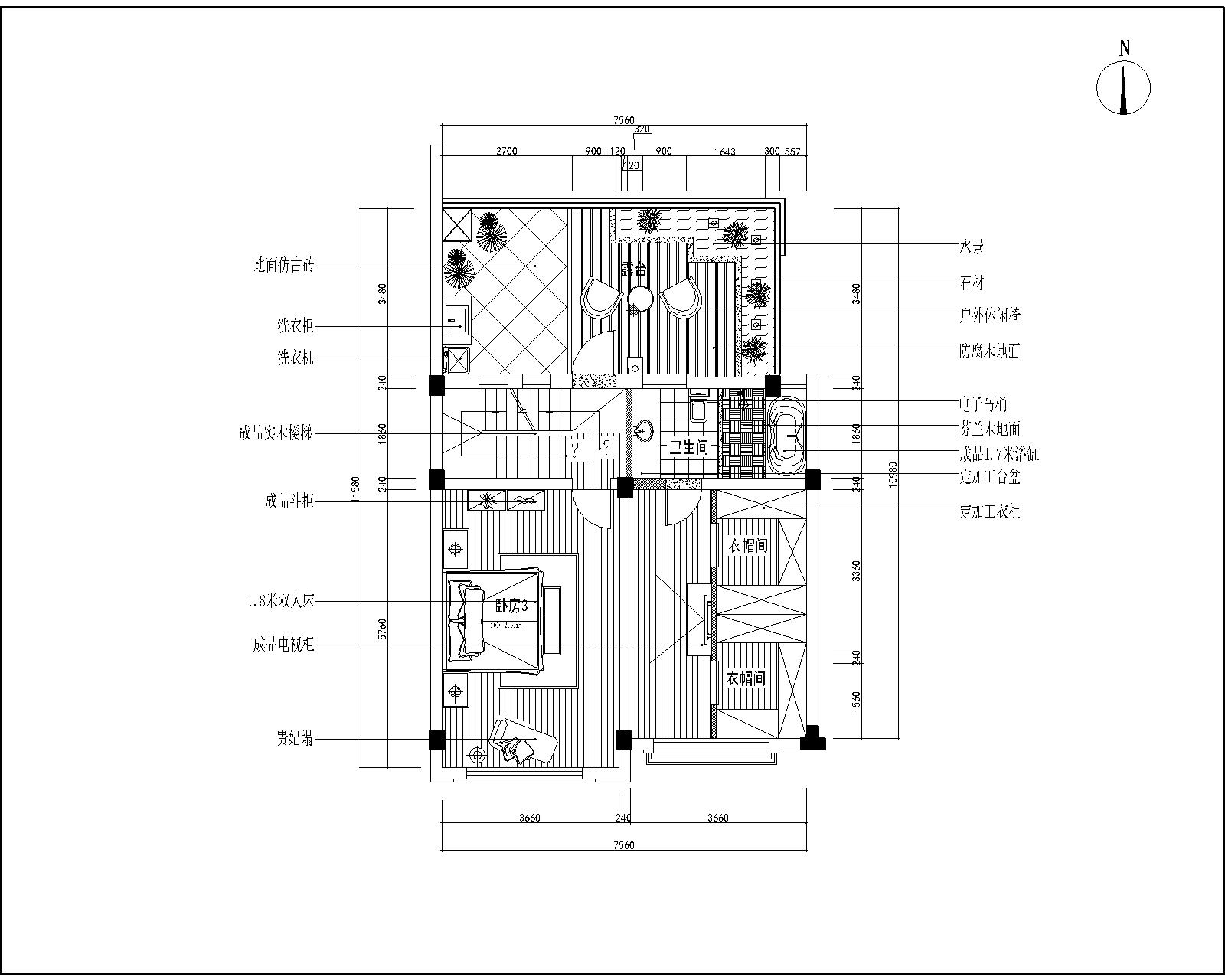
三楼户型图

三楼户型图

三楼原始户型图

三楼原始户型图

阁楼户型图

阁楼户型图

阁楼原始户型图

阁楼原始户型图



南通0
您需要登录后才可以回帖 登录 | 注册

本版积分规则

手机版|无图版|站务联系 | 商务合作 | 平台公约

信息产业部备案:苏ICP备05014191号-1 经营性ICP许可证:苏B2-20110445 苏公网安备 32060202000307号 © 2001-2019 0513.org All Right Reserved.

投诉争议 技术支持:第一互联 GMT+8, 2025-12-20 09:47 , Processed in 1.431889 second(s), 15 queries , MemCache On. 站点统计

快速回复 返回顶部 返回列表