本帖最后由 南通华浔品味 于 2016-7-2 16:12 编辑 9 ~' a3 h8 V8 w% s2 A! J: ], Q
2 g' y$ Q" H+ G" [儿童节都快过完了,小编才想起正事(小编我还是很年轻的好不好,儿童节也可以跟小伙伴们过得很happy...... )再happy正事还是不能忘的,今天小编给大家分享一组简欧风格的案例。这就来看吧  , c/ W9 I) j+ J( }$ B% P* ~/ |' @- C
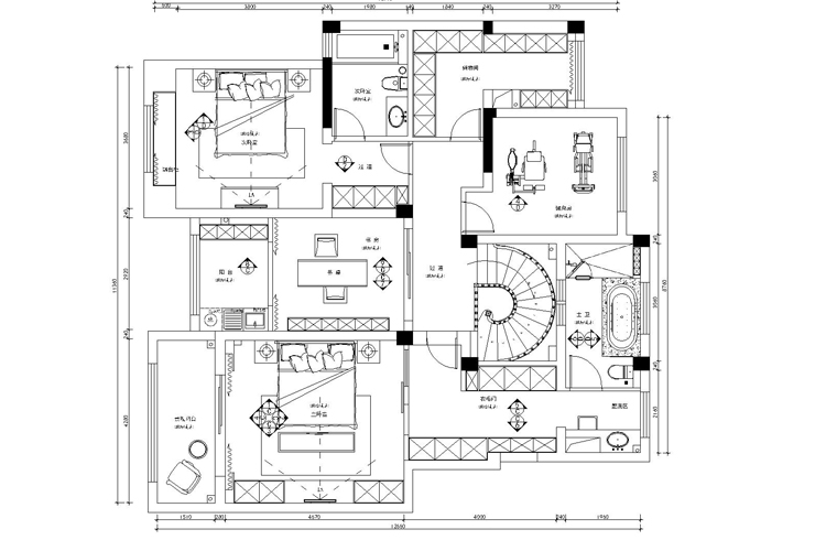
户 型: 五房两厅三卫 面 积: 248(平方) 风 格 简欧风格
4 n- b7 c/ T& f1 C# c' L主要用材:全抛釉地砖、马赛克、墙纸、实木复合地板、意大意灰大理石、 . O; P+ U/ ]% ~+ ]: o0 d
设计说明: 本案为简欧风格,接手本案设计时,设计师结合了业主对房子的基本功能需求后,在室内空间结构的调整和重组后,足以满足业主的各项需求……
6 s7 q/ R% ~8 Z- w/ |- R' S梯间的改位是这个户型改造的重点,随之而来的,是其它各空间的重组。客餐厅通过一景多用,让这两个空间能够隔而不分,又各自有着独立的区域划分,相互借景以此来扩大空间…… # q6 ?# @" R; K
在一个既定空间里,装修基本是固定的,而添置其间的配饰则像一个魔方,可以玩出很多花样,很多风格,可以随季节而变,可以随潮流而变,可以随心情而变……流动而缤纷,最终也能沉淀成一个个故事,而自己的生活品味和人生阅历也会被融入其中,成为内心世界的一个个写照。
5 X% ` {6 y/ ^+ a @2 H8 N1 \
$ u7 M) M0 u% W' \. _
9 ^6 ~2 G, g* U, j* S( V! u- F* R3 P2 n2 @! ^* q8 d, m
. K% w0 Y5 o4 \$ n v3 L1 j; ]/ }
' l. n# {0 ?8 i; k) W4 g6 i% W m$ p/ o+ R; I9 C8 f6 J0 p
2 ^. E1 C4 q3 M" d
3 R; D$ x# } F' T7 x
9 | ^" c# V# r6 M
/ P( ]3 b* ~( |3 l- P7 W
7 F, D- i% {, Q) Y1 G- s% m: Y. N# J7 ^" ?
) f( c, k @3 z) \/ p
QQ:2907601580 空间大量美美的效果图: 公司网址:http://nt.hxpwzs,coм/ / f5 k2 }+ p: y" O* _, d, R
 6 \; d" r& c! M) S: f) x7 T6 L) u! n
南通0 |