8 @! q' \) ~7 x8 \: _) U' |" B! k
c$ G" C% ?, E' \; [5 W! X看多了千篇一律的设计,却总是大相径庭,毫无特色。本文中,编辑就带大家去看看不一样的设计,没有特定的某一种风格,却将混搭发挥到极致;没有杂乱浮华之感,却将色彩运用到极致;没有怪异的设计,却个性非常,让人一眼就记住。
% z8 F5 f# r6 p" f9 R9 {0 y2 S) k8 n Z6 f; b
2 a+ P2 M# b, H; j( G4 T' z主题:色界 风格:现代混搭风 面积:80㎡ 户型:两室两厅 造价:20万
0 S: |8 Y7 a) F* g1 o
3 M) d7 F; J w/ G
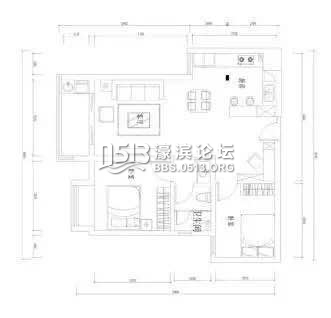
户型图 ▼
: @9 e/ h0 E3 ]/ g8 Y, N2 g“采光不好,户型改造来挽救”
0 n3 k q8 Y7 x. p7 s3 R* H; v- x% J# n8 s ?$ k
▲ 这套房子本身的房型并不好,原本进门后,右手边就是封闭的厨房区域,左手边就是次卧,一个长长的走廊尽头便是客厅,给人的感觉较为压抑。特别是厨房、次卧就只有一个小窗户,采光很差,白天都需要开灯,总是有一种很阴暗的感觉。而原本通向客厅的走廊也很鸡肋,功能性不大。
2 Y1 @0 M4 k# x$ S" H% t+ W; R5 [! j& T- q. Z6 F, j# |
1 w% N" j" O: I: W! i; I+ h1 j3 Q) I
▲ 于是,设计师果断决定将进门之后的所有非承重墙体全部拆除,将厨房与客厅打通,让空间得以释放。而左手边的次卧,设计师腾出一部分空间,放置冰箱和收纳柜。 1 G' ?) V5 J; H- `6 p. [
7 v$ K/ f' F: j0 h2 D1 S6 p* z: O+ V$ _
“打破常规,释放厨房空间” ! j: ?3 G" M5 |3 O7 s
% ~9 X# c y% x5 ^6 Y5 B% ?* _3 H. [( V4 h
▲ 原本昏暗的厨房,在改造后,马上就明亮了起来。而开放式厨房,也是当下年轻人较为喜欢的。本文的业主本身也是80后,每天都忙碌着上班,在家里很少做饭,倒是符合开放式厨房油烟较小的要求。橱柜采用最为简单的“一字型”橱柜,不占用一点多余的空间,简洁大气,也能满足业主的日常所需。 9 H, {% t0 A( F! r0 } C
9 v& |- l) i4 o9 U6 e5 L e- n6 K% U
% v, A( q5 F- T) k% c7 C( n
▲ 通过个性的小吧台和简单的鞋柜将厨房与玄关区分开来,虽说很多业主都觉得吧台的功能性比较鸡肋,但是不得不说,吧台还是很受年轻人的喜爱,也很容易吸引客人的视线。 8 ~! O& [. T6 f* b) V9 ~
% H5 ?5 k7 O q3 G6 |% ^9 H6 l. w“巧妙区分功能区域”
: \9 F! F: [/ @1 m
5 M4 y5 H0 p, o% i
5 r% }) I! ?. V# g: s% ~0 V▲ 在区域的功能性划分上,设计师也自有妙招。将客厅、餐厅通过吊顶的高低、灯光的颜色来划分,客厅的吊顶较高,灯光色彩为冷色调为主的白色;而餐厅吊顶较低,灯光色彩为暖色调为主的橘色。即使没有明确的隔断,大家也能马上区别出不同的空间属性来。
/ |% G. D6 f5 {5 ^' Q! v% o# J2 q! [" o7 q9 Y; y0 }
" p, V8 \) O5 T" Q! F
* \: w% @4 g% ]5 D▲ 在卫浴间的设计上,设计师做了干、湿分离。由于卫浴间为暗卫,光线也不是很好,因此整体色调以白色为主,选用的是LED灯,给视觉上干净、简单的感觉,而浅色的色调,也会让本身较为阴暗的空间能够明亮一些。卫浴间里没有一点多余的设计,不像其他空间,色彩较为丰富,用最简单的设计将功能最大化,也是小空间的装修妙招。 . C, [5 i8 J A* K0 i' y- J. E
. M4 I" _% J. _
' f R, t. Q3 C3 L$ k4 q! W“色彩融入简单,混搭出别样之家” ) x7 ~0 h6 }: o4 ]4 h, N
+ Y5 B1 q, A4 N$ }
- f: I! {8 F% `▲ 这套案例最大的特色就在于颜色的搭配,编辑觉得这是整个家的亮点。多彩却不繁复,个性却不会给人很杂乱的感觉。比如客厅在整体灰色的背景色下,设计师加入了很多跳跃的色彩、个性的灯具、大胆的装饰画、飘逸的阳台窗帘,还有丰富精致的软装摆件,为客厅营造出与众不同的设计感。特别是沙发的砖面背景墙,既复古又独特,加上两幅装饰画,不要太出彩哦。 . O, l1 _0 w4 g' {
; l! N; m3 \; `6 [0 a
" P2 r! R/ g7 H) c! V% P
; }! ^6 F- y* a8 n
▲ 次卧最抢眼的就是整面的蓝色,浓郁却不会刺眼,和木色家具的搭配也简简单单,很是清爽。编辑也建议大家,如果试用较为浓重的颜色刷墙,切勿再摆设过多的家具,否则会让整个房间看起来很乱、很花。 : n% j/ i' e) [' G$ R0 P+ d
7 L0 K2 q" k. N! L
; T+ ^3 F3 y$ V- X' y" e6 t; z" K6 B) U4 x) V& ^) W' A
7 b2 {( \% t+ a# S q4 M ' X2 E( q! N5 f4 S, j) W4 R% g1 K
0 D7 [: [! j2 h$ Q7 F* a& B
0 C6 J2 K9 ]$ x( y+ j- I2 J' X) ~
0 m4 w- Q# g4 K z/ {
▲ 蓝色的四件套与墙面形成强烈的视觉冲击,黑色的衣柜既低调、又大气,整个主卧以黑、红、篮为主,三个简单的颜色却给人最不一样的感觉,编辑也建议大家,追求个性的业主可以通过撞色来增强设计感,但是一定要以单色为主,切勿花哨。
, C8 z# j" L9 R! c7 t) A$ z0 E, |5 a9 H& K! W) D- p K! R' g) y
8 C" O j- q( S8 ~
0 D, ?! G5 {' r# k- \
+ U$ K) b9 {- T% n E1 @* I3 c▲ 纵观整套房间,色彩虽然跳跃,但是都以纯色撞色为主,并不花哨。在家具的搭配上,也以简约为主,即使色彩多样,也不会觉得杂乱,这也是设计最为巧妙之处。在软装搭配上,使用一些个性的单品,如黄色的单人沙发、充满工业感的吊灯、大胆的装饰画,就给人眼前一亮的感觉。
# Z$ z. G* ?) T6 B- g: V9 D0 U5 o( ^6 X* l5 }) Y
将自己的个性融于设计当中,已成为越来越多的业主的需求与要求,而如何才能设计出既出挑、又不花,既个性,又不怪的设计,也是很多业主想要知道的。
) R# ]+ I8 c4 P% }2 V' e p如果你即将装修,不知道自己想要哪种风格、喜欢哪种风格? 可以扫描下方二维码与我联系 # e3 W& N) J6 p0 J7 x, h' a( D( U
5 b* G+ w9 z0 a1 @. j P3 ^4 u
' `7 H% u" _3 w+ U# Y$ j' q
扫一扫直接加小编为好友 ; L9 \3 z4 Q+ e! H# ^* z
------------------------------------------------------雷霆特别服务通道 0 c6 K3 N3 a- m$ @* {$ G5 }
【咨询】更多装修资讯可联系小编
% y9 p: M% \# w# C% L8 _" V9 |【验房】免费验房服务拨打热线:0513-89071800! g# `+ z/ A% X- {4 F G
7 j2 T4 P; O5 E0 K. E1 y K
【实景、效果图】关注雷霆微信公众号 南通0 |