- 阅读权限
- 50
- 精华
- 最后登录
- 1970-1-1
- 在线时间
- 小时
- 主题
- 好友
- 相册
- 分享
- 日志
- 记录
- UID
- 900712
- 帖子
- 0
该用户从未签到
|
( q, H& o4 v% T3 n. `+ K+ i/ h& P( l4 m' K1 E
爱蜂潮定制|【万濠星城20#】99.4㎡-现代简约风格 作品欣赏
* W6 [. V+ t5 i% k3 e6 k3 _' i1 i8 O! R! O2 n% i l
. x' q+ C- \! ~/ Q9 d. K $ ?$ d" }7 A1 @! g' b0 [1 [
: p2 S% }+ u+ L* @! f: w
本案设计师:孟佳 设计职称:V8原创设计师 项目名称:万濠星城 所在县区:崇川区 装修风格:现代简约 房屋户型:两室两厅一厨一卫 建筑面积:99.4平米 设计单位:V8原创设计机构 基础造价:4.5万 / @1 D* t0 P9 W& j
原始结构图 - p- N% i. |5 y6 F; u4 J
新建墙体图
6 H' U/ J8 L& J+ r, C( |平面布置图 + A7 s; Z+ }/ d1 G6 K; b4 b
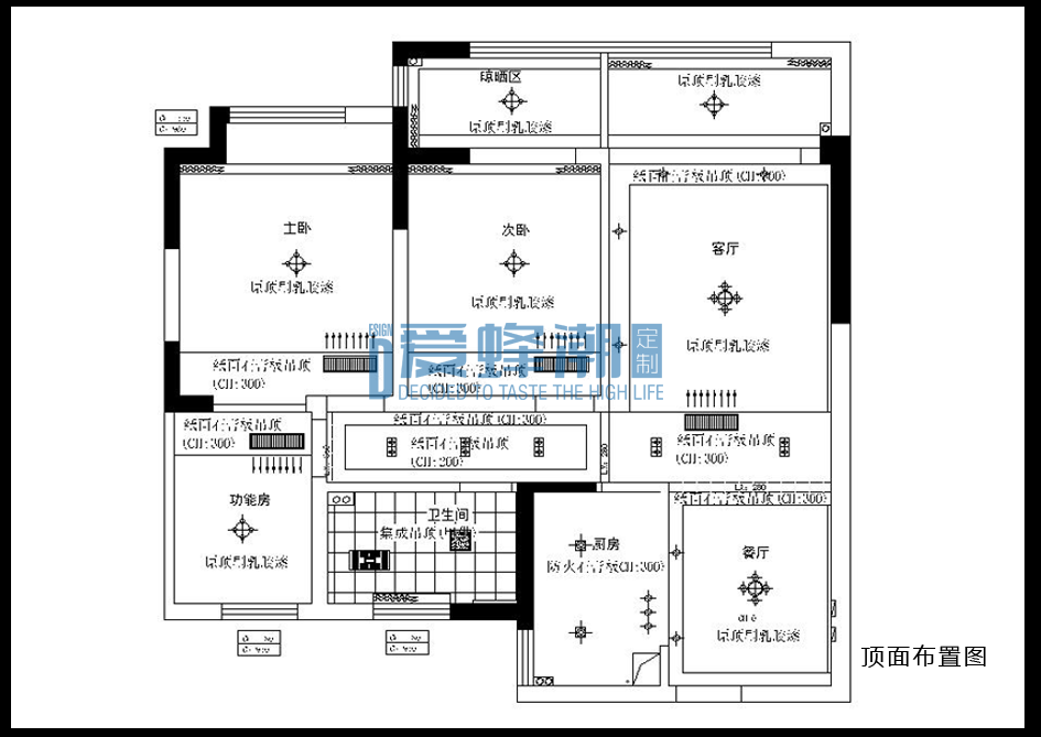
顶面布置图 , k$ @; d6 X r% P% r- u9 b* n8 i' `
' V8 ], p4 I+ _咨询QQ: 629068887 4 q8 r* t5 i7 J. ]% P! X
1 b8 h$ K \$ N: e/ t
南通0 |
|