濠滨论坛

点击扫描二维码

查看: 46303|回复: 2

【润居设计】华强城 欧式风中的古典美—首席设计师王梁作品

[复制链接]

该用户从未签到

发表于 2016-4-3 10:30 | 显示全部楼层 |阅读模式 来自:江苏
9 z7 J$ c0 J! U9 Z: D5 F# V% ^
. H" q! f( b% o) O风格科普
6 E8 s9 I. E' W欧式风格是一种来自于欧罗巴洲的风格,多引用于别墅、会所和酒店中,通过欧式风来体现高贵、奢华、大气的感觉。住宅公寓中也常用欧风,这种一般追求欧风的浪漫、优雅气质和生活的品质感。
$ ]6 E3 e- k. P* J' P0 ~5 |" S: n" t6 f# @' t* A
8 C4 ?. C0 j, E) ^6 O7 b
小区:华强城" L5 {0 _6 ], W; g# S  [
风格:欧式
" R# G1 u1 V" X- @# U% s面积:140平
" T; y% G; j+ G. y. s设计师:王梁
  t3 |8 E* K& F# C
8 v6 {/ w$ P% y  i随着港闸区快速的发展,华强城的地段价值也日益金贵,临近南通唯一一家大型游乐场——探险王国,南通首屈一指的商业街——万达广场,而宜家也正式落户南通,地点正是在万达附近。家住华强,享受着这个城市为之带来的便利。
6 Z, ?( E: }( u1 \# K- Z6 B' j5 i" P3 X. I% I/ I1 N; O

2 Y+ ], E; M5 F( u3 s- F8 @9 d7 {1 k) [. ~, @8 G
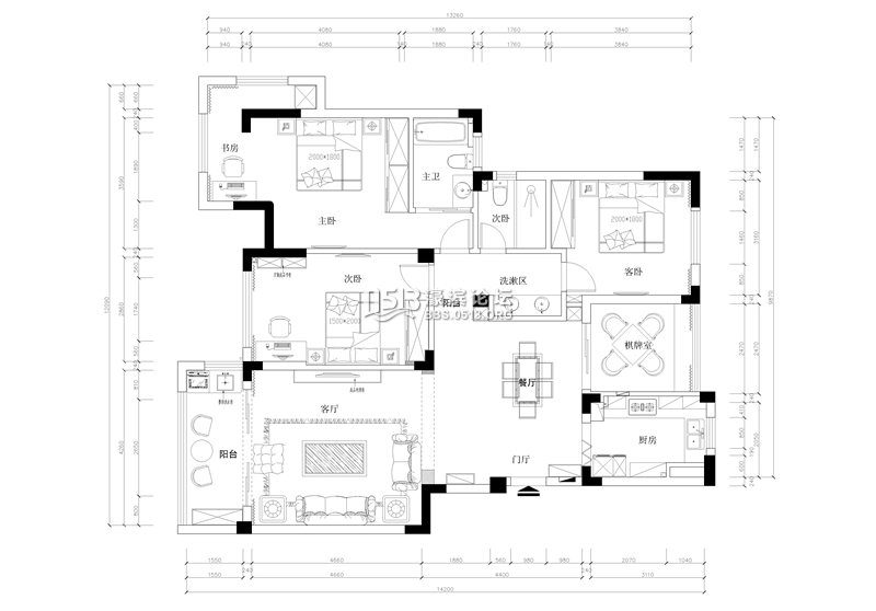
平面布置图

7 O% S3 r2 t) T
& g5 K7 O0 D$ N
华强城_副本.jpg
9 N& k0 K! {- h2 P
效果图
  H1 E6 P$ B' z2 [
. i5 ~* [' [* `8 f$ Z2 h
4532_副本.jpg
+ s; W/ V0 @7 v  k, \+ L
▲客厅
! q, E6 t& k7 U5 W$ x" _
1 f7 `) u3 x2 p3 O$ h  _) i
家居欧风中有白色调、小清新、古典。而本案中,欧风中散发着一种古典美。家居每一处造型都极其讲究,给人一种富丽堂皇、高贵典雅之感。/ p( c( F" ~8 U0 ?* ?5 A# d
" A. }4 o; g+ N; A: X
镶花刻金是欧风的主要特征,通体色调为高贵金,电视背景墙采用微晶石材质两边则使用雕花镜,沙发背景墙用大理石及硬包装饰,整体给人以奢华之感。) C3 ^' S6 T5 }& }% n
# p1 G% Z$ c' j+ V
太奢华的气息有时会太过沉重,欧式宫殿本是庄严肃静之地,风格自然要彰显尊贵身份。但本案中沙发组合有股典雅风,空间瞬间变得轻盈明快。
* T3 n& Q+ W/ x4 G7 V9 k

  p% y# W+ w6 w$ k# A! a. B4 k
76543_副本.jpg

) r" z# a8 W- z0 t
▲餐厅
% H4 m# j! q4 _4 X- u+ h& J2 ^5 E2 p

, r) r3 V' w* a2 C$ t餐厅设计师根据主人要求,将一间客卧改成了棋牌室,扩大了餐厅空间。  f/ Q# N2 x" O
, L) f4 k3 |8 w; a3 k/ j
餐厅背景墙在本案中功能较多,其一,用于区分与卧室的空间,其二,墙的两侧设计成装饰柜,用于摆放主人喜爱的酒与玩物。其三,墙的另一面则是洗漱区。( r: }2 S" M9 c, a! [
% s- P$ ?; V% m; l; N& t
餐桌风格为了配合沙发,也选择了古典风,古典家具多曲线优美、线条流动,与身俱来的气质高贵、典雅,主人用餐时享受着欧洲贵族的浪漫。

4 i% m8 q8 t8 \4 B
1 t" c( l$ }* ]! a% l5 n2 b% |/ N
  B8 U+ d9 o* M4 l5 w
更多详情可咨询小编
微信图片_20190614094312.jpg

, w- o+ W0 [% N" _8 F1 t: Y- K) [: y南通0
您需要登录后才可以回帖 登录 | 注册

本版积分规则

手机版|无图版|站务联系 | 商务合作 | 平台公约

信息产业部备案:苏ICP备05014191号-1 经营性ICP许可证:苏B2-20110445 苏公网安备 32060202000307号 © 2001-2019 0513.org All Right Reserved.

投诉争议 技术支持:第一互联 GMT+8, 2025-12-22 10:36 , Processed in 0.204006 second(s), 13 queries , MemCache On. 站点统计

快速回复 返回顶部 返回列表