濠滨论坛

点击扫描二维码

查看: 110|回复: 2

爱蜂潮定制|【中港翡翠城15#】70㎡-美式风格 刘一漫作品欣赏

[复制链接]

该用户从未签到

发表于 2016-3-25 14:57 | 显示全部楼层 |阅读模式 来自:江苏

爱蜂潮定制|【中港翡翠城15#】70㎡-美式风格  刘一漫作品欣赏

刘一漫.png

本案设计师:刘一漫
设计职称:V8原创设计师
项目名称:中港翡翠城
所在县区:开发区
装修风格:美式
房屋户型:三室两厅一厨一卫
建筑面积:70平米
设计单位:V8原创设计机构
施工单位:爱蜂潮装饰工程南通有限公司
基础造价:3.7万
工程总造价:15万


效果图欣赏
1.png

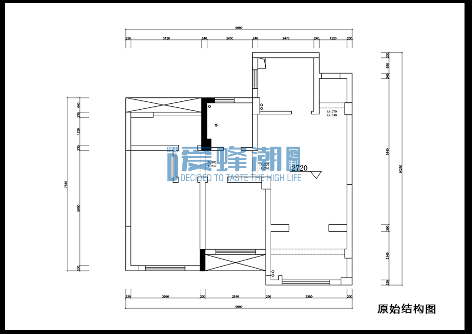
原始结构图
原始.png

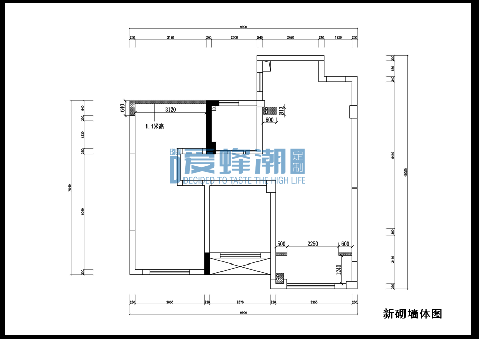
新砌墙体图
砌墙.png

平面布置图
平面.png

顶面布置图
顶面.png

扫一扫关注爱蜂潮公众微信号


咨询QQ:629068887
咨询热线:18762488368
公司地址:南通市城山路锦安花园附八栋

南通0

该用户从未签到

 楼主| 发表于 2016-3-25 15:08 | 显示全部楼层 来自:江苏
美女设计师哦
回复 支持 反对

使用道具 举报

您需要登录后才可以回帖 登录 | 注册

本版积分规则

手机版|无图版|站务联系 | 商务合作 | 平台公约

信息产业部备案:苏ICP备05014191号-1 经营性ICP许可证:苏B2-20110445 苏公网安备 32060202000307号 © 2001-2019 0513.org All Right Reserved.

投诉争议 技术支持:第一互联 GMT+8, 2025-12-16 23:54 , Processed in 0.209215 second(s), 18 queries , MemCache On. 站点统计

快速回复 返回顶部 返回列表