本帖最后由 南通华浔品味 于 2016-3-23 17:18 编辑
9 m/ |% z9 {/ t3 M. P( |$ G3 b, a) A: g( A9 i
! ^( ]; F% `4 I) l2 ?3 x" W6 ]. L ` A' q
/ l& u' `6 a( b( k4 S
' f$ r8 S% A; u! } ' E. A. g6 h: I) g
风格:现代
. `" x8 ~3 w& c, v: e$ B面积:128平米
& n1 B# s X$ ]
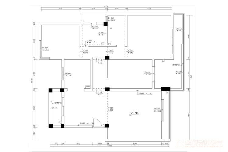
6 T. @3 d; w1 e) \【平面图】 5 {4 G- \5 j& V& O5 i5 ^' s9 ~% v
3 d) w* y# |1 E3 s
) W1 o/ p4 U5 U3 t( d8 E7 Z2 \# F5 B; `; I d2 P
* u/ p2 K, A" K3 X; D 重视功能和空间组织,注重发挥结构构成本身的形式美,造型简洁,反对多余装饰,崇尚合理的构成工艺。无论房间多大,一定要显得宽敞。不需要繁琐的装潢和过多家具,在装饰与布置中最大限度的体现空间与家具的整体协调。 4 \8 Y* ?3 T# v* V& [+ r. s
7 g# b' i5 m0 [5 v
& ^* X" m$ y8 [6 s5 E9 W- Y+ i/ i- l2 s【客厅参考图】 % ^% Y# s5 ~' P# \* q) ^& V1 G, u
4 Y ^3 @4 q( I& N c. V' |' m+ C/ V8 Q8 q# _1 I
【餐厅参考图】
% S+ J% y" U% Z4 x
# G2 k {9 R4 |
- M2 ^6 R9 A r$ b- N0 |
8 b9 |4 f4 U7 A4 q3 M/ P
7 e: w$ l$ K E( s" K4 Q. v
9 ?5 Y5 c% L: NQQ:2907601580 空间大量美美的效果图: 公司网址:http://nt.hxpwzs,coм/ # |: w' [. }% L4 \* M. r5 B
 3 h9 Y/ c! e" s$ P
南通0 |