濠滨论坛

点击扫描二维码

查看: 45683|回复: 51

海门都市五星小区

[复制链接]

该用户从未签到

发表于 2016-2-17 22:21 来自手机WAP | 显示全部楼层 |阅读模式 来自:江苏
去年9月拿了房一直没时间装修,春节放假在家,决定开工。南通0

该用户从未签到

 楼主| 发表于 2016-2-17 22:49 | 显示全部楼层 来自:江苏
自己画了个平面布置图& }2 W: d  M8 F/ X
都市五星户型图-Model.jpg
回复 支持 反对

使用道具 举报

该用户从未签到

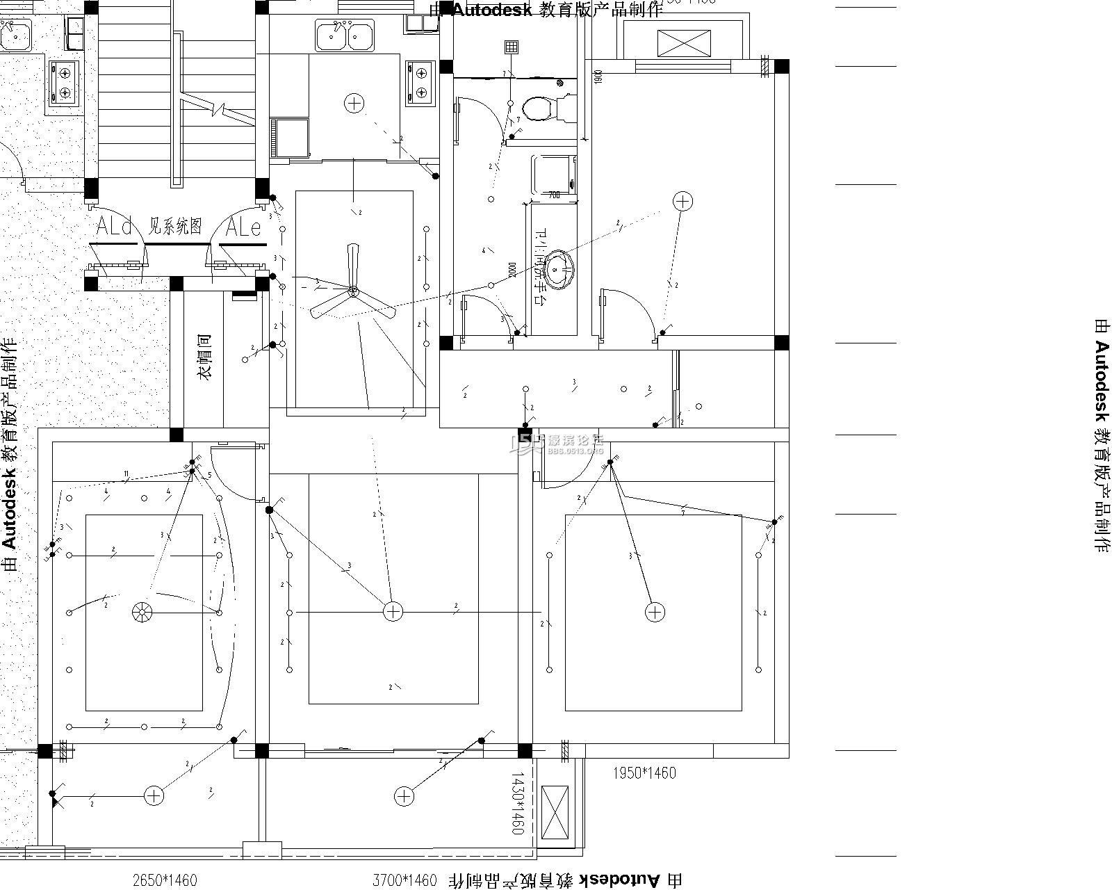
 楼主| 发表于 2016-2-17 22:52 | 显示全部楼层 来自:江苏
画的照明布线图
6 U/ E% N% K' |3 [0 w3 L4 k6 G
, N$ A3 r( d0 z: W! |
都市五星照明布线图.jpg
回复 支持 反对

使用道具 举报

该用户从未签到

 楼主| 发表于 2016-2-17 22:58 | 显示全部楼层 来自:江苏
准备装两套,这一套是给我妈住的,小户型,90平。# v8 i0 E1 j- t# X$ s
都市五星小户型图平面图.jpg
回复 支持 反对

使用道具 举报

该用户从未签到

 楼主| 发表于 2016-2-17 22:59 来自手机WAP | 显示全部楼层 来自:江苏
年初二上午去烧香,下午带着夫人去新房干活。
回复 支持 反对

使用道具 举报

该用户从未签到

 楼主| 发表于 2016-2-17 23:02 来自手机WAP | 显示全部楼层 来自:江苏
夫人只负责打扫,我负责放管子。
回复 支持 反对

使用道具 举报

该用户从未签到

 楼主| 发表于 2016-2-17 23:07 来自手机WAP | 显示全部楼层 来自:江苏
回复 支持 反对

使用道具 举报

该用户从未签到

 楼主| 发表于 2016-2-17 23:10 来自手机WAP | 显示全部楼层 来自:江苏
这个是布的水管,用的都是25的热水管,右边的是冷水,左边的是热水。借的工具不太好用,很费劲。
回复 支持 反对

使用道具 举报

该用户从未签到

 楼主| 发表于 2016-2-17 23:12 来自手机WAP | 显示全部楼层 来自:江苏
IMG_20160213_073724_1455721887249.jpg 这是到马桶上的水管。
回复 支持 反对

使用道具 举报

该用户从未签到

 楼主| 发表于 2016-2-17 23:16 来自手机WAP | 显示全部楼层 来自:江苏
IMG_20160213_074136_1455722071423.jpg 这是床头的开关,插座,和网络,
回复 支持 反对

使用道具 举报

该用户从未签到

 楼主| 发表于 2016-2-17 23:17 来自手机WAP | 显示全部楼层 来自:江苏
回复 支持 反对

使用道具 举报

该用户从未签到

 楼主| 发表于 2016-2-17 23:22 来自手机WAP | 显示全部楼层 来自:江苏
IMG_20160213_074041_1455722355676.jpg 把原来的电箱给换了,新的电箱加了个欠压保护,再也不用担心电压不对烧坏了电脑。
回复 支持 反对

使用道具 举报

该用户从未签到

 楼主| 发表于 2016-2-17 23:24 来自手机WAP | 显示全部楼层 来自:江苏
那个口罩夫人一直要让我戴,闷的不行,戴着。
回复 支持 反对

使用道具 举报

该用户从未签到

 楼主| 发表于 2016-2-17 23:27 来自手机WAP | 显示全部楼层 来自:江苏
IMG_20160216_162352_1455722729537.jpg 两套同时进行,这是小套的洗脸盆冷热水。
回复 支持 反对

使用道具 举报

该用户从未签到

 楼主| 发表于 2016-2-17 23:30 来自手机WAP | 显示全部楼层 来自:江苏
到初六晚上两套水电完成。
回复 支持 反对

使用道具 举报

该用户从未签到

 楼主| 发表于 2016-2-17 23:33 来自手机WAP | 显示全部楼层 来自:江苏
初七发现客厅漏了一根风管机的电源,又做了两小时
回复 支持 反对

使用道具 举报

该用户从未签到

 楼主| 发表于 2016-2-17 23:35 来自手机WAP | 显示全部楼层 来自:江苏
初八把砖买回来了, IMG_20160215_145441_1455723325760.jpg IMG_20160215_145452_1455723288090.jpg
回复 支持 反对

使用道具 举报

该用户从未签到

 楼主| 发表于 2016-2-17 23:37 来自手机WAP | 显示全部楼层 来自:江苏
初九进了一天的沙、水泥、砖。顺便把挡水条也买回来了。
回复 支持 反对

使用道具 举报

该用户从未签到

 楼主| 发表于 2016-2-17 23:39 来自手机WAP | 显示全部楼层 来自:江苏
下午谈妥了瓦工的费用,一万。
回复 支持 反对

使用道具 举报

该用户从未签到

 楼主| 发表于 2016-2-17 23:42 来自手机WAP | 显示全部楼层 来自:江苏
初十去了通州公司对账,白天没去看,吃过晚饭后散步去看了下,瓦工把要弄得的墙都垒砌完成。
回复 支持 反对

使用道具 举报

  • TA的每日心情
    开心
    2015-6-8 15:49
  • 签到天数: 31 天

    [LV.5]常住居民I

    发表于 2016-2-18 08:20 | 显示全部楼层 来自:江苏
    专业人士,都是自己画图的6 k8 S' G5 D' Y! {

    : ]6 h4 `! B$ O( g$ O5 a6 z0 d) A
    98cc62648fe06651c23ed6f9.jpg
    回复 支持 反对

    使用道具 举报

    该用户从未签到

     楼主| 发表于 2016-2-19 20:48 来自手机WAP | 显示全部楼层 来自:江苏
    现在要停工几天了,换窗户材料没来。
    回复 支持 反对

    使用道具 举报

    匿名
    发表于 2016-4-3 13:54 | 显示全部楼层 来自:江苏
    提示: 作者被禁止或删除 内容自动屏蔽
    回复 支持 反对

    使用道具 举报

    该用户从未签到

     楼主| 发表于 2016-8-13 12:20 来自手机WAP | 显示全部楼层 来自:山东
    179031767 发表于 2016-2-19 20:48! E$ `. x5 k! i0 n! R0 B
    现在要停工几天了,换窗户材料没来。
    ( m; C) Z3 m/ Y: [2 G3 R/ l) \
    好久没来看了,家里现在有点样子了。
    20160813121923
    回复 支持 反对

    使用道具 举报

    您需要登录后才可以回帖 登录 | 注册

    本版积分规则

    手机版|无图版|站务联系 | 商务合作 | 平台公约

    信息产业部备案:苏ICP备05014191号-1 经营性ICP许可证:苏B2-20110445 苏公网安备 32060202000307号 © 2001-2019 0513.org All Right Reserved.

    投诉争议 技术支持:第一互联 GMT+8, 2025-12-16 21:22 , Processed in 0.206233 second(s), 14 queries , MemCache On. 站点统计

    快速回复 返回顶部 返回列表