濠滨论坛

点击扫描二维码

查看: 47288|回复: 1

爱蜂潮定制|【南山国际2#】128㎡-现代简约风格 作品欣赏

[复制链接]

该用户从未签到

发表于 2016-1-7 17:25 | 显示全部楼层 |阅读模式 来自:江苏
! i* N$ ?* B/ I

1 }8 V( C# \8 h1 g7 k( r8 ^* w  U爱蜂潮定制|【南山国际2#】128㎡-现代简约风格  作品欣赏
* d1 ?$ P) g$ ]* I
孟佳.jpg
- r/ Q) e& s  Q5 @
本案设计师:孟佳
设计职称:V8原创设计师
项目名称:南山国际
所在县区:港闸区
装修风格:现代简约
房屋户型:三室两厅一厨两卫
建筑面积:128平米
设计单位:V8原创设计机构
施工单位:爱蜂潮装饰工程南通有限公司
2 x8 f$ J8 @4 |. h' z( R
参考效果图
1.png
2.png
9 |& X: U- f" l3 {
原始结构图
3.png
+ m& d0 j5 x0 N
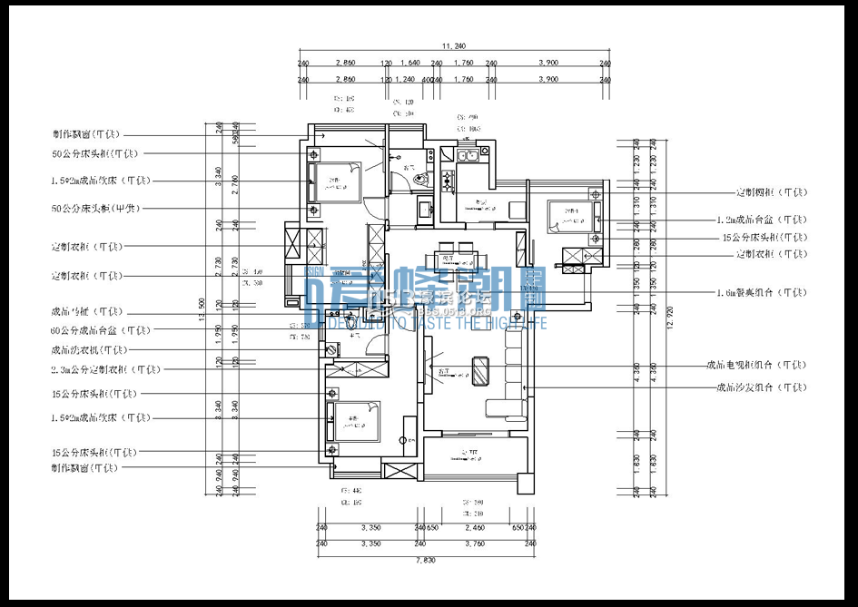
平面布置图
4.png
6 B! T- p! z$ O
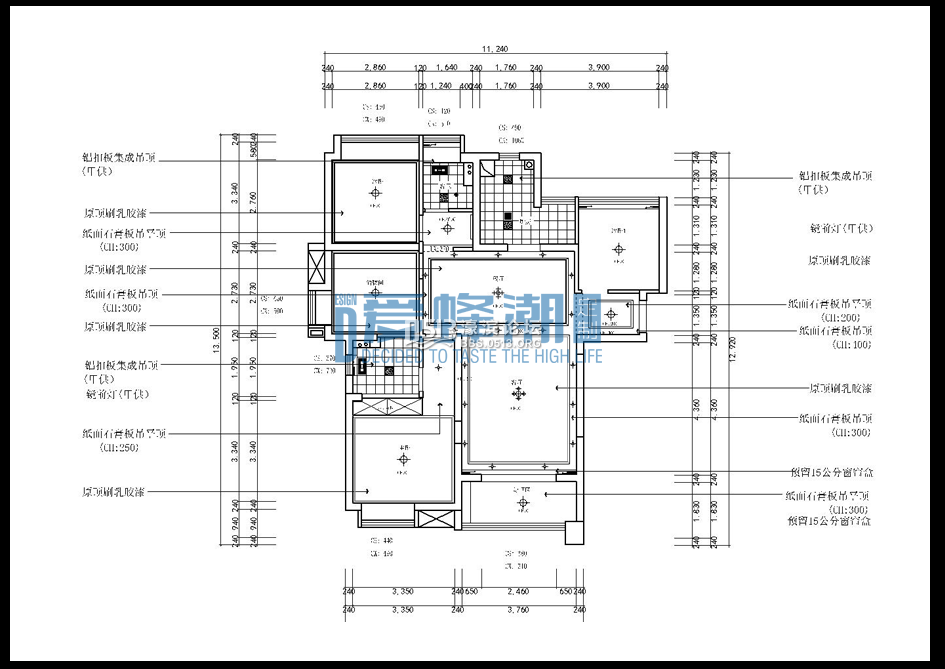
顶面布置图
5.png

- n+ j( q, ~) N9 Y- D0 V" K- [( Z5 Z2 Y, X' _# D; X
) c( R* c0 q4 \7 S% c
扫一扫关注爱蜂潮公众微信号
咨询QQ:629068887
咨询热线:18762488368
公司地址:南通市城山路锦安花园附八栋
公司网址:www.afczs,coм,cп

' f+ k7 B8 F1 `; U/ x南通0
  • TA的每日心情
    开心
    2015-6-8 15:49
  • 签到天数: 31 天

    [LV.5]常住居民I

    发表于 2016-1-7 21:28 | 显示全部楼层 来自:江苏
    欣赏~! t) W: J' J8 ~) a$ ^
    41677129_副本.jpg ) T# c) X5 N/ u1 H( {  G
    回复 支持 反对

    使用道具 举报

    您需要登录后才可以回帖 登录 | 注册

    本版积分规则

    手机版|无图版|站务联系 | 商务合作 | 平台公约

    信息产业部备案:苏ICP备05014191号-1 经营性ICP许可证:苏B2-20110445 苏公网安备 32060202000307号 © 2001-2019 0513.org All Right Reserved.

    投诉争议 技术支持:第一互联 GMT+8, 2025-12-22 02:33 , Processed in 0.187613 second(s), 15 queries , MemCache On. 站点统计

    快速回复 返回顶部 返回列表