濠滨论坛

点击扫描二维码

查看: 28624|回复: 0

【开工大吉】恭喜学士府张女士开工大吉!

[复制链接]

该用户从未签到

发表于 2015-11-15 09:25 | 显示全部楼层 |阅读模式 来自:江苏
. v# y$ R* u0 n& x# a% m! s
& T1 ]# r' d$ e5 P- k% a
    多日连绵的阴雨天今日终于迎来了太阳君,但送走了下雨君却来了雾霾君,轻微的雾霾让人呼吸着不乏感到些不舒服,气温也越发低了,冬天的脚步更近了,但今日宜动土、宜入宅,如此喜庆的日子里润居的家人们也只得迎霾而战,与冷对抗!8 c. }8 v5 j# r6 j* D* d

5 c7 }7 D6 q& F1 D
6 v' e3 j0 I0 i5 c
0 d& n9 x% D& O( [5 b& y4 s
小区地址:学士府
装修风格:现代风
户型结构:三室两厅两卫一厨
户型面积:135
工程类型:半包
装修公司:润居装饰
本案设计师:杨苗
开工时间:2015.11.14

$ S2 h- M/ g$ F8 f/ P- ~" i& C. J7 s0 m# Q
- q- a" T4 Q- s

6 X5 E! A  ]0 s( k; j4 ^, O

  r/ R6 Z6 q2 ?+ D2 }$ V5 s& f0 Q- M3 G% T: i0 T
- B8 Z6 o5 G( q

3 {7 _: u& p- L- K
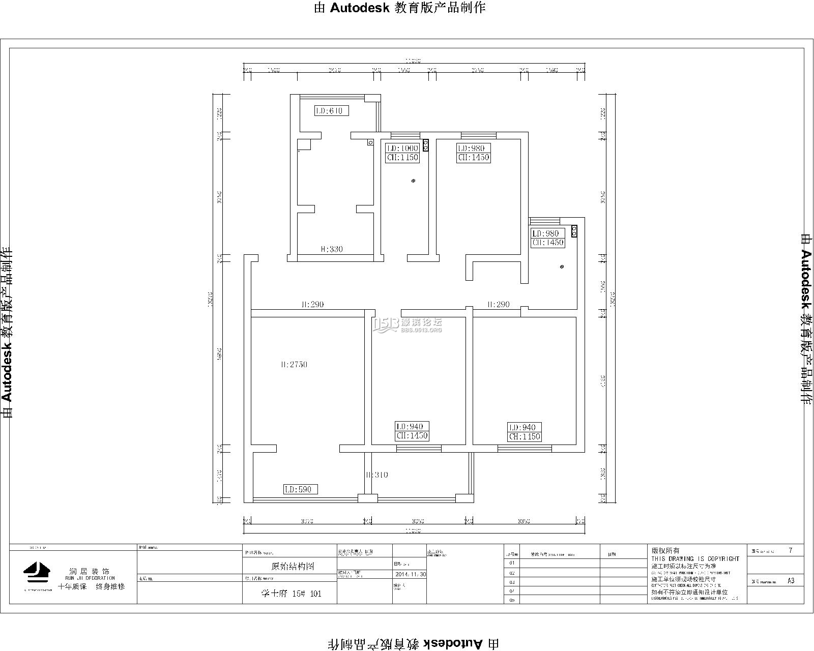
原始结构图

, v7 |6 i2 E2 z6 c: i
* v) D3 K+ ~! J* V" V; ]- V( F
) k2 q# @! \& z! }( J" a. s- B3 g

4 t, \3 F0 F" ^# G% v& C) W0 {0 _

" R+ P2 j8 W) y/ _2 p  \
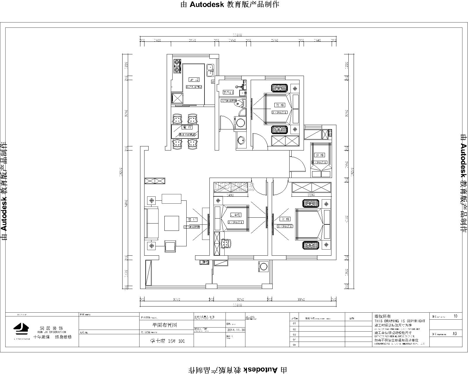
平面布置图

) s- w% Z! i  A$ j0 m' Z
% T  t, r/ ]# \- n2 G7 t( O- T+ J% Y; l: Q/ i  V: h- E$ ?% w% y: C
设计说明

0 K, b6 W/ \" H. @$ e; G+ k
        现代风格追求时尚与潮流,非常注重居室空间的布局与使用功能的完美结合。不需要繁琐的装潢和过多家具,在装饰与布置中最大限度的体现空间与家具的整体协调,造型方面多采用几何结构。

- c+ b' v+ `' W+ t
3 k2 o9 K# U: g
: W% F5 D# d9 O4 \, I3 G# j. L
4 ]) U' Y' K* W5 Z3 @
/ ?! `- j( P9 ~4 T% s& o6 ?
- r; `" b  Q/ b' v

7 D$ U1 G! G; y/ T: N) o9 b
( c+ X' I6 J# }) ^& O; i2 g  O5 `8 S8 V6 s& Q% ]2 \5 U1 u
" u1 ^) ~7 Q, e2 j: d# ~( P# m) c" o
! {6 L' t( J7 Z$ z# P; X
恭喜学士府张女士开工大吉
/ G5 L7 J% Z: A* w+ G4 N+ @

5 E( m1 n9 y5 j! V: X5 `
4 s8 R$ L* b3 A& ~

6 E3 F  E+ W7 B  M0 a7 K6 j' x; u) D
7 e9 K) Z  N2 @* B1 E% m
; e8 J* [4 S9 u- T  [0 N
  T. t0 A9 Q2 }6 u

, E* l- i/ E! A* G

; n7 K( f6 h' ~3 E- \8 N+ U, t' y5 Q% i- ]3 n4 d, R* P8 ?
0 X& x2 d0 Z6 k6 m' w$ X: C

# G) K0 O: D6 M2 l
9 H& [0 T* I: U
开工之前设计师与施工经理、项目经理交接相关事宜!
: S5 `0 q- g$ r6 H
- Y: Y% d$ _, n" }, w

# R7 }0 [, s3 W9 r
' a. U  ]7 ~5 F. E3 d3 y6 ]: c/ j# F8 ?6 N: L

) B( [( W, ]1 Y5 V* |; _# W1 t- ^' e
) Q" ^4 J- I% B, K/ [1 T

) u" d# k1 K1 |  L  v, I8 L. k- V& w5 }* n6 a
提前摆好鞭炮,发发发!

( |6 ^% \1 l5 }0 Z; n/ h8 y. N6 l% w
; @8 y) A% ], ]7 z/ ]$ e

. n! D: n3 l' {8 l5 |1 I2 w

; j: V% C* h4 S( W9 _+ S; J* L) f6 P( A2 L$ f; i  p. A
  `2 Y6 v3 J  F* U' N5 v
' r. `8 I* y3 [" y  D5 `
9:58正式开工,鞭炮点燃的同时业主敲八下墙,迎来了开工!
9 g: Y) z. j$ ]5 C- }
$ K" f# x2 N: S7 i: k

9 W3 U9 z8 M% C+ x/ H

4 ?' u! _& Y" ^& @. a8 R' Z, j
扫一扫,加关注,有小礼品送哦~

- q! F# N0 |, W, t2 t
1 `5 o* D: X* \% d# t
南通0
您需要登录后才可以回帖 登录 | 注册

本版积分规则

手机版|无图版|站务联系 | 商务合作 | 平台公约

信息产业部备案:苏ICP备05014191号-1 经营性ICP许可证:苏B2-20110445 苏公网安备 32060202000307号 © 2001-2019 0513.org All Right Reserved.

投诉争议 技术支持:第一互联 GMT+8, 2025-12-21 17:42 , Processed in 0.161723 second(s), 12 queries , MemCache On. 站点统计

快速回复 返回顶部 返回列表