# P1 w6 W8 _4 w; i& g4 j$ k
% m, m' a1 p/ a* A, U爱蜂潮定制|【锦峰大厦4#】130㎡-现代简约风格 作品欣赏. B4 w* ~8 K/ {; a8 g
" t. f% P) R# G, A7 t
本案设计师:张秋桔 设计职称:V8原创设计师 项目名称:锦峰大厦 所在县区:崇川区 装修风格:现代简约 房屋户型:四室两厅一厨两卫 建筑面积:130平米 设计单位:V8原创设计机构 基础造价:8.1万 工程总造价:25万 3 ^- ~" t/ `6 r& }" M
效果图欣赏 Y# S, j z7 K6 i
% ]& \" l1 |2 F& Z! f* Z原始结构图
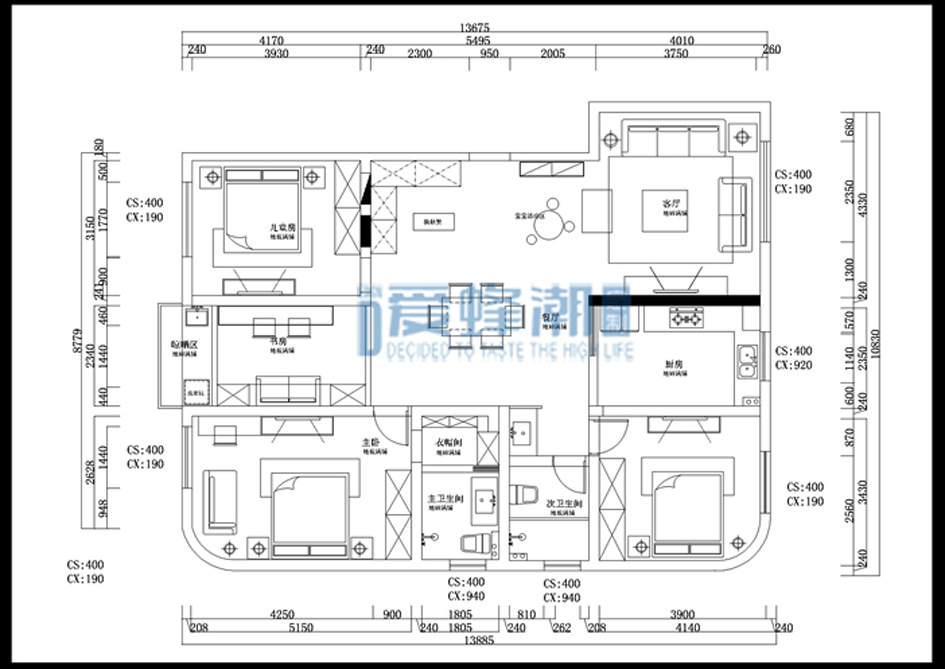
3 B1 H. h4 q1 Z8 S$ i8 o) Q1 T平面布置图
, I# ]; N V8 c7 n4 o. f顶面布置图 ) d: f9 B- {; ~) {0 w+ k
沙发背景图 o. v7 U" \. C6 m" p' ?/ x
书柜背景图 3 ]& L. }0 G9 n5 U# X8 c& ~* |+ [' X2 h
设计说明: 现代简约风格是以简约为主的装修风格。简约不等于简单,它是经过深思熟虑后经过创新得出设计和思路的延展,不是简单“堆砌”和平淡的“摆放”。现代简约的装修风格迎合了年轻人的喜爱,都市忙碌生活,早已经让我们烦腻了花天酒地,灯红酒绿,我们更喜欢的一个安静,祥和,看上去明朗宽敞舒适的家,来消除工作的疲惫,忘却都市的喧闹。住户是幸福的三口之家,男主人喜欢看书,有时会在家里办公,因此特意安排了一个书房。室内空间开敞、内外通透,在空间平面设计中追求不受承重墙限制的自由。室内墙面、地面、顶棚以及家具陈设乃至灯具器皿等均以简洁的造型、纯洁的质地、精细的工艺为其特征。室内常选用简洁的工业产品,家具和日用品多采用直线。中心色为白色,配以紫色家居软装,再加上一些不同造型的黑色金属灯的点缀,简约却不失雅致。 % y3 m+ N- `: q: }. F
6 x) K) i- U2 m+ |咨询QQ: 629068887 南通0 |