: u) b, ^$ J* m" A9 e
4 e) v; Z9 A, y0 F. A8 v. {爱蜂潮定制|【锦峰大厦】130㎡-现代简约风格 作品欣赏
3 v% l7 j# W7 G* Z) ]: A
" W N" w5 S, r3 o4 A' d# T
本案设计师:张秋桔 设计职称:V8原创设计师 项目名称:锦峰大厦 所在县区:崇川区 装修风格:现代简约 房屋户型:四室两厅一厨两卫 建筑面积:130平米 设计单位:V8原创设计机构 基础造价:8.1万 工程总造价:25万 效果图欣赏
4 r1 C7 I% T( i$ O' H# N4 K! R" z6 G
" Y6 t5 E( l9 s) y( X6 r原始结构图 5 f1 w; J2 ?: U, v
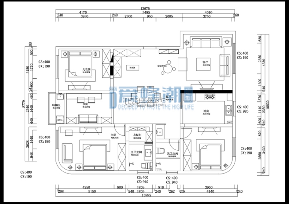
平面布置图
4 I! E+ Z0 Y4 a4 f* p顶面布置图
X, f5 G, W# a* A m% q# z沙发背景图 7 {/ N* B3 g. H* M% q
书柜背景图
/ g& \ e- C- A4 X4 _! j& Q. m. r设计说明: 现代简约风格是以简约为主的装修风格。简约不等于简单,它是经过深思熟虑后经过创新得出设计和思路的延展,不是简单“堆砌”和平淡的“摆放”。现代简约的装修风格迎合了年轻人的喜爱,都市忙碌生活,早已经让我们烦腻了花天酒地,灯红酒绿,我们更喜欢的一个安静,祥和,看上去明朗宽敞舒适的家,来消除工作的疲惫,忘却都市的喧闹。住户是幸福的三口之家,男主人喜欢看书,有时会在家里办公,因此特意安排了一个书房。室内空间开敞、内外通透,在空间平面设计中追求不受承重墙限制的自由。室内墙面、地面、顶棚以及家具陈设乃至灯具器皿等均以简洁的造型、纯洁的质地、精细的工艺为其特征。室内常选用简洁的工业产品,家具和日用品多采用直线。中心色为白色,配以紫色家居软装,再加上一些不同造型的黑色金属灯的点缀,简约却不失雅致。
8 \2 Q# ]5 p' {' R+ L h) P9 ^咨询QQ: 629068887 公司网址:www.afczs,coм,cп % Y0 p; @' S" _) J$ u
" `# K/ L) O5 g2 I南通0 |