濠滨论坛

点击扫描二维码

查看: 1632|回复: 1

【开工大吉】恭喜南山国际石头先生开工大吉『128㎡-现代简约』

[复制链接]

该用户从未签到

发表于 2015-10-6 08:50 | 显示全部楼层 |阅读模式 来自:江苏
( }& y+ s: Q5 r( h9 [3 A/ A4 r+ L- H
8 ?; Y% r  g* b  ~6 T7 p
小区地址:南山国际
装修风格:现代简约
户型结构:四室两厅两卫一厨
户型面积:128㎡
工程类型:半包
装修公司:润居装饰
本案设计师:杨苗
开工时间:2015.10.4
& H4 ~* L, j- f: E/ K: {) n6 B; M
, O2 b9 Q9 i4 R7 k6 ^
南山国际6#2208-Model.jpg
# w4 ^1 \" w9 \$ x

) N2 y+ i& a: X

* d' M/ O) I( l% h% j1 [
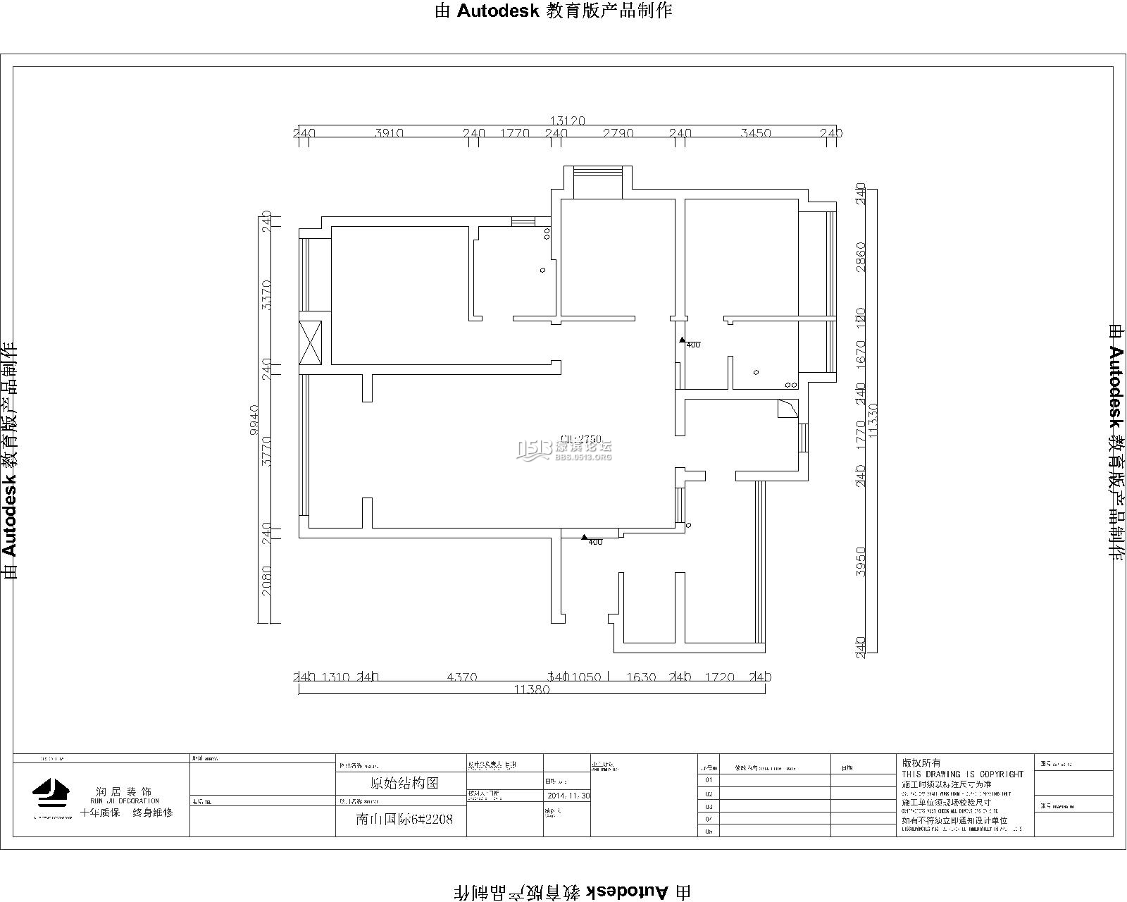
原始结构图
$ g6 G1 Z8 w3 |6 R7 S* Q4 J* p

* o- m- Y4 A6 o8 L
1 南山国际6#2208-Model.jpg 6 a6 V7 T$ Y2 Q

# o& }# T. O) @( n" a8 n" P4 p% `) J( U. e- t  ?8 p
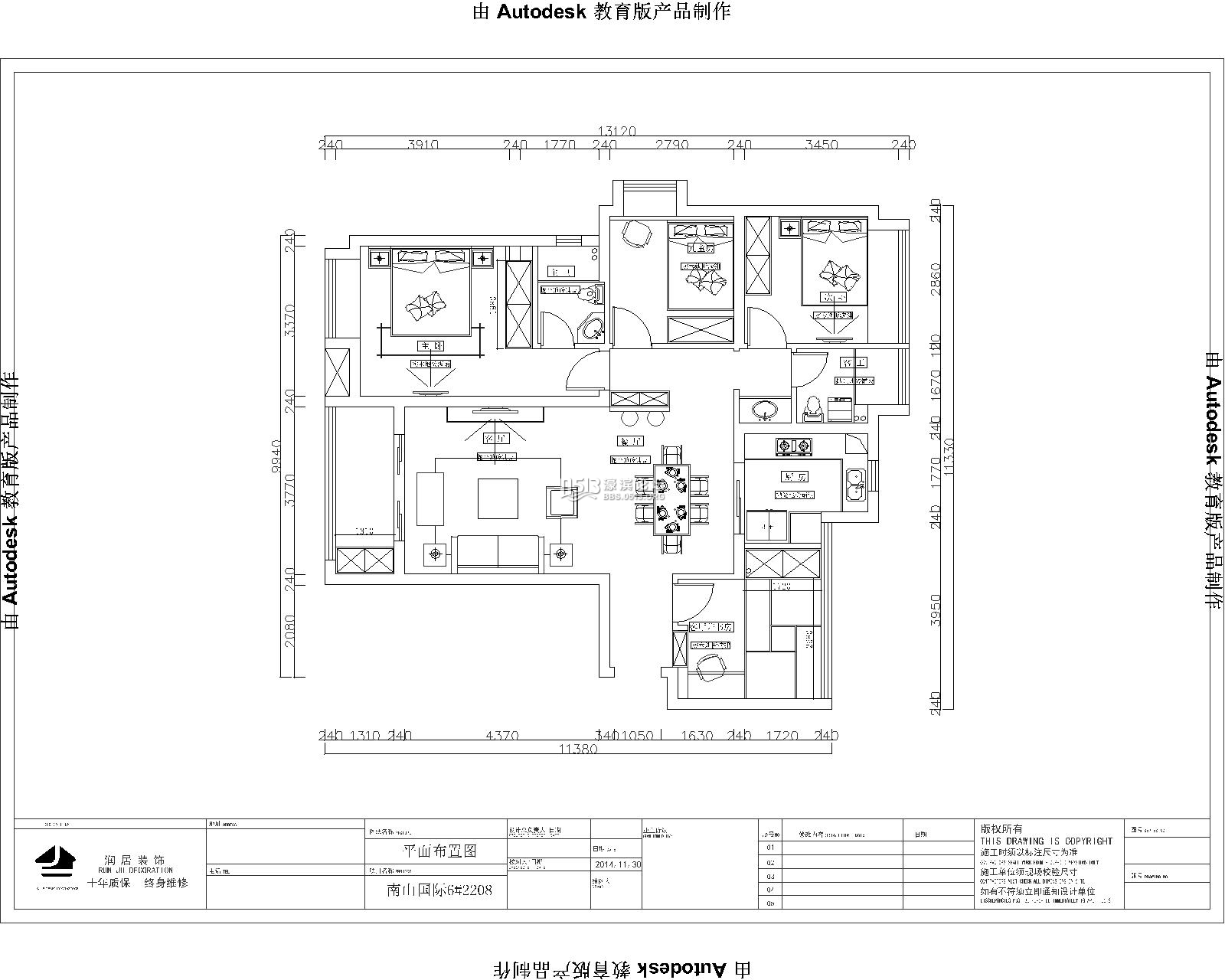
平面布置图
, J8 H* O6 v1 }2 k+ S6 S2 K
) }. k/ b$ y, d
" L0 |1 Q  n2 b) V- U, @: c

; }! G/ ~, v/ e( `( D6 {# q# O4 L1 B" J  K
# k7 y: T- p2 t+ h) I  ^
设计说明:
         简约风格的特色是将设计的元素、色彩、照明、原材料简化到最少的程度,但对色彩、材料的质感要求很高。

& v6 V: _6 I! r/ X$ q6 Y  a  }+ r& o+ C1 B& j
% B6 E  |# V- w

* Q5 C. x  ]( p9 [- @& j
6 r9 d* S7 h, }. n" x5 `; G
# D. J9 b/ \0 Y: y; w' t
% Z; ]) V. B) ]
3 Q6 x9 x/ Y$ j% T1 q2 B; n7 h4 c+ X

. N' J; }+ L! ]4 l4 A0 Q- o9 y6 O/ d9 K; f( Z4 C0 P7 z
       又一家南山国际开工,细数这段日子已有四家南山开工,当然还有更多的签了单没有开工,并且还有在洽谈中的。南山的成功自然离不开润居家人前期所付出的努力,日日坚守南山,不畏辛苦,保安的阻拦,业主不屑的目光,更是风雨无阻,市场部及设计部伟岸的形象树立了润居这个品牌,小编相信润居在通城业主心中留下的印象会越来越深,也将会有更多的人选择相信润居!!!

2 A% c4 }; L0 u& l6 G9 }1 \" a1 W- Y

* V6 X6 v" x1 X8 b& P
  w8 D  J1 E# Q. w
/ z8 y6 x- S0 B1 q% }
6 H( s) F; L  {. i9 s9 C* X7 G2 A4 N- E1 M6 p) V' o/ a

3 z! Q8 Q+ v8 J% ~, H+ I
恭喜南山国际石头先生开工大吉

3 x) E  p6 H5 c' b( M3 T
0 H/ @  q, |: r9 N* p# {( @) z1 S3 k/ S' G
178441086155431763.jpg

( R. y$ D" z! S; T( P6 c
0 W; b& i/ b* s* t! N, r: m$ Z/ t' w7 i2 d  k) @

: X- ?$ Z" n) G0 d6 \
  A2 k! f0 w" T% t  I! K! ^

2 d) X1 n- ~6 y+ T9 T+ ]
, @$ r# r$ X5 C& F1 w5 ]5 x/ t2 `) ^" ?4 Q
鲜艳的大红色象征着开工大吉,从电梯到门再到屋内保护一步到位,施工铭牌记录工地详细信息!

8 I3 g9 `, N7 y% \6 u0 r
! K% d$ Z8 P& x. }2 l  Y! j7 V- e' ~1 J3 x( h! k
+ S5 P7 ^6 B8 b* W. l

& F* G# K1 U: `$ A
9:58准时开工!
& G0 h4 l) v" f5 ?+ V8 J

: b8 p# ^* U# d
扫一扫,加关注,有小礼品送哦~

8 K) }* p; G1 n

" D; V. G1 ^/ R9 j" ^& K  m

* `  V: Z5 e. D  R  w9 C南通0
您需要登录后才可以回帖 登录 | 注册

本版积分规则

手机版|无图版|站务联系 | 商务合作 | 平台公约

信息产业部备案:苏ICP备05014191号-1 经营性ICP许可证:苏B2-20110445 苏公网安备 32060202000307号 © 2001-2019 0513.org All Right Reserved.

投诉争议 技术支持:第一互联 GMT+8, 2025-12-21 13:59 , Processed in 0.234336 second(s), 15 queries , MemCache On. 站点统计

快速回复 返回顶部 返回列表