/ |' e0 k& G+ ]( Q% H. c+ a4 V1 {5 {0 @$ B
10月1日上午倾盆大雨,但这并没有影响我们开工的步伐,业主选择的日子,并不能因为下雨就失信于人,擅自主张不开工,一天连开三家,上午一家,下午两家,幸得上天眷顾,中午时分,雨戛然而止,下午更是晴空万里! " x2 o% {. B3 p# k" B% H
; D1 h8 `: s. h # X0 |2 P3 Y8 ~1 }" H
开工大吉
6 e' I9 D6 X# ^* e7 x' l6 Z' }小区地址:罗福宫别墅 装修风格:欧式 户型结构:三层联排别墅 工程类型:半包 装修公司:润居装饰 本案设计师:李呈龙 开工时间:2015.10.1 6 G- l7 I* U k1 A
- ~* ]5 p, Y% u8 Q# ~- f+ d. m
3 H1 Q$ E2 Y/ `$ R, r3 D / m- f4 _2 s" X, i# }: A+ |# J
1 h" `; y; c6 T# k( [2 k
$ I* H4 m4 L7 C. g2 X% f& D7 g7 X& P
3 W8 P0 Y" }: R( O, Y; L
- I/ Y/ S' p; x! @& b6 L. x( s5 x+ }3 c0 X+ }' q( t
9 ]1 F: a6 V/ n+ g# T) Q
7 Z; v5 W M6 B, `* l( s* {; ]' M8 q' ~5 N) |7 `0 u$ g
) r, W$ W7 p% w7 Z6 l8 s3 E) u* f原始结构图 4 X# R, i7 i, [2 X$ N6 P
- ~: _6 b+ ?0 g4 j0 c
+ n) _. u. n+ |7 _& o# B% W9 M" T
% X$ a* c; |. F) L
, t. \2 {2 ?7 |- W0 U5 `* Y& H3 h* d& O* S1 i0 v7 i# U
# S7 h8 k7 j0 c$ U! S4 n' e9 k6 e% p5 r
3 f2 N( [: h6 Z& v2 u+ h+ w- ^
. o1 }8 ]5 I4 k" f4 g9 w) G# G
0 b* D9 d0 D' B; l' @4 W! _% d1 B5 ]$ a
4 f% C( y4 N! Q w4 M+ k0 b
, S" M* h' p' f' E' U* w7 N4 X) I7 T7 E$ ~8 L x
7 c! c" H4 W* i8 N效果图 4 q _7 e/ O3 U9 ~% b
设计说明: 古典欧式风格别墅装修最大的特点是在造型上极其讲究,给人的感觉端庄典雅、高贵华丽,具有浓厚的文化气息。在家具选配上,一般采用宽大精美的家具,配以精致的雕刻,整体营造出一种华丽、高贵、温馨的感觉。 ) d( z2 h0 ?$ C% n
4 ~0 l+ f5 {9 \4 V 5 a- e; Y# S1 m+ e4 @" t1 P2 H: D
0 N8 t: r7 `! _) d
/ y- _& \4 |; f. k7 o
9 C( n) m! P8 T' o) i6 j& @& r恭喜罗福宫别墅瞿先生开工大吉
! R0 f+ ?* ~0 Z, j2 i1 S8 k' c+ C7 t6 i# n' d) _
: R y# X; W( s: c4 k, @
% T5 m6 Q5 |2 C! ?$ |: D) @' {3 }
0 z2 @- y1 p9 }8 C. L8 j, W+ h# J( \5 R3 c
7 x2 s7 e# u* w
% h" w' m2 b0 C( a0 ?! y/ K! M
" g" M7 U$ A8 p6 c8 ^鲜艳的大红色象征着开工大吉,从电梯到门再到屋内保护一步到位,施工铭牌记录工地详细信息!
0 Y" `7 O! G7 v8 s1 h
+ J' q* C; F& n0 L# B
5 k( C+ @; x! Q S( K' \6 g2 `. E! P0 R& Z6 k* a9 E5 ?
8 j. q# E& B. Y5 L+ _7 E下午1:58准时开工!
4 p( f$ W, Y* s9 N. B( N$ G3 a2 P9 S Z0 s
- j+ R6 d% n& I* V2 {
g2 I5 D6 P: T- n. [* t6 O9 X$ s9 j) V3 I. a' l' n% F) T3 k
开工大吉
W) P! U0 H8 _3 f9 O装修风格:现代简约 户型结构:两室两厅一卫一厨 户型面积:85㎡ 工程类型:半包 装修公司:润居装饰 本案设计师:杨苗 开工时间:2015.10.1
4 P" p7 W T% D- s0 n! d5 T3 ]
4 z! Q) F' u6 G: x ! G* f8 C/ i+ p( ?8 I* _/ a3 h8 D2 c
原始结构图
0 e$ T& k2 f% P$ j3 P9 p
8 u" a8 O4 _2 \6 A: L0 v' ~1 t+ {
" O8 N$ v$ S1 n1 s* n+ V平面布置图
4 _ K$ N) B) _/ ^* _9 Y6 v+ ~: w设计说明: 简约风格的特色是将设计的元素、色彩、照明、原材料简化到最少的程度,但对色彩、材料的质感要求很高。
% ?7 @" x; v2 {6 e: J; u
- I) I/ f( T7 j, O# b
* P0 C) `2 Y9 \5 Q. U& V& k2 q* ?. \
' ?* d( A6 j6 N4 C& g# M$ P8 G- D/ Y' W# _2 l- |" `
8 V$ e" I' G& E3 Y恭喜南山国际郭女士开工大吉 - s) l: ~0 }3 U6 i
\" ]' L6 ?) V. A/ U" t6 |: v
8 s/ T' x- g" P+ [
( v4 i" v7 W1 _3 L9 T7 }' N) q# d2 S8 ^1 d- @
/ \4 @) i9 u/ p
3 d# M4 C8 Z! |4 D# Y鲜艳的大红色象征着开工大吉,从电梯到门再到屋内保护一步到位,施工铭牌记录工地详细信息!
9 A! y5 ^/ Y! V6 i! F" v7 K0 g) K- p; h; |0 A
: F _: z7 u% R% `3 R+ ` a G* H4 I1 m) F! C& U5 g: t9 d' v
下午2:58准时开工
9 l. |/ g% O+ H) R) C" r3 u
4 N+ {7 w( Z# ~# v' P9 B! O: e- j3 h% v7 ^' P
开工大吉 / K% ^: d$ G( v% [; x; o& |' d3 Z
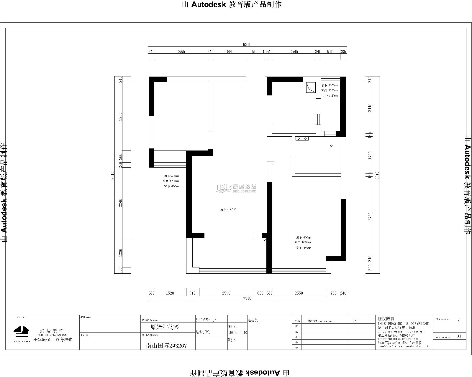
小区地址:南山国际 装修风格:现代简约 户型结构:三室两厅一卫一厨 户型面积:106㎡ 工程类型:半包 装修公司:润居装饰 本案设计师:李呈龙 开工时间:2015.10.1
& Q. i( z" r" h- P
5 v/ n8 A1 z/ k) q
' x, m9 e9 k+ f; e
原始结构图
6 ^9 C0 Z$ I* R
- o4 m3 B5 B! E7 P
5 a7 ?( ?, ~8 d/ r U1 B: j设计说明: 简约风格的特色是将设计的元素、色彩、照明、原材料简化到最少的程度,但对色彩、材料的质感要求很高。
& F$ ~% Z) z; D% [0 r7 i/ `
8 _4 G/ D! I+ _" U L& G8 c
& m- @/ E" V; H5 u, a8 s& Z
8 B) |1 R& ^- w9 x- Z6 H( K
% L5 B/ O" x* _" H
9 S, n( r( ]9 ~0 W1 }恭喜南山国际陆先生开工大吉
" q4 H4 ~2 a1 P
7 d$ g9 [* ^2 j }
' ^7 d/ |' K$ V- u- l4 G( ?8 c+ J1 b1 S
3 D' o) \! M/ g3 I, g3 Z) P
( I/ B' M+ n8 S6 |' O; W2 `) c烧香、放苹果,求开工顺顺利利、平平安安! 0 Q: G! f2 {6 {6 u+ L& }1 Y8 X+ [
8 X3 D2 C2 t/ \7 W4 Z
. L6 ^# v6 k- Y! K# j# ^& I
8 c! m' x: A: w7 O
鲜艳的大红色象征着开工大吉,从电梯到门再到屋内保护一步到位,施工铭牌记录工地详细信息!
" H7 q! h- e' h
7 V( t: M4 E9 R2 ]" ~! _, m1 ?7 R8 I7 p2 k9 p6 g
9 ^! f4 X7 o) |+ m5 Y9 ]' K8:18准时开工! $ ~, T. k6 O2 x, U d# J' |1 }% l; X
$ R! n+ B6 q8 \# A2 a7 K+ y
7 @; r7 i0 T% g2 s3 b3 c: I扫一扫,加关注,有小礼品送哦~
9 {. r$ w" a4 A% i
/ ?" o) w2 E7 S: Z) F D7 X: U1 b' g5 _' ?% @
. B$ q! S. M6 l: n6 F
! F2 M4 D% f4 @ `+ T% C
南通0 |