) g+ s1 G/ j4 b) ^7 a2 c! z4 T
4 E! `' ^; V' \9 h时光匆匆而逝,每当回想刚发生的故事,总会感慨很多,收获很多。12年以来,润居获得了越来越多的肯定,签单变得容易了很多,这一周,润居一直忙碌着,签单,开工,跑工地....一切工作都有条不紊的进行着。我们每个人都用真心,真情对待顾客,打动着顾客。 这就是润居!!
) r& {0 A2 r( ?* p: D7 w) A* }- O/ B( _
! `1 t3 C( W$ v; { s6 m
2 c" n4 T. |! l% q1 m _$ ~' ?
& M+ |) f- i- }# v
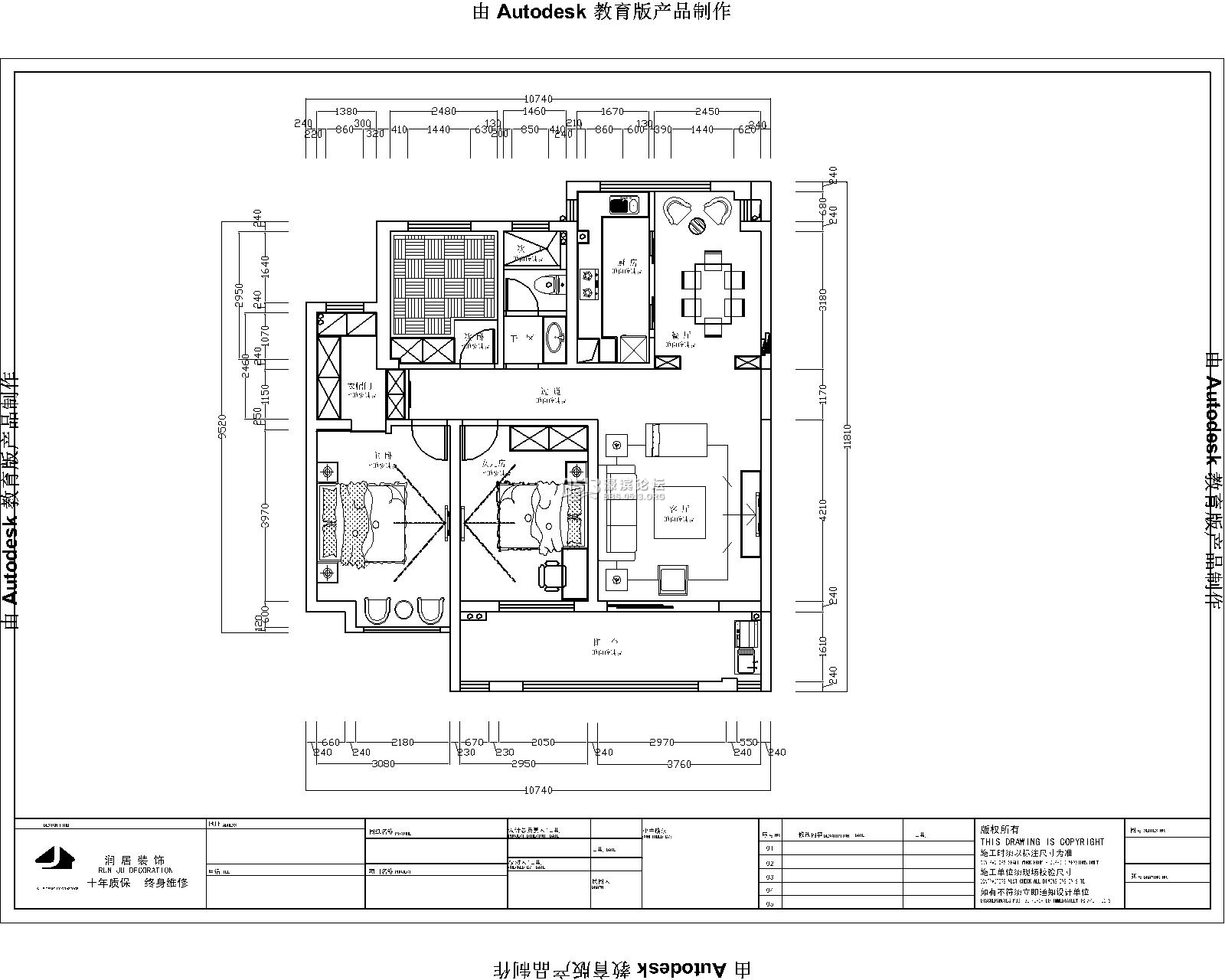
小区地址:南山国际 装修风格:现代简约 户型结构:两室两厅一卫一厨 户型面积:85㎡ 工程类型:半包 装修公司:润居装饰 本案设计师:陶鹏 开工时间:2015.9.22 ( b; J$ w7 H+ X; I2 y8 f7 {
9 m) p# z" n( d/ C/ A$ D& q, g
5 G% d, u1 ?4 \9 @; M原始结构图
; }4 z) {* E8 _8 M " U3 [( [8 P$ X3 _( s& [1 H! P. Y
8 g) }/ o. [0 `! \1 N9 `
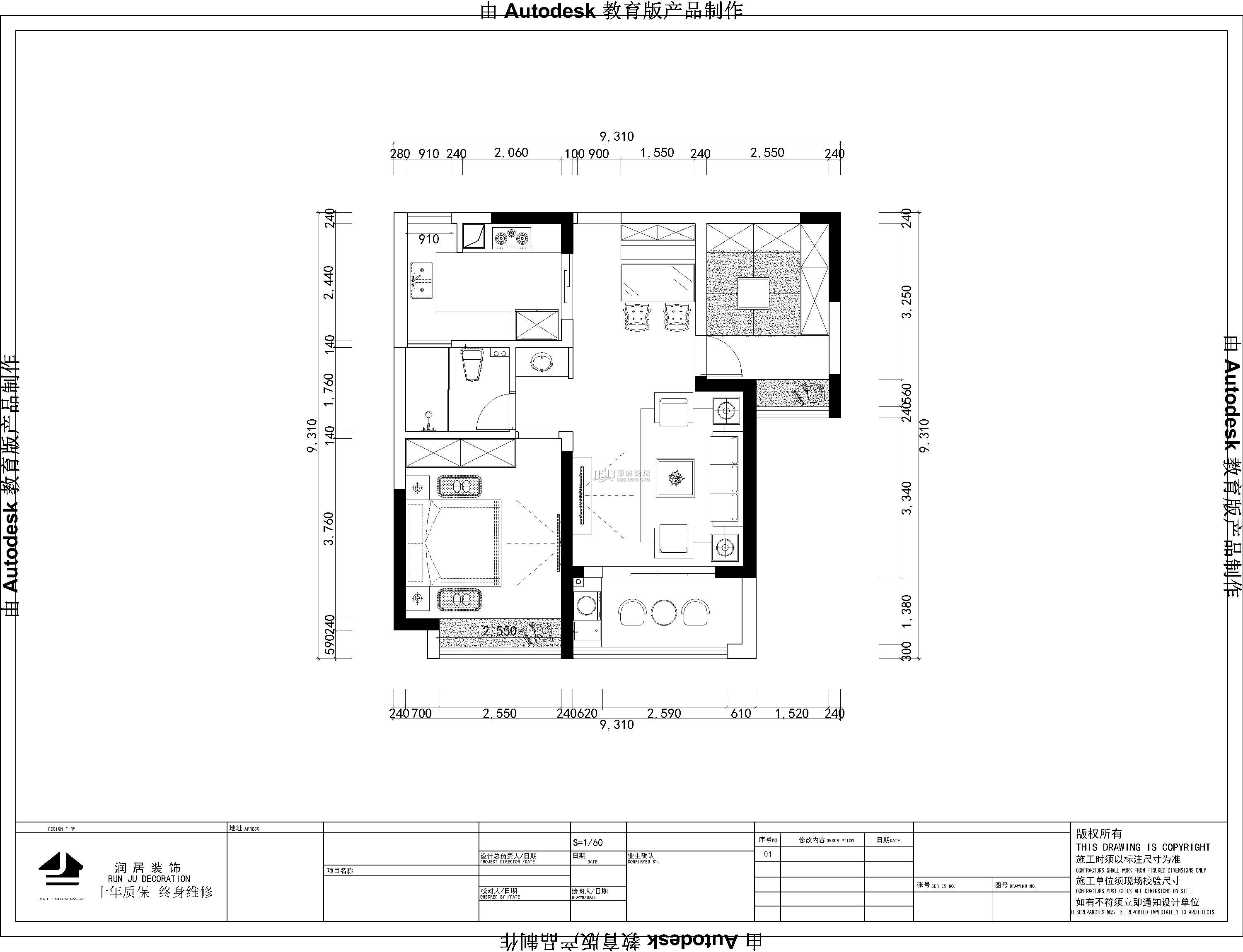
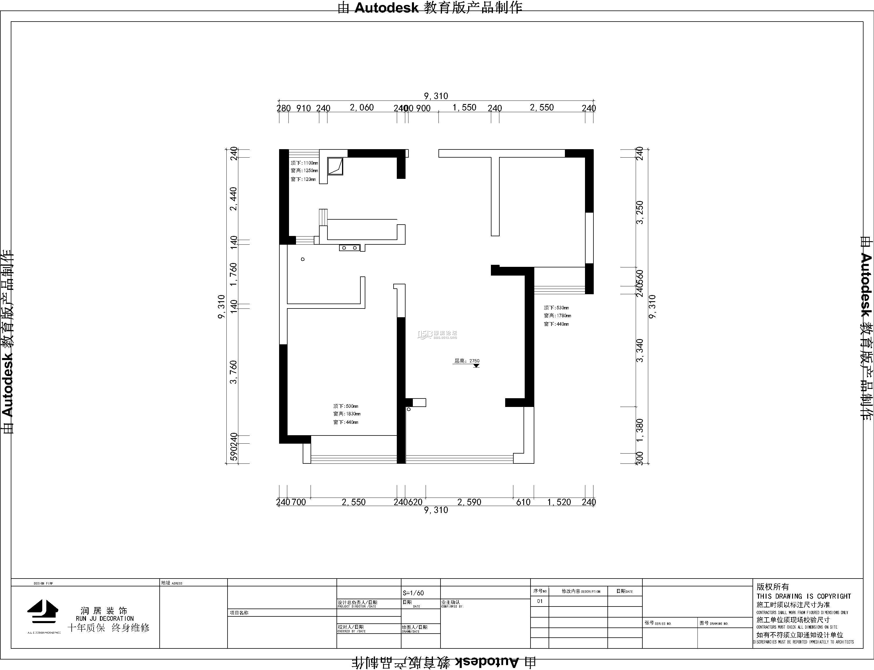
- w& U- ~/ G9 f- u/ g平面布置图
& e* c+ d+ L7 l0 e. z设计说明: 简约风格的特色是将设计的元素、色彩、照明、原材料简化到最少的程度,但对色彩、材料的质感要求很高。 9 u# m' T) a4 y7 X Y3 B
+ Q$ U2 A. k& s0 F+ W' {0 i7 A
' h" q# x( X) t3 R% e6 a4 Y; ^* [+ _- E3 n
小编微服私访记之南山开工
1 w0 M( K5 C% Q v 前天南山国际开工,小编得此殊荣有幸可去现场一观,一大早,小编就马不停蹄的赶往开工现场,一路芳香扑鼻,古有踏雪寻梅,今有闻香寻花,回头一望原来是路边的桂花开了,在这喜庆的日子闻着桂花香心情也变得不一样了! 来到开工现场,才知道从工地的开工到结束要经过多少繁琐的程序,才知道从市场部到设计部再到工程部要付出多大的努力最后才能看到一个温馨的house,瞬间小编万千情绪油然而生,每个人都应该得到尊重,每个人都在为自己的生活在拼搏!
& A3 F, ?# d% @# {+ Q% n# @9 c4 C( _, M+ x1 y! N
首先恭喜南山国际李女士开工大吉
( b- R6 E4 c# D* |- t' J+ I0 Z7 T! I; k0 s
下面小编来和大家回顾下开工前都要做些什么准备 , t$ {! B' {7 V; ^0 ]) K
 2 w' U4 f _, {; }9 c
门两面都做好保护,施工工程一览表,润居标准工艺! 项目经理弹水平线,保证后期工地平整!
7 O4 v5 y% I) e+ F( M* R/ \2 v H6 Z6 `$ t1 b( I
先在阳台摆好鞭炮,发发发!!! + v. Y# D u: _" w
9 z- `2 J6 ~- l D8:58点炮!开工!!!
2 q8 S4 k2 P/ {* O. ~0 _" r* x2 V) D. S% H
点鞭炮的同时业主敲八下墙,正式开工!!! (我们的陶鹏老师是不是很可爱 ) # N& i( t5 d* U6 t
: ~0 d1 w T. t
6 r' z, d4 Q; P( d2 J
. U/ D) o: Q, F9 B4 {; g! V' r. F- T
3 x+ O9 ]- G( {0 h+ R
) u) I1 T9 u# L; L f) j$ [/ Y9 d- X- r! M+ H: c6 I* i6 F
; w( v, [6 ?8 f
2 W7 {. i# P! J* x' q
# a* g' M) F, m; e1 G
) l2 x+ V$ l; T6 G: S2 G装修风格:现代简约 户型结构:三室两厅二卫一厨 户型面积:121㎡ 工程类型:半包 装修公司:润居装饰 本案设计师:蒋冬 开工时间:2015.9.22
% H, g$ Z8 u9 k! [3 D! o
2 ?+ b- B b8 y4 n5 E$ f : S4 ?. q3 M* c& i4 S
原始结构图
: X3 Y2 ^& g5 R; U% [
- \6 F7 X) _2 H% m: c( T7 l& K$ v ! b+ I+ T0 [, ]4 K
l& v! }( g, j- c3 `% H" N2 N) V, ]
平面布置图 $ j4 p5 `1 c( `5 J
2 \" F: W- Q- M5 D0 w' g
7 [7 ~+ x0 U; u+ Y: ?0 ~8 n设计说明: 简约风格的特色是将设计的元素、色彩、照明、原材料简化到最少的程度,但对色彩、材料的质感要求很高。
" [6 ~0 ^4 m4 a* w; e0 f6 m' R O$ J' ]/ n: v& \4 i9 k
. H' `7 ^% B8 g% f) E
' h$ x/ @% C" s3 |, b8 y( V
+ S$ j" o! n1 K, q2 F 骏和 棕榈湾是在南山国际之后9:58开工,其实小编也很想去,但是时间紧迫,赶不过去,略有遗憾  。由于润居在骏和做了四十多套,每家开工仪式小编都有了解,烧香、放苹果是每家开工之前必举行的仪式。
9 G/ I! u$ z v9 P' Q6 ]0 i! {# F2 d
4 G4 c. u% H9 |3 V/ a b# b
每一次的开工就像一个孩子的出生,从空空的小屋到温馨的小家,看着它一点一滴的成长,直到最后的完工,看到最后的毕业照都会感动。每次与一家结缘,我们都会倍感珍惜业主给我们的这个机会,更多的是珍惜因为这次机会与业主结下的缘分,工地的完工不代表我们的缘分结束,而是一个新的开始! 7 f4 N [% c5 n9 g/ h; ]; s& p) t Z
恭喜骏和棕榈湾苗苗妈开工大吉
3 u4 a5 m6 |4 E0 X+ ^7 ?: \: m O1 {9 l8 P( f# Q
- X( N; S' |, ~3 ]% c
7 {! j a) p$ b2 m' ?4 w4 `开工前烧香、放苹果,保佑开工顺顺利利、平平安安! + b3 P6 F4 \" q% }. P- ~% w% O; i
: }) O3 S% l9 H9 [& h q鞭炮好长,提前在阳台摆好鞭炮!
" @/ L% h! l$ \
0 \4 ~. j& r/ s+ v5 [; B7 K电梯、门做好保护!!!
0 p7 C4 _) U0 _# `, |% ^( M+ w/ h- [! g; }9 t5 }1 y$ V
3 g" b) ~5 m" V( ?, c2 n$ y C/ Y
" L+ a, t0 l: i3 @
9 S' ?; M B' K2 ~9 k D8 [5 V" n' \9 u' H8 @* w; x4 W' J$ q7 \
$ @* o) G3 ~( N" A+ l2 r- S5 P南通0 |