2 s/ R* e) i6 C& N/ M" T/ z
# }! ^( z: a3 V* `7 e* `+ C
锦华全案:效果前置+价格前置,让你的家装同买车一样简单。% U4 g/ j# R; ]) B- R
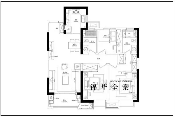
# }( a) H1 b9 y) d7 z4 g3 g华润悦景湾119平米户型1:2设计解决方案! F' A+ z4 b' ^& c+ k* J
# y5 J( O! v" Y" Z( h- o定制档案:+ y' V) e0 w, z* X
客户:蒋先生% ]0 h' E0 R& U
风格:简约风格
3 S7 m0 \; o) m H价格前置:13.99万(全包)
% H+ Q1 F! y* R B: K& E
' z( t; L' Z8 o/ s方案一:
$ j+ [" B0 d/ [; C% b0 H——————————华润悦景湾119平米户型—————————— 原始户型图:
$ ?, l, f" w1 G% q7 S1 Y
9 W. F2 x( X* ]2 K$ ~/ f) A平面布置图
4 c# I) O6 S S$ {. [8 h; M; p
- k* l6 |" p3 l, s6 ]: ^顶面布置图9 F' }5 O8 X" V" S
9 b# n7 X7 w" c7 K7 H d效果图 T) [8 A* e5 N( \: i* }
, p+ k. d7 v0 k& C) H. b v$ S
, @2 j; m9 Q1 n# u. A {" ~" C ]方案二:
W8 f/ A1 U6 c. S) u' G0 t——————————华润悦景湾119平米户型—————————— 原始户型图:6 ~; C) ]4 X& [0 P' \: D& ]
~9 F u; O: \/ d; K/ ^
平面布置图
2 z, n) y- \# z
9 I) _& l) ?; n
顶面布置图6 D2 F1 F, S- R9 b8 o
" q; E* J3 k1 t2 h" t; {
效果图
0 [5 x, q, \3 k) ?9 V' A
& r5 N( F' D7 J& X
2 Q7 ?* W: W' l2 z% Z7 b) J
/ P# Z4 ?/ g% t. m
在线预约:
, H' g, i3 ?; Y J6 q2 F+ `电话预约:0513-68506787
7 r' k5 J, F4 J$ S k
9 G4 y, z/ o# w# p6 t. ~4 _ & n5 i w/ F6 w1 d: Z8 ]' q
) B- g& `7 u) c' Z6 k# M, [* s7 F9 E
# M1 `+ j0 r' a4 S% x
9 g* c7 u7 w& ?9 l) r
2 m( R8 I3 R5 Z5 `
% n) i% A1 P9 r* e( {8 ?2 L( A+ z ; ~! Y6 n. C6 E, L4 T' p
7 v+ S, z, G% N2 o
* e% D: ^8 Y8 J$ k A( o0 y5 T
南通0 |