濠滨论坛

点击扫描二维码

查看: 41939|回复: 0

爱蜂潮定制|【中港城世家】166㎡-现代奢华风格 作品欣赏

[复制链接]

该用户从未签到

发表于 2015-8-23 10:58 | 显示全部楼层 |阅读模式 来自:江苏
0 X2 p. v9 T3 n# X# D' D/ I$ V

% `& {6 s( Z! O( T: I3 ~
爱蜂潮定制|【中港城世家】166㎡-现代奢华风格 作品欣赏
本案设计师:刘佳杰
项目位置:中港城世家
装修风格:现代奢华
房屋户型:四室两厅两卫
建筑面积:166平米
基础造价:10万
工程总造价:60万
工程类型:
半包,包括电线、线盒、线管、水管、木工板、饰面板、石膏板、油漆、防水涂料、轻钢龙骨、地宝、界面剂、填缝剂、堵漏宝、墙宝等材料及水电、木工、瓦工、油工人工等。
刘家杰35x55_副本_副本.jpg
; E0 B- ~) b; `3 h) t6 |8 d
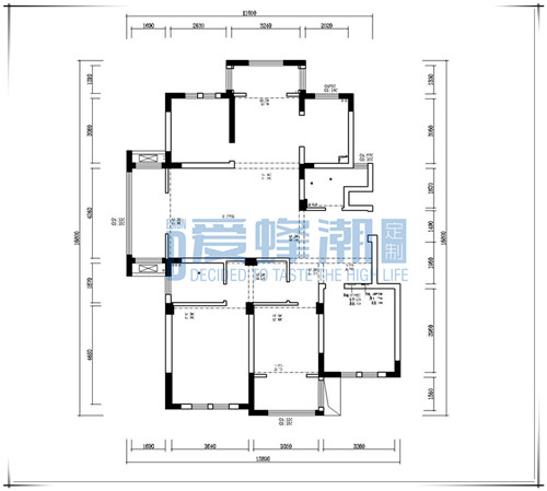
平面方案
效果图呈现:

客厅.jpg

客厅效果图呈现

餐厅.jpg

餐厅效果图呈现

平面设计方案:

原始结构图

原始图.jpg

结构改动图

  U, y: B- [! M) F" V; ^
敲墙图.jpg
/ s+ K- j# }* S: q! u6 G5 y
敲墙图
: O9 s% [0 h4 f+ z! {, q
/ F* Z$ q0 j1 p/ K- s

9 j- B' b: A8 V" `& D0 Y
砌墙图.jpg

' j! H" r5 o7 W
砌墙图

6 M0 R2 `+ d0 X& T  c0 e& I% M7 J' k( w6 }/ \  J) J

& c1 n$ c. q0 n; }4 _

平面布置图.jpg

平面布置图


# V* @3 c; }6 {  Z, \

6 X6 Y: l# {. _2 l
3 E# }) a1 y) [9 r  h+ n南通0
您需要登录后才可以回帖 登录 | 注册

本版积分规则

手机版|无图版|站务联系 | 商务合作 | 平台公约

信息产业部备案:苏ICP备05014191号-1 经营性ICP许可证:苏B2-20110445 苏公网安备 32060202000307号 © 2001-2019 0513.org All Right Reserved.

投诉争议 技术支持:第一互联 GMT+8, 2025-12-20 22:11 , Processed in 0.181397 second(s), 14 queries , MemCache On. 站点统计

快速回复 返回顶部 返回列表