濠滨论坛

点击扫描二维码

查看: 26742|回复: 0

破旧农舍变乡村“艺墅”设计改变生活。

[复制链接]

该用户从未签到

发表于 2015-8-14 09:54 | 显示全部楼层 |阅读模式 来自:江苏
项目背景
项目位于北京西南郊区的大兴县庞各庄镇常各庄村,改造的对象是一栋有着超过40年历史的破旧农舍。原有的建筑是京郊农村中常见的一层砖木结构。屋内没有上下水,陈设简陋,光线昏暗,墙壁被几十年做饭的烟火熏的漆黑一片。南向的院落由于将农用三轮停放在了最里边,完全变成了一个车道。最为糟糕的是建筑的室内地坪比外边的院子低了近20公分,大雨时会发生院中的雨水倒灌进屋的情况,而这也极大的威胁到了结构的安全。与此形成鲜明对比的则是项目所在的地区严重缺水,村里几乎每天都会停水,而且还总是发生在用水高峰的晚上,给住户的生活带来了极大的不便。
改造设计是北京卫视的一档真人秀节目,因此建造成本和施工周期都受到了极大的限制。可使用的经费约30万元人民币 不仅涵盖了从场地及建筑改造,室内硬装,直至家具灯具和配饰软装的所有费用,还为住户购置了一些简单的家用电器。由于播出日期已定,设计加上施工的时间也被限定在了45天。

# A- R" O% M8 C" E7 n
项目改造前8 _5 u7 M& i, Z8 L
Before Remodel
4 z0 C3 w% |2 \% ^. k; x- c1 L" z

; Z8 o6 {5 L1 `  ?; e; |# }- v* h

8 _" H6 [- |, F) y; z1 D: f# Y, k% h
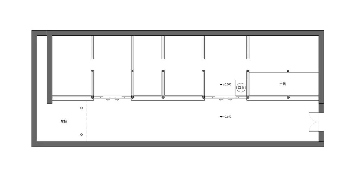
原始平面
Original Plan Before Remodel

# p6 \% C7 j7 [: A% n0 k* \

) N; J( `# g& @* P2 y( J
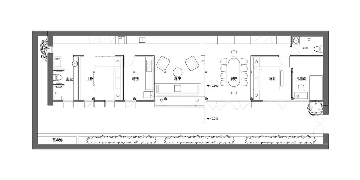
改造后平面
Floor Plan After Remodel

0 ~# ?0 E) x  l3 c
设计对策
; y% y6 Q7 q/ e1 d1 K
针对水的问题,设计师将排水与节水一并考虑。一方面,提升了室内地面,调整了室外地面并重新铺设了排水沟。另一方面,在院子的端头修建了蓄水池,将院子两侧屋顶的雨水收集起来循环利用。这不仅是达到了节水的目的,同时也极大的减少了强降雨时院中的短时汇水量,使得院中的雨水可以及时排净。在晚间停水时,收集的雨水可以做为冲厕用水的补充水源。
在功能布局上,经过与住户的仔细沟通,在充分的了解了住户生活习惯的基础上,我们对原有的布局做出了很大的调整。
首先,我们将原来停放在院子端头的农用三轮车移至大门外停放,使得院子可以被重新加以利用。沿墙的绿化为室内空间创造出了可视的景观。由于当地有不能在北墙开窗的习俗,我们将所有的收纳功能都集中到了北墙一侧,所有的居住功能都安排在了南边采光更为充足的一侧。
鉴于房屋东西狭长的特点,中间的部分安排为公共的开放空间,长辈的卧室和客人的卧室这些较为私密的空间则被分置于东西两侧,避免相互之间的干扰。由于地面高度的提升,梁下的净空高度只剩下不到2.1米,加上原有的简易的吊顶,十分低矮压抑。我们将原有的吊顶全部拆除,露出了木结构及秸秆铺装的屋顶肌理。在做了简单的清理及维护后,尽量保持了它上面的岁月痕迹。
另外设计师有意将南侧的维护结构向外推出了约50公分,将承重用的木柱保护在了室内免受室外风雨的侵袭,同时木结构柱也得以单独暴露在室内空间中成为了一种自然的装饰。
在场地勘测的过程中,我们发现现有房屋同西侧邻居家院墙之间有一道宽约80公分的狭长走道。于是我们在室内走廊尽端的西墙上开了一条景窗,窗外种植的绿竹成了狭长走道的对景,摇曳的竹影也进一步将室内空间同自然环境联系在了一起。
+ _1 v6 s, q0 ?' c) |
项目改造后
After Remodel
咨询QQ:629068887
咨询热线:18862982885/80980727
公司地址:南通市城山路锦安花园附八栋
公司网址:www.afczs,coм,cп
9 k6 v3 s" l) ~( m) ~- R( _# v
6 Z  E& A+ `; ?( g: ?
南通0
您需要登录后才可以回帖 登录 | 注册

本版积分规则

手机版|无图版|站务联系 | 商务合作 | 平台公约

信息产业部备案:苏ICP备05014191号-1 经营性ICP许可证:苏B2-20110445 苏公网安备 32060202000307号 © 2001-2019 0513.org All Right Reserved.

投诉争议 技术支持:第一互联 GMT+8, 2025-12-20 22:11 , Processed in 0.163271 second(s), 11 queries , MemCache On. 站点统计

快速回复 返回顶部 返回列表