: s8 }3 b6 C( o G5 y
% o% p& B( v$ @- S% K- f' b0 O. |3 \; r开工播报 做一个工程·树一个样板|爱蜂潮装饰恭喜【优山美地名邸】卜先生『2015.8.8开工大吉』
; x- ]4 }) f. G m* F4 S+ v( E, |( u/ ~$ A4 Z% \3 V# p* e& F- q3 u m- @+ e
【客户合影】
) V ]- A8 A$ w( p. E) Z O8月8日,摆个八字造型,开工咯~~8 X! M$ [7 R- W) S: l. ~
# c0 O6 j3 G1 q* j
% ^0 f7 h; x0 v# p& T5 v" V
[7 Q O* `( N& a8 v4 | P
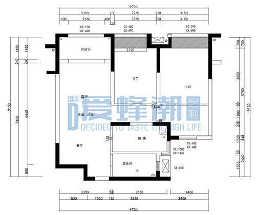
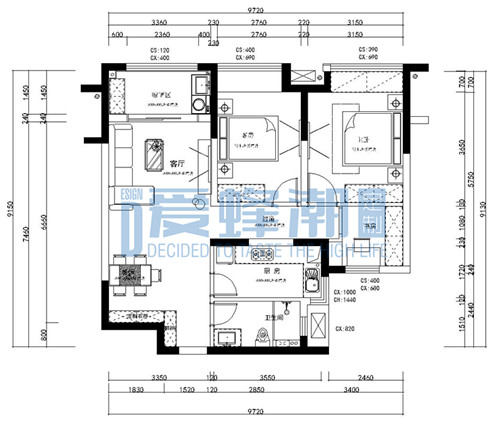
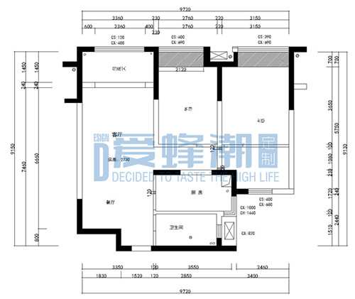
) K7 f+ N7 O e \/ `1 \开工大吉~~ 本案设计师:孟佳 项目名称:优山美地名邸 装修风格:现代简约 户型结构:两室两厅一卫一厨 户型面积:89㎡ 工程类型: 半包,包括电线、线盒、线管、水管、木工板、饰面板、石膏板、油漆、防水涂料、轻钢龙骨、地宝、界面剂、填缝剂、堵漏宝、墙宝等材料及水电、木工、瓦工、油工等 基础造价:4.3万 设计单位:V8原创设计机构 项目经理:顾海东 开工时间:2015.8.8 3 m% c4 Q3 x- l5 W- h
$ e% }) P, M, u8 v5 u
/ w: F2 U; x2 P- p8 ]" e y2 G
- v3 @: f2 g+ P8 M9 Z9 u0 u+ S* [* `: `! ^! V, |* p/ G" O6 o
4 i8 O) Z5 Z0 s C# Q
& M- e; \7 ^3 q" k e% z
! R3 V4 v- t5 l- i) {0 q

2 P% X' \+ z$ @- s8 U0 B
, i3 U C' G* g" }
1 `+ V9 V- D: {' e2 ?$ a南通0 |