濠滨论坛

点击扫描二维码

查看: 1754|回复: 1

爱蜂潮定制|【世伦名郡】125㎡-现代风格 作品欣赏

[复制链接]

该用户从未签到

发表于 2015-7-31 09:52 | 显示全部楼层 |阅读模式 来自:江苏
: m3 c. Z+ G. T; Z- r- ]4 z+ Y
; c! J5 N, z( `+ k# m; k
爱蜂潮定制|【世伦名郡】125㎡-现代风格 作品欣赏
设计师介绍
+ d- i1 u% k) S2 ]3 c  {
本案设计师:刘佳杰
项目名称:世伦名郡
所在县区:港闸区
装修风格:现代
房屋户型:三室两卫两厅一厨
建筑面积:125m2
设计单位:V8原创设计机构
施工单位:爱蜂潮装饰工程南通有限公司
原始图

# v: z) b$ ]& t+ t1 G- L- y, X
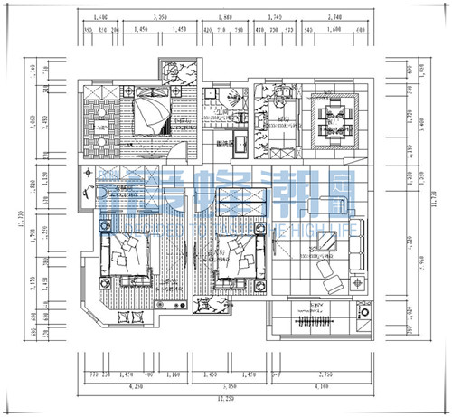
平面布置图
& G( ?, f7 |4 B! R, ^5 [5 d
咨询QQ:629068887
咨询热线:18862982885/68258735
公司地址:南通市城山路锦安花园附八栋
公司网址:www.afczs,coм,cп

- z( F8 _9 f6 Z& j  _+ }$ V" j& j6 p5 d
南通0
匿名
发表于 2015-8-2 17:19 | 显示全部楼层 来自:江苏
提示: 作者被禁止或删除 内容自动屏蔽
回复 支持 反对

使用道具 举报

您需要登录后才可以回帖 登录 | 注册

本版积分规则

手机版|无图版|站务联系 | 商务合作 | 平台公约

信息产业部备案:苏ICP备05014191号-1 经营性ICP许可证:苏B2-20110445 苏公网安备 32060202000307号 © 2001-2019 0513.org All Right Reserved.

投诉争议 技术支持:第一互联 GMT+8, 2025-12-20 18:46 , Processed in 0.880846 second(s), 16 queries , MemCache On. 站点统计

快速回复 返回顶部 返回列表