- 阅读权限
- 50
- 精华
- 最后登录
- 1970-1-1
- 在线时间
- 小时
- 主题
- 好友
- 相册
- 分享
- 日志
- 记录
- UID
- 900712
- 帖子
- 0
该用户从未签到
|
4 k, u5 H7 l: f! [; Y- i, q
7 Z0 r7 U1 p Z! p1 L爱蜂潮定制|【北城名郡】98㎡-田园风格 作品欣赏 设计师介绍 $ `; L& B2 L2 t5 G% R4 O; `1 k
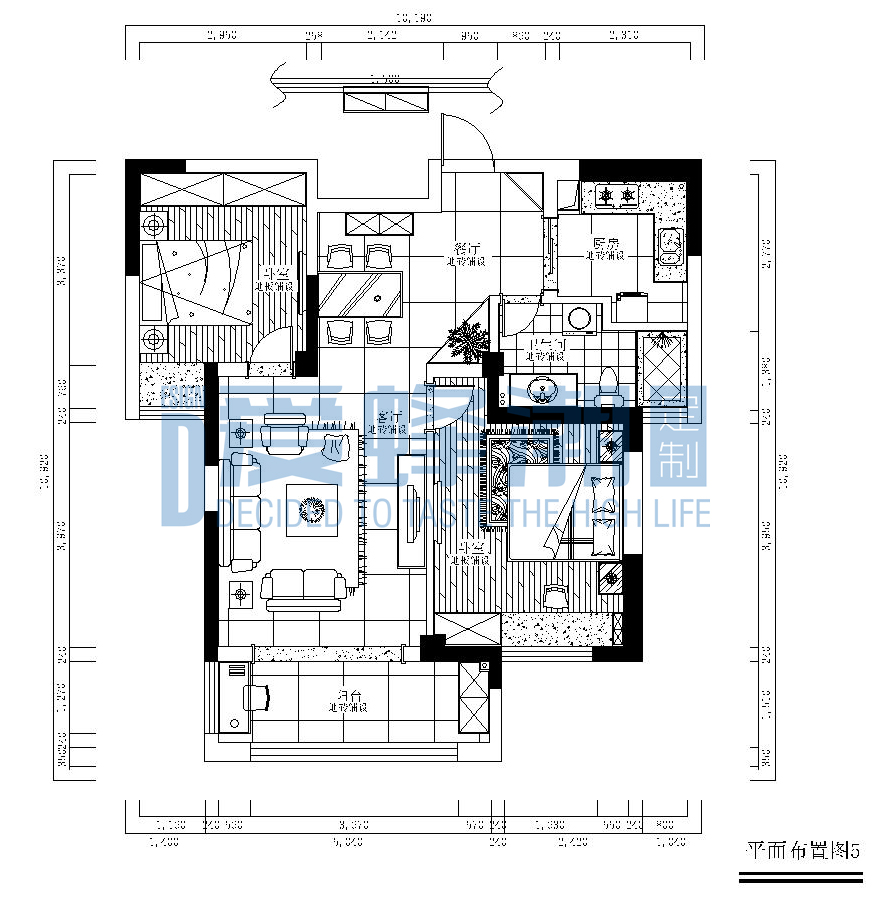
案设计师:王加佳 设计职称:高级设计师 项目名称:北城名郡1# 所在县区:港闸区 装修风格:田园 房屋户型:两室两厅一厨一卫 建筑面积:98m2 ​家装总预算:18W左右 设计单位:焦点别墅设计机构/V8原创设计机构
" H0 v3 p# x( B1 C 3 G8 S8 k5 d* A, ]" U
! |1 ]4 Q* c5 ? : W" ~% Q1 l/ B6 ~
8 e# R3 n; s# D) r/ }
: f" ?* E* `# p* ?, w2 T5 {
- _* P5 s& @# ]8 |- t7 W4 J设计说明! \& y+ U, a* q H" H9 Y1 k& C
家装设计是整个装修过程中的灵魂,对设计的要求要符合实际而且不要照搬、照抄,打造属于符合自己的具有个性的家才是最重要的。室内设计,包括不仅色彩,质感,历史,人文,风格等各方面的因素,它不仅仅是室内空间的三维设计,也不仅仅是技术领域的文艺。 本方案是围绕自然、简朴、高雅的田园风格为主题,住户是一位年轻的单生女性,因她喜欢温馨浪漫的感觉所以主色暖色为主,而田园风格讲求心灵的自然回归感,让人体验到舒适的自然,而忘记掉显示的工作生活的快速节奏和压力,享受自然纯真的悠闲,满足人们对浪漫的向往。所以我以小碎花系列的墙纸为主,而在背景墙上面贴一些文化石类似的墙纸,充分打造出这种温馨浪漫的田园风格。吊顶方面我采用一些弧形、异形吊顶,也体现出业主的时尚感。以下我附贴此住户的图片来体会自然、简朴、高雅的田园风格。 咨询QQ:629068887 
7 N. N' y& b- x! L
南通0 |
|