濠滨论坛

点击扫描二维码

查看: 3545|回复: 3

爱蜂潮定制|【世茂公元】141㎡-简欧风格 作品欣赏

[复制链接]

该用户从未签到

发表于 2015-7-22 11:28 | 显示全部楼层 |阅读模式 来自:江苏
爱蜂潮定制|【世茂公元】141㎡-简欧风格 作品欣赏
. V; Y% K) u6 c2 n  X5 N) ^/ j) G3 R
设计师介绍

& ^: ^6 U4 y1 m5 m0 i3 b
+ t; p8 J7 _. M; J

/ P; D% c1 G6 i
本案设计师:刘一漫
设计职称:v8原创设计机构
项目名称:世茂公元
所在县区:开发区
装修风格:简欧
房屋户型:4室3厅2卫1厨
建筑面积:139m2
设计单位:焦点别墅设计机构/V8原创设计机构
施工单位:爱蜂潮装饰工程南通有限公司
原始图

8 Z9 w5 K0 ^4 j+ B. I' ?, L
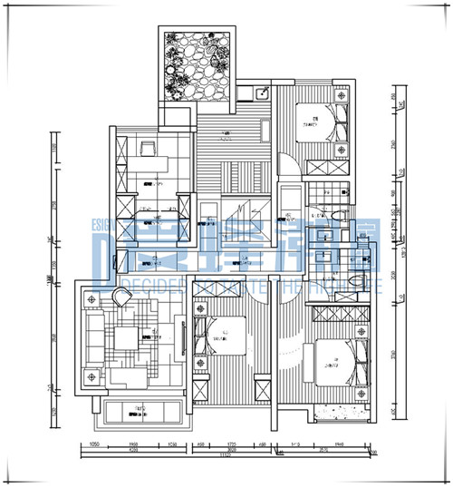
平面布置图
! M( c4 \# m( K# N( r
参考效果图

- |) H3 R. C& A# |/ \& S
客厅
咨询QQ:629068887
咨询热线:18862982885/80980727
公司地址:南通市城山路锦安花园附八栋
公司网址:www.afczs,coм,cп
) L  C0 S- j  |( `' J
南通0

该用户从未签到

 楼主| 发表于 2015-7-22 14:19 | 显示全部楼层 来自:江苏
欢迎来店
回复 支持 反对

使用道具 举报

匿名
发表于 2015-8-2 17:22 | 显示全部楼层 来自:江苏
提示: 作者被禁止或删除 内容自动屏蔽
回复 支持 反对

使用道具 举报

该用户从未签到

 楼主| 发表于 2015-8-14 15:28 | 显示全部楼层 来自:江苏
你们这样合适么 9 t/ Q; m8 @% x6 Z
800.jpg ( j6 \" V: @, |& @( w* L* {
回复 支持 反对

使用道具 举报

您需要登录后才可以回帖 登录 | 注册

本版积分规则

手机版|无图版|站务联系 | 商务合作 | 平台公约

信息产业部备案:苏ICP备05014191号-1 经营性ICP许可证:苏B2-20110445 苏公网安备 32060202000307号 © 2001-2019 0513.org All Right Reserved.

投诉争议 技术支持:第一互联 GMT+8, 2025-12-20 22:11 , Processed in 0.764921 second(s), 17 queries , MemCache On. 站点统计

快速回复 返回顶部 返回列表