1 {- A. s" G5 v. I0 @" X& W$ W
3 y4 J0 v7 \7 z1 K
雅居档案 【装饰公司】:品元装饰工程有限公司(南通) 【更多案例】:http://www.ntpinyuan,coм 【装修项目】:天虹花园 【建筑类型】:普通住宅 【装修面积】:200m2 【设计风格】:简欧风格 【设 计 师】 :品元装饰高级室内设计师-吴楹华 
T7 L- }0 f- @0 [5 \$ w: a
↓效果图欣赏↓ 简欧风格是欧式装修风格的一种,多以象牙白为主色调,以浅色为主深色为辅。 
( Z8 F8 H1 G! R客厅↑ 相对比拥有浓厚欧洲风味的欧式装修风格,简欧更为清新、也更符合中国人内敛的审美观念。欧式风格兼备豪华、优雅、和谐、舒适、浪漫的特点,受到了越来越多人的喜爱。 餐厅↑ 纯正的古典欧式风格适用于大空间,在中等或较小的空间里就容易给人造成一种压抑的感觉。当然,要有文化丰富的艺术底蕴才能善用欧式风格,否则只会弄巧成拙。
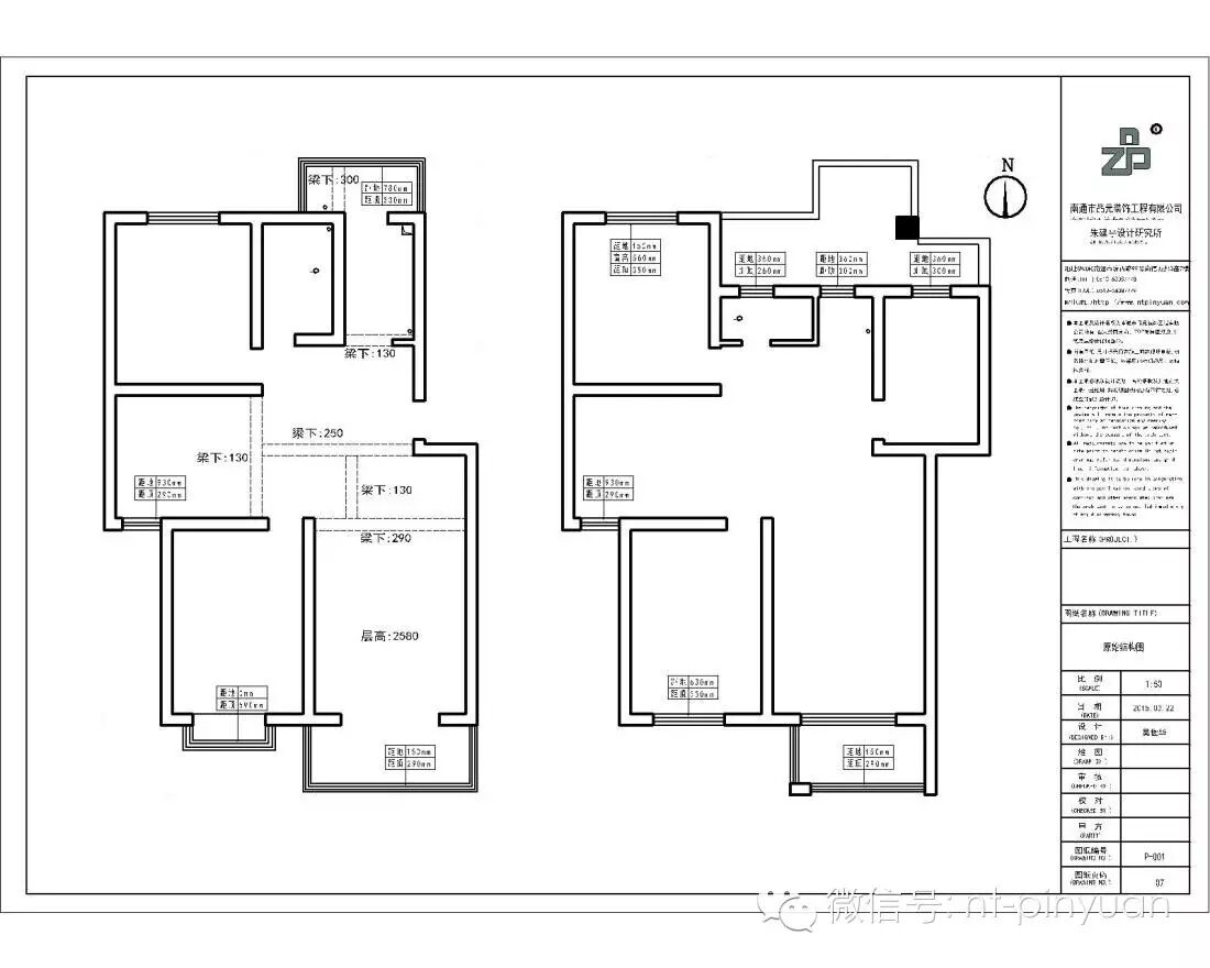
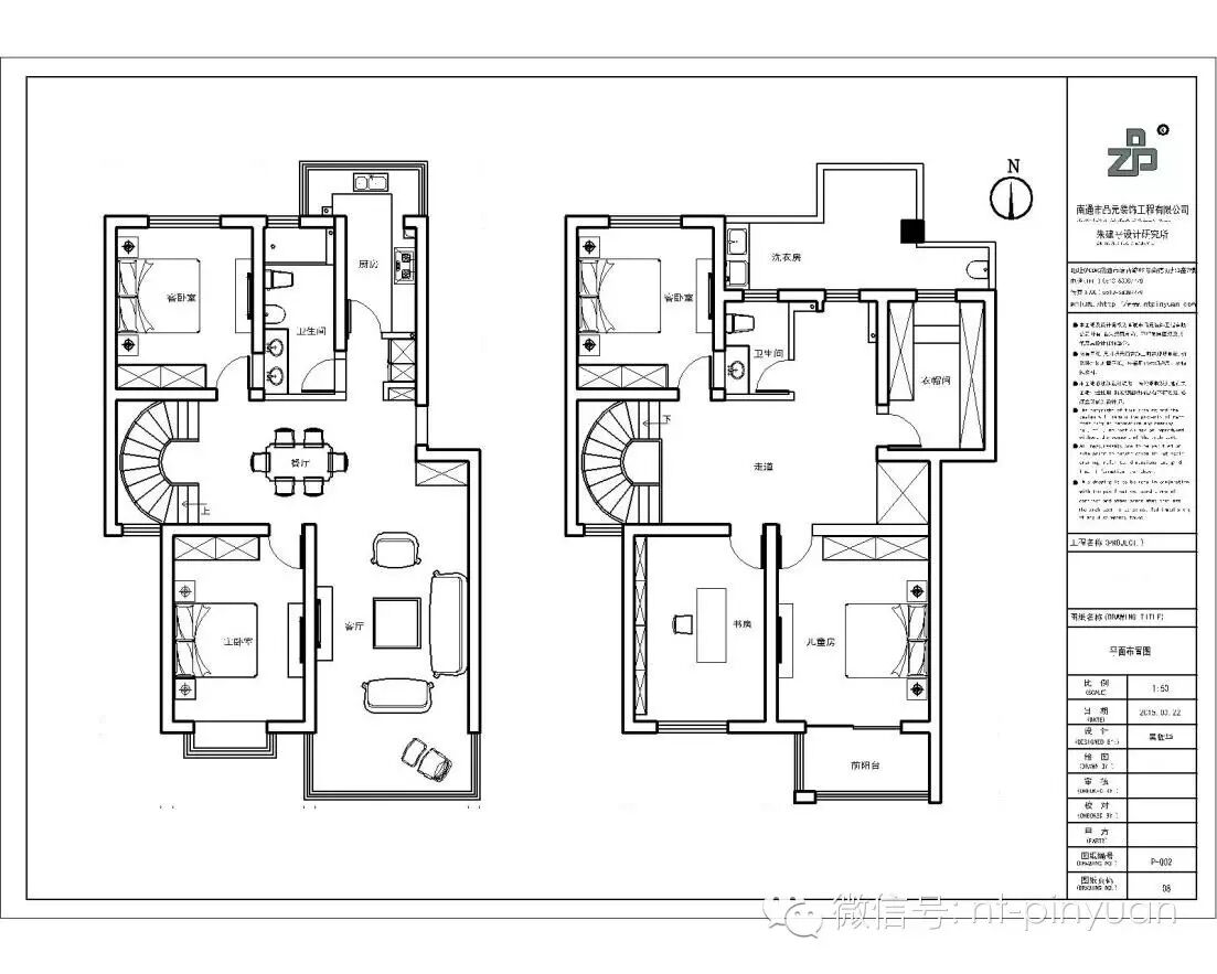
! }; a! ~' i( B 原始结构图↑ 平面布置图↑
. G5 N4 I/ ?$ m0 H* r
>>>品元装饰最新活动 
( f& T V3 R W, j+ I1 v品元装饰辉煌七周年庆大型设计建材乐购峰会
8 \* `% @3 p7 _' _& \' I; s
截止目前已有73位业主成功预约 辉煌七周年,感恩大回馈!各大小区免费登记维修!百幅国际大师设计作品展,千余款国际大牌建材团购! 凭vip卡签到可得价值2499元远程智能空气净化器一台!!抽奖券一张(可抽冰箱,彩电,金币,越野自行车等大奖.100%中奖最低可得夏凉被一套)助力活动嗨爆全城!还等什么?赶快报名吧! 活动地址:南大街城市博物馆东馆中心美术馆 在线预约: 预约热线:13813711964
9 ~( O( p- ^5 c1 x网上预约更有专享好礼!,赶快行动吧! vip:13813711964 QQ 设计,让生活更美好! 越来越多的人选择品质选择品元,我们静候您的到来!
# l1 @% U+ W1 P$ M0 y' @* }: s8 v/ V7 { @' Y+ b
1 j) p; g( X. g! G+ O南通0 |