濠滨论坛

点击扫描二维码

查看: 2251|回复: 0

爱蜂潮定制|景瑞18号【我定制的家】户型解析-136㎡

[复制链接]

该用户从未签到

发表于 2015-6-25 09:24 | 显示全部楼层 |阅读模式 来自:江苏
爱蜂潮定制|景瑞18号【我定制的家】户型解析-136㎡

* b+ j, B: L" l3 A
设计师介绍
* \  h" _* q0 ?* {2 r

. c  H/ }1 c7 ?( b& `: `
0 C* t0 Y1 f$ X
原始图

5 V# D4 q! v3 z% Y' f

2 ~; ]& t* o4 o7 X) c  ^, Y
% K5 d1 Z) H) }# M6 Q! n3 F- _" c
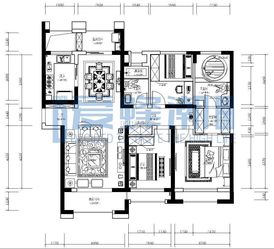
平面布置图
9 N/ E; v% ]; B7 L

0 I1 U$ q' j: j4 `$ l" i

; y+ U9 S  f% H+ ]& `
参考效果图
1 N+ ^1 l* _3 M; j# o

* ~1 ^0 Q. N* s7 w5 y9 |

; C, W0 Y( L$ ~3 ~; H# i
. v( k' {% d5 U% K
: x7 T/ ^- ^, D7 \- O' H

  g& }+ P% g" U# s/ u3 m+ A- E5 |6 E. F! d3 N
南通0
您需要登录后才可以回帖 登录 | 注册

本版积分规则

手机版|无图版|站务联系 | 商务合作 | 平台公约

信息产业部备案:苏ICP备05014191号-1 经营性ICP许可证:苏B2-20110445 苏公网安备 32060202000307号 © 2001-2019 0513.org All Right Reserved.

投诉争议 技术支持:第一互联 GMT+8, 2025-12-20 14:47 , Processed in 0.104972 second(s), 12 queries , MemCache On. 站点统计

快速回复 返回顶部 返回列表