濠滨论坛

点击扫描二维码

查看: 2309|回复: 0

粽情端午|【爱蜂潮装饰】保利香槟80平米现代风格

[复制链接]

该用户从未签到

发表于 2015-6-20 09:36 | 显示全部楼层 |阅读模式 来自:江苏
保利香槟80平米现代风格
设计师介绍

& o; {8 l8 H% e& x5 p6 J' D8 |
原始图1 t2 C( e' c$ P) F6 _' `' u& S

% \, ~4 P3 P3 B# Y. z( U
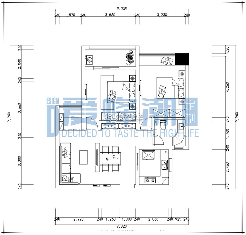
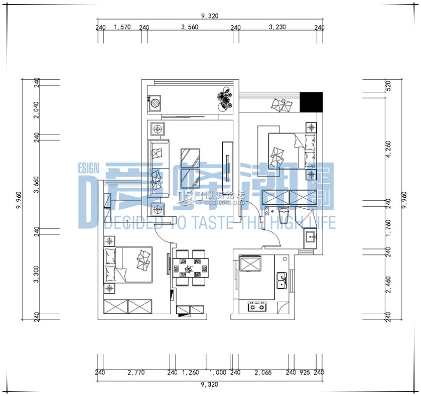
平面布置图

# S. Z& c& j# b& U: w. [

# k$ n/ l4 Y9 P; U& A

& S: z, B1 L5 V: |. d
参考效果图

/ a9 @. R4 S4 L# [0 n

9 X8 M' ^. e4 ]

3 B1 q; ^: X; M: O, |! @  E, K+ J& o0 J* V  {0 a
南通0
您需要登录后才可以回帖 登录 | 注册

本版积分规则

手机版|无图版|站务联系 | 商务合作 | 平台公约

信息产业部备案:苏ICP备05014191号-1 经营性ICP许可证:苏B2-20110445 苏公网安备 32060202000307号 © 2001-2019 0513.org All Right Reserved.

投诉争议 技术支持:第一互联 GMT+8, 2025-12-20 13:06 , Processed in 0.136285 second(s), 13 queries , MemCache On. 站点统计

快速回复 返回顶部 返回列表