濠滨论坛

点击扫描二维码

查看: 1112|回复: 1

【爱蜂潮装饰】景华城84平米户型

[复制链接]

该用户从未签到

发表于 2015-6-17 10:01 | 显示全部楼层 |阅读模式 来自:江苏
$ j: Z  f9 i- v% o) d- H. a* V. N" O0 g' H/ D2 @

, N0 t6 J" e. V, M
原始图
QQ截图20150615160756_副本.jpg
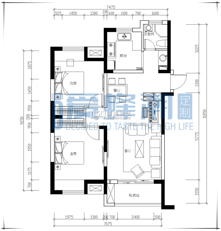
平面布置图
QQ截图20150615160835_副本.jpg
参考效果图
-- END --

温馨小贴士:随时关注我们,掌握最新一手家装咨询哦~& X! c* Z! E" q; t& j" H
爱蜂潮团队精英
2015爱蜂潮战略合作伙伴
" W$ d7 @* A, J, q4 B& {% V% R6 f

- H3 a. L1 k5 R! T6 Q: S+ ^
' U5 L) A" W5 o( d
联系方式
咨询QQ:629068887
预约热线:18862982885/80980727
公司网址:www.afczs,coм,cп
公司地址:南通市崇川区城山路锦安花园附八栋
$ Z0 `# x6 o6 b
+ G! {) T% ?3 d

5 W  ^" M' P- r% T( U' K8 ^南通0

该用户从未签到

 楼主| 发表于 2015-6-17 14:14 | 显示全部楼层 来自:江苏
设计师介绍4 c/ k2 j6 s* P1 x
陈潇溢35x55_副本.jpg
) u! F, v7 f7 G/ @$ x; Q- d3 J
回复 支持 反对

使用道具 举报

您需要登录后才可以回帖 登录 | 注册

本版积分规则

手机版|无图版|站务联系 | 商务合作 | 平台公约

信息产业部备案:苏ICP备05014191号-1 经营性ICP许可证:苏B2-20110445 苏公网安备 32060202000307号 © 2001-2019 0513.org All Right Reserved.

投诉争议 技术支持:第一互联 GMT+8, 2025-12-20 11:06 , Processed in 0.157380 second(s), 17 queries , MemCache On. 站点统计

快速回复 返回顶部 返回列表