濠滨论坛

点击扫描二维码

查看: 3601|回复: 0

恭喜万豪星城业主开工大吉

[复制链接]

该用户从未签到

发表于 2015-6-11 17:04 | 显示全部楼层 |阅读模式 来自:江苏
一楼原始户型图
# K& ^9 U) ?9 p  R! P QQ图片20150610154956.jpg - L% }. D: ~, k# @2 |
8 Q9 Z' C2 \2 }# X. J1 \2 ^
一楼平面布置图/ W" E2 E* D/ q$ o1 b
QQ图片20150610154952.jpg
3 m& t8 z, \' B2 [. e2 }3 }2 _( U" j* F% Q, Z; F" u& Z
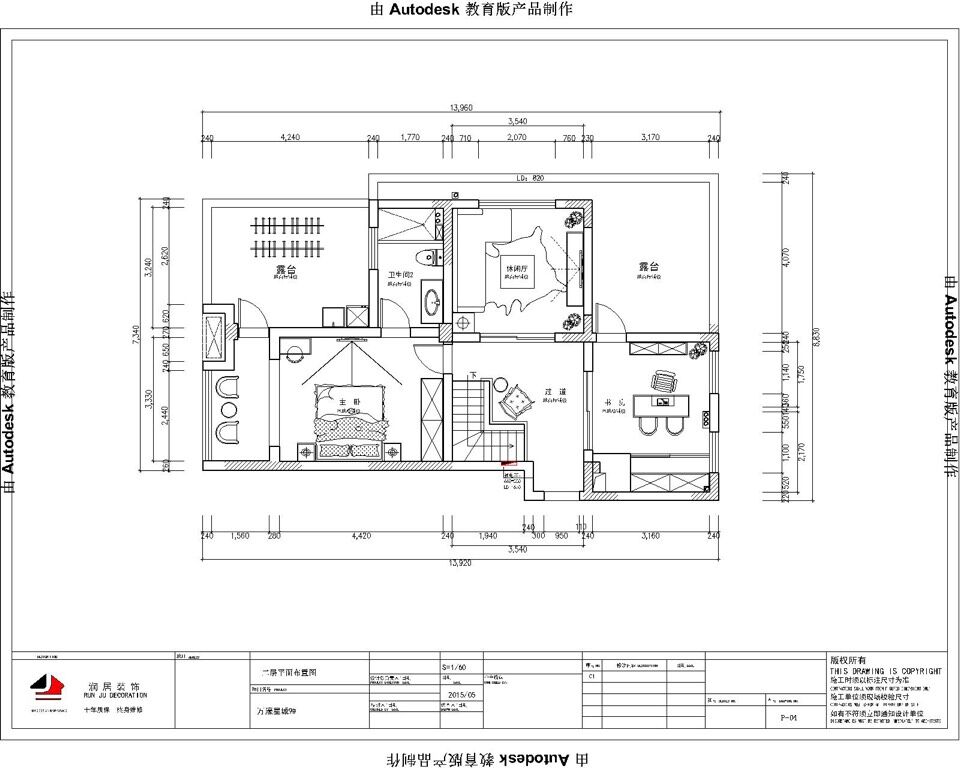
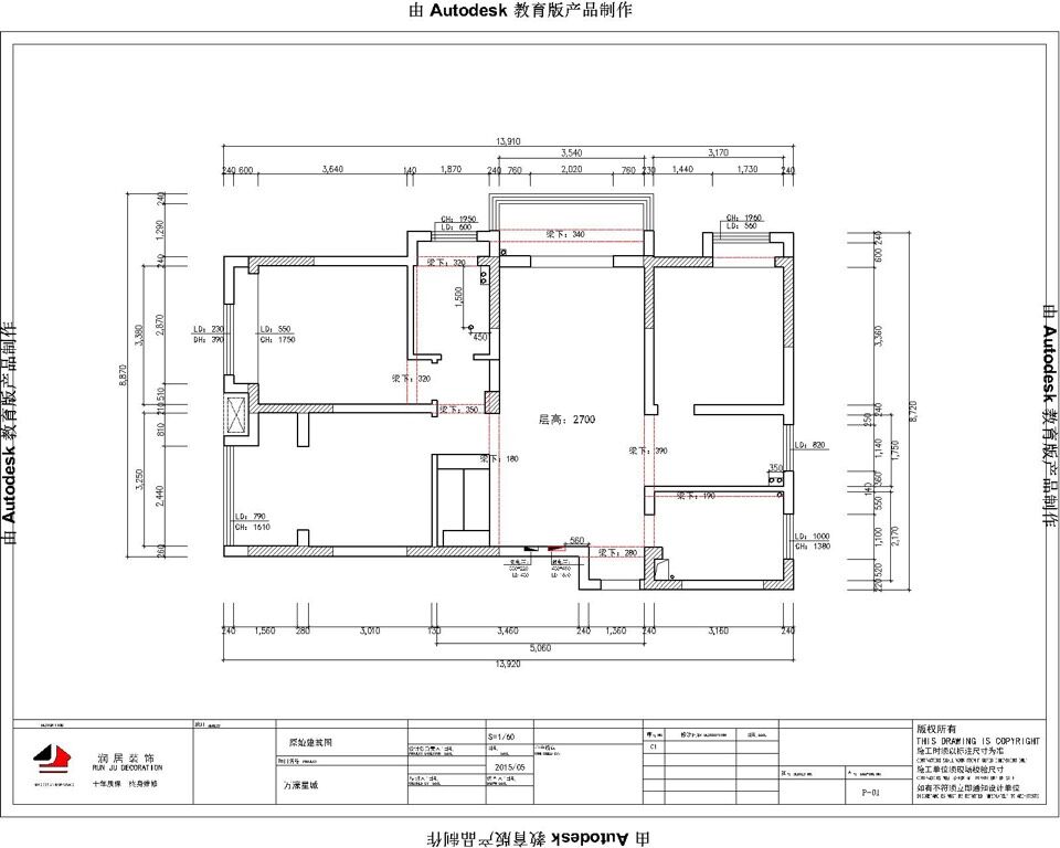
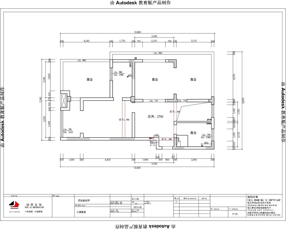
二楼原始户型图
# t/ g9 P8 q& w% Q7 e: q* p5 A QQ图片20150610155002.jpg ) @( {; I0 |9 \' G" {% E) P6 W

0 }, `4 k7 y6 V5 B' X' o二楼平面布置图1 T3 A' P( ^3 i! E- y. V2 \
QQ图片20150610154946.jpg
# ^8 @  l; ?3 H$ s4 n0 R" _# e; S* x  T6 @, s

; s, x2 [0 r2 g9 a* z6 W6 J3 _. O" T2 m! \

3 J/ q9 F, g7 i# X; q& O' F1 ]

润居装饰全体家人恭祝今天开工的万濠星城王先生新居开工大吉,万事如意,乐享新居!

  选择润居就是选择了放心和舒心,润居装饰是濠滨论坛唯一指定监理装饰公司,即便不能来施工现场,装修也能第一时间了解到情况。

( _. W2 @% n* V) b
IMG_0055.JPG 4 I+ c( P1 g! ^2 b. c

, s2 ~% S2 w! S8 c IMG_0057.JPG
, M6 P5 r6 z. _1 o7 r8 r5 L" T  T, d4 g, Q! a
IMG_0056.JPG % S# D+ g% v( B$ w  b) ]$ z9 ^
' w2 E, I* a9 H* C2 a- t
IMG_0058.JPG / c- z: N4 K9 X1 A' L
! v! h- r/ j* k8 b, h7 T
再一次感谢亲的支持与信任,我们会全力以赴为您打造温馨舒适的居家港湾!+ a$ f* k' @4 ^6 k( _
- `0 M: O; L/ `7 a, R4 `  T' m+ v- A

/ u) _% J$ f/ j$ o4 q. T- U4 e" d; u2 d* v& K% n2 v4 B
南通0
您需要登录后才可以回帖 登录 | 注册

本版积分规则

手机版|无图版|站务联系 | 商务合作 | 平台公约

信息产业部备案:苏ICP备05014191号-1 经营性ICP许可证:苏B2-20110445 苏公网安备 32060202000307号 © 2001-2019 0513.org All Right Reserved.

投诉争议 技术支持:第一互联 GMT+8, 2025-12-20 11:09 , Processed in 0.134997 second(s), 12 queries , MemCache On. 站点统计

快速回复 返回顶部 返回列表