|
爱蜂潮装饰 爱蜂潮——中国智慧家居的领跑者! 爱蜂潮——中国家居领域受人尊敬的领导者! 爱蜂潮——中国装饰行业6S环保工程管理体系倡导者! 设计师介绍
: |( ?( c* q4 l6 ]- u5 s工程信息
2 Q# s6 G! @! C$ S# f7 t9 a本案设计师:孟 佳
' \ m3 U) i7 F) x i& w$ l+ E, G# P从业年限:5年
" R8 c/ A4 K2 A5 s( E项目名称:惠泽苑4#1401 ! D: }% h+ {5 z' E( f$ `( k" z
所在县区:崇川区
! d- K+ R; T7 a5 P装修风格:简欧风格 & P$ `3 `7 C6 x5 P; r+ ~% Q
房屋户型:两室两厅一厨一卫
' F1 [ t4 J2 ?2 b: p7 `8 x9 D建筑面积:83
' s( I- S) a1 {9 k2 O7 X# ^ V设计单位:V8原创设计机构 . F, C, G) g+ V/ ^; b p% X2 B
施工单位:爱蜂潮装饰工程 南通有限公司
$ {0 u2 b7 s/ h7 a3 E项目经理:王建明
' g/ R3 B0 J$ U9 r, @7 y开工时间:2015.04.28 ; t7 u- u; @5 b1 y
工程类型:半包
6 ^/ t' [- H. O$ | 半包包括,敲砌墙,水电材料及人工,瓦工材料及人工,木工材料及人工,油漆材料及人工等 ' U0 }. X- `4 q8 f
原始图
6 n, |# [6 j c' U2 i5 q0 u3 H敲墙图 . z; r, W: D/ r1 c' a; b
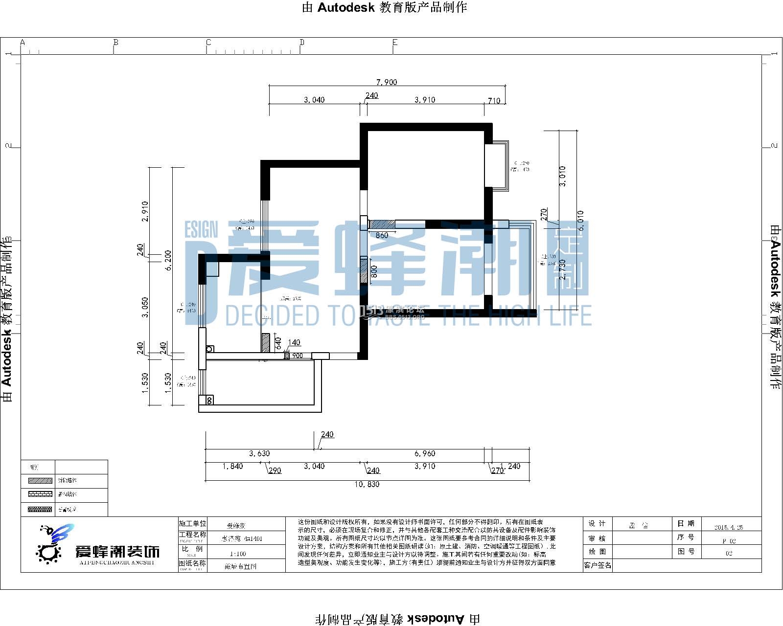
砌墙图 6 W* I/ D2 c6 A1 Z4 t
平面布置图
( v8 b" Q# v+ {1 X U0 _设计说明: 本案业主是个美女。可能是同龄的缘故,我们很投缘,不需要怎么怎么交流就能互通。本案以“浅黄色为基调”,美学上推崇“唯美的色彩”,在居室空间的处理上力求表现自然 轻松的情趣,设计上讲究色彩关系 简约欧式风格沿袭古典欧式风格的主元素,融入了现代的生活元素。欧式的居室有的不只是豪华大气,更多的是惬意和浪漫。通过完美的典线,精益求精的细节处理,带给家人不尽的舒服触感,实际上和谐是欧式风格的最高境界。
参考效果图 / u. m4 L' J: z9 p, d! m- p* _
/ \* W5 d. D, T( y1 Y( E7 T
温馨小贴士:随时关注我们,掌握最新一手家装咨询哦~3 _+ ?8 L$ s+ p9 G
爱蜂潮团队精英 
/ o! f7 P$ q% p1 }% ?9 o5 A5 {& A) E. Y/ N/ n" P; \
2015爱蜂潮战略合作伙伴 联系方式
8 a% S3 s" R/ p/ r4 l联系方式 咨询QQ:629068887 预约热线:18862982885/80980727 公司网址:www.afczs,coм,cп * t b/ i0 ]* Y( `2 e9 {% B
' \1 F( {8 z) F
# W. v+ P! ]- o1 `3 r ?5 H- p% Y南通0 |