濠滨论坛

点击扫描二维码

查看: 2187|回复: 1

【爱蜂潮装饰】热烈祝贺惠泽苑陶先生先生开工大吉!!

[复制链接]

该用户从未签到

发表于 2015-4-27 09:49 | 显示全部楼层 |阅读模式 来自:江苏
爱蜂潮装饰
爱蜂潮——中国智慧家居的领跑者!
爱蜂潮——中国家居领域受人尊敬的领导者!
爱蜂潮——中国装饰行业6S环保工程管理体系倡导者!
热烈祝贺惠泽苑陶先生先生开工大吉!!感谢选择与信任爱蜂潮!!
% {3 W$ }8 _/ j9 B0 X
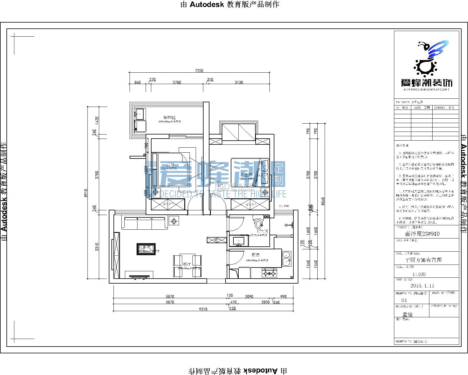
目名称:惠泽苑23#910
所在县区:崇川区
装修风格:现代简约
房屋户型:两室两厅一厨一卫
建筑面积:82平方
本案设计师:孟佳
半包预算: 3.4万
设计单位:V8原创设计机构
0 l6 k& h% d' K4 ?6 }  `0 f% `施工单位:爱蜂潮装饰工程南通有限公司* `( o, s6 U5 n+ H( Y5 |5 D: x% n7 u
项目经理:王建明
工程类型:半包(人工+辅材)
        半包包括水电材料及人工,瓦工材料及人工,木工材料及人工,油漆材料及人工等
户型解析:
        1、户主是很恩爱的一家三口,很好沟通,女业主漂亮温柔,他们又一个很可爱的女儿。
        2、该户型两房向阳,采光良好。
设计师与业主合影
6 f( I+ t/ L8 Z% }( s: o! l

# ~+ c2 Z* R  T, @- I  |
- ?" S8 x6 j2 D, P
设计师介绍
原始图
* u! n: p& i: N' Y3 f4 z, s
敲墙图

1 y6 n; f. q+ v. y
砌墙图

+ E* d' V8 Z8 ]' m2 c
平面布置图

! t1 ~: r' T' `1 k1 z) N
! P0 c$ _2 k# V& ?; o! M/ Y
& R, V0 B$ g5 M0 X8 W
爱蜂潮团队精英
" A7 {/ j7 k0 ^8 P" m( v+ U4 m9 r- S! }

, b( T& f/ f7 X
2015爱蜂潮战略合作伙伴
联系方式' w  X' p0 I: B3 }. j
联系方式
咨询QQ:629068887
预约热线:18862982885/80980727
公司网址:www.afczs,coм,cп
公司地址:南通市崇川区城山路锦安花园附八栋

7 R, R0 C: k# a5 w1 ]- ]
2 ]* I) R3 M/ n* |" b5 K. C- {$ w  s
南通0
您需要登录后才可以回帖 登录 | 注册

本版积分规则

手机版|无图版|站务联系 | 商务合作 | 平台公约

信息产业部备案:苏ICP备05014191号-1 经营性ICP许可证:苏B2-20110445 苏公网安备 32060202000307号 © 2001-2019 0513.org All Right Reserved.

投诉争议 技术支持:第一互联 GMT+8, 2025-12-20 06:40 , Processed in 0.164499 second(s), 13 queries , MemCache On. 站点统计

快速回复 返回顶部 返回列表