6 c5 n& {! I5 V4 O8 c
2 b# m0 ^- q9 {
爱蜂潮装饰 爱蜂潮——中国智慧家居的领跑者! 爱蜂潮——中国家居领域受人尊敬的领导者! 爱蜂潮——中国装饰行业6S环保工程管理体系倡导者! ( u' p' [/ @! H7 [' c2 m. z* a
设计师介绍 姓名:张秋桔 学历:本科 工作经验:7年 获得荣誉:南通装饰协会注册设计师, 龙发装饰集团注册设计师 设计理念:设计源于生活! 设计心语:诚信是人与人相处的基石,没有了这个基础,那么什么都是纸上谈兵.水中望月,犹如雾里看花,显的那么飘渺、虚幻! 主要作品:中港城、景华城、万豪华府、如皋浅水湾、金辉花苑、春辉花园、万通城、 苏建花园城、开发区怡夫塑胶办公楼、金水湾、中南世纪 花城、 中港城、天虹别墅、御膳海鲜会馆、 天安花苑、欧尚华庭、 城市嘉苑样板房、景华城、如皋金鼎名城、启东明天广场。 擅长风格:现代简约、简欧、简中 8 {% s+ {- w( r8 u! [. s% }
% @5 o$ S! X/ k
8 X# P2 a& n; n+ J( x' Q/ s作品介绍 所在县区:崇川区 装修风格:欧式 建筑面积:135平方 本案设计师:张秋桔 工程类型:半包(人工+辅材) 户型解析: 该户型三房向阳,通风,采光良好。 把主卧的飘窗敲掉,进门处墙体改造成鞋柜,把阳台一分为二多了晾晒区 休闲区方便以后生活。空间最大化利用不浪费空间。
$ E' H R2 f2 p8 N/ u$ ?: B1 d! }7 {! K* i5 G) H2 e
原始图3 o) W- r6 s5 w% r
$ |$ f, C0 Q" ^# d! n
$ h. Q5 k) h3 m
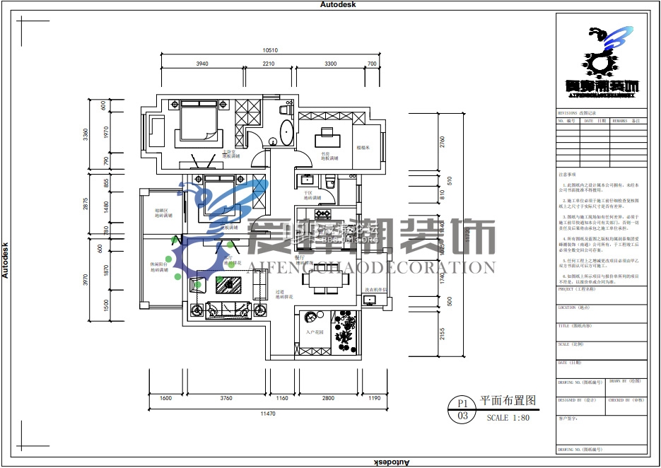
平面布置图( ^% u) j# ^) y2 ~
5 D( e; r6 {+ A
, s8 s) C1 A l2 J4 Q$ T# P
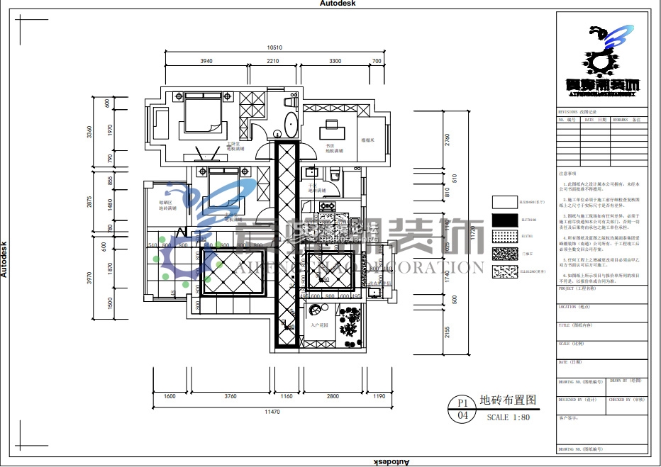
地砖布置图
! h) k; h2 w0 E' X: ^* x$ ^9 w, z+ A
9 ^8 x _* A' `' L% l4 n5 U& G5 R7 o- J$ `
客厅效果图
% b' W& K- S5 z& ?& q0 b+ S 7 C# m. V% i, G0 K* I7 `( P% p
2 B( h& V8 ? V
餐厅效果图
- L- \9 @. P% x+ p6 b ! w9 y: X) e2 W/ ^( s8 G
* G; M0 p9 E3 T5 k: n; T6 m1 a- j
设计说明' e: N% Q' n0 I
该案采用欧式装修手法,地面的拼花,与吊顶相呼应,整体以暖白色为主。 少量的黑色与卡其色调石材衬托。用极具浪漫气息的地毯软化空间。微黄而明亮的灯光在纯净的白水晶灯下的折射下来,浪漫,温馨。 保留了原有的两个卫生间,主卫与衣帽间在一起的设计,节约成本,更方便以后生活。外卫生间采用干湿分离的设计,卫浴需定制,根据实际尺寸定制,不浪费空间。 通过巧妙地空间规划,从客餐厅到主卧房,书房,衣帽间及入户花园等功区一应俱全。 采用中央空调的家电配置,使得几个设备平台充分利用,让家里储藏空间多了许多。 5 T3 ^& q- D( P6 g& b/ U+ z0 |
$ D9 n& B5 Y' }8 `
* C y' q" g" Y$ r4 W, x* v爱蜂潮团队精英
6 M9 u: \ o: h$ S" e- Y. P
: p, O. W1 v( _' H; a' R+ p5 }: ]% E
" @/ x! D+ b! C! L. F4 C0 G9 U; F1 }$ w0 b9 N. p
8 j2 w" W, y2 m: G* t2015爱蜂潮战略合作伙伴
, o/ m% `4 H& ` p2 v% f0 c5 M. h- U' x' V8 G- F6 Q! c
联系方式
) D! ~' g. H5 K7 V, a; b+ |9 |联系方式 咨询QQ:629068887 预约热线:18862982885/80980727 公司网址:www.afczs,coм,cп
2 v& x0 z$ j3 T+ E# Q( m% C# Q
7 a' K& f( U ] j9 [+ f; b' C+ o6 o7 N6 \# l( ~$ I
南通0 |