- 阅读权限
- 255
- 精华
- 最后登录
- 1970-1-1
- 在线时间
- 小时
- 主题
- 好友
- 相册
- 分享
- 日志
- 记录
- UID
- 811356
- 帖子
- 0
TA的每日心情 | 慵懒 2014-6-28 08:44 |
|---|
签到天数: 9 天 [LV.3]偶尔看看II
|
4 o1 ?$ i# G- T) ]2 N
4 e& Y5 A0 z+ ^/ K2 Y【印象水仙*2015*新作品】◣素雅◥菩提湾 现代风1 H5 }$ o2 E6 r# s
- [- [6 R" `9 S- }3 N% |# ^/ u- p楼盘名称 菩提湾) H+ Y) s1 K& e
外框面积 88㎡
! ^; ~+ [ s r2 P! m设 计 师 王杰
. O5 d/ \/ k4 Q$ d3 p2 U; v设计风格 现代风
5 p# z- w8 U; u+ m( m用材: 复合地板 软木 文化石 乳胶漆
: Z. N" u0 L# U3 f6 ]- S) h1 r
( h( ^5 O5 G7 x9 ~ F L 本案是业主首套房,所以在装修资金上投入比较紧凑,风格上走得是简练的现代风。本案在前期设计上对功能性做足了功课,使业主入住后能在房屋中感觉到物尽其用、物有所值,色彩的多样性让空间顿时灵动起来,既不缺乏生活气息又能突显时尚明快的效果。
2 }$ R: _7 |* N
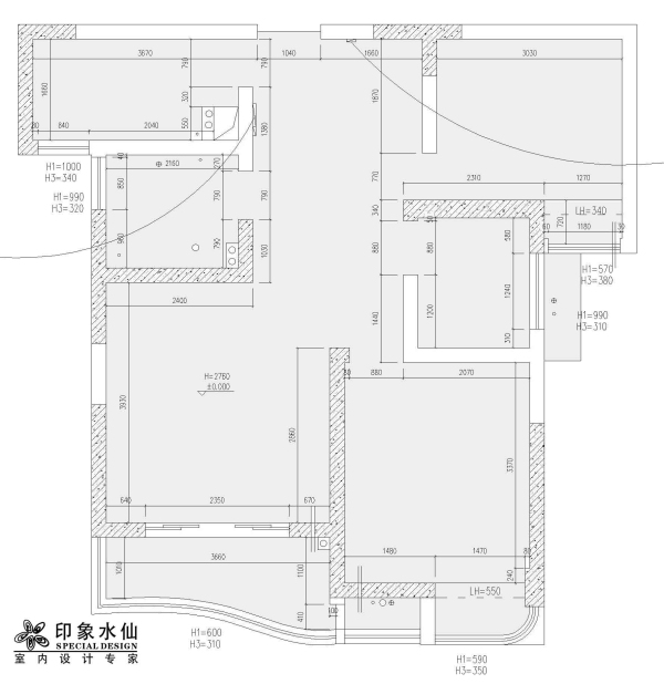
8 i1 x1 q( ?# b& U3 i原始平面图0 n, l6 {/ `! J3 \9 x7 ^! H* [
/ O1 O. q! w+ J( ?, ]# N, |5 \* p
) L6 F% g1 h2 c, i$ E7 j8 W
' K% F+ ?5 p. h. N; ^) L0 h+ L
平面布置图1 A( [# `5 x$ H' W1 y
h h9 `; w5 I; o; ]9 Y
6 a% e# k+ ?5 |4 V
0 L* c3 Q: J _
! u( n4 } _% Y* N0 R
6 ?, z8 z) d7 |! v( a1 g3 c1 _3 ]1 i1 }; G7 |7 f: m
0 [7 `: ^( E: ^/ f) T) c- E9 n
封面:
7 c$ g2 ~) P2 {" {! X. L. L1 w& b! b% z
+ b2 _* K* Y: `3 Y" t. \
* W+ W1 ^/ @2 n/ H$ h: j' m. q客厅:0 @+ _# ~: q& C
* l. c2 A. w. n7 l
2 [- \/ q$ u9 M9 M; G7 ]
& d$ p$ h W- R! v# ?% s' K
- l: D# A H2 A4 o
7 _1 v1 W k2 f* I! w8 H
- \1 D$ [* k' ?$ E. K& p# s& s+ `
. Z" \/ o& [) y$ F! [7 `5 U$ D$ w, @! I& N- @
电视背景:
9 b$ U+ R# D4 y) D/ u, D9 ~. z- ~, m# N' t
q- y/ x# c; p) ?9 i |" A0 l2 B# Z. T0 Z
过道:
' v, n# v1 g8 o P! _) {+ w0 a( M7 i" b) \
U) ?& {% y' }; D) X+ }: ?
# ?" o7 Q; z, t$ P6 w: M" d _% ]0 K# ?% J
7 q/ \. @4 s' m$ O3 m
玄关:: c; Z2 P4 o9 z( c1 Q
. ~) T. I- f3 t2 D. T* ]$ _
$ S+ ?; U M" V
. E( l9 z# o: g0 f# c餐厅:! y4 A$ j, h! ?8 { a& E* x
" v! ~% _5 k% E) a
: o. I; Z2 s0 e8 W- x5 q% N+ r& i- T x
/ l5 X2 Y. o, i. ^5 C/ P
7 G6 d# T2 G$ n6 U4 A/ y( a. u
' |1 Z5 u3 \4 W& f
& N: B$ \; ]- y5 A7 x4 j
6 V8 l+ k: h) c1 v0 ~! O
主卧:9 ~. |/ x: @* O+ X% A- |* e, {
# A. M* \! C1 \2 U
5 t+ D1 q5 ^- c
: H! q' U, a1 k+ W* ]5 A
" N1 ~8 f6 v: b. ]% i. F
# \! ?' g( k p7 x$ `/ L, b5 t4 y7 s9 G u
衣帽间:: F4 Z3 }. x% `. C0 M. Y
' q" s) x$ s* o2 L1 `$ Q8 U
3 S( W. x4 k8 i; b/ r, T# N" d
2 x0 e; f: p5 [, X: e3 L* F- H
7 A4 {7 d6 i$ S
. X; D2 j. H$ y5 c. e& e* ~/ i f飘窗:4 _" k" U" _$ f. ]# _* H; H
3 `( i+ J! O! K. Q/ ^' w- U9 R. q& p5 R/ y7 w- N
$ N9 C, O4 R4 R2 _1 h
2 A2 z, {, E$ T7 v
1 {2 q; \3 ~% g0 }( `卫生间:1 z; R. I. m' i$ w" Y& c! p) `
/ I, F6 G/ c4 B; S* d
! b" W6 o6 s Q6 D2 L
* z; y! a! J# B# W; Z- G
% m5 f* @3 Q+ k1 y
( \$ O) y" h K6 _9 R% n* Y( Z
u5 D, j8 {& q7 U6 y, u. \- P! H
3 M/ r, M8 c; _6 h厨房:& W3 d8 h. |+ k$ z2 G
; g6 b/ G9 D1 v( l' u
" Y S8 G J. K0 P1 u/ A& t! I6 X9 \
3 k4 s/ \3 P9 Z2 Y
8 K8 }/ I* l1 Q! ~6 {
. c: S/ k9 T% @5 y4 F# ^, ]: T4 h: \6 c
3 n3 B$ x2 a X) \; i2 ]
: Q6 o# X' P; o- ?
2 m2 s. a5 Z$ g, l$ f5 _
1 N/ n4 A7 W0 \3 S/ H# d+ F8 g% _2 p+ ?& s; k& I9 \
, V @. \; N$ F7 W南通0 |
|