$ |' d @/ w- Z+ \8 ]$ y
) j9 ~0 r$ B; k0 T温馨舒适是美式风格的主要特点,一些做旧和实木为主的家具为家中营造出大自然舒适的氛围。美式风格所代表的是美国这个崇尚自由的国家,其自在、随意的不羁生活方式无意中也成就了另一种美式浪漫----不造作、不约束。美国的文化是一种移植文化,美式风格的家居也正好应证了当下美国人对生活方式的独特追求:有文化感、有贵气感,还有不可替代的自在感与情调感。 ------品元装饰
) x/ i2 q: c% S# B- |/ ^' E
5 t0 g: u2 W" l1 V; R 
E( i+ |+ O i2 K2 ]$ v' l>>>品元装饰美式风格成功案例欣赏
5 f7 d5 [$ z. [$ o4 p →雅居档案← 【更多案例】:http://www.ntpinyuan.com 【装修项目】:星光耀 【建筑类型】:普通住宅 【装修面积】:140m2 【设计风格】:简美风格 【设 计 师】 :品元装饰首席设计师-柏坤
6 u0 b* t9 Y$ `( Y V2 a % b# u3 _6 Z$ @: V3 n1 X
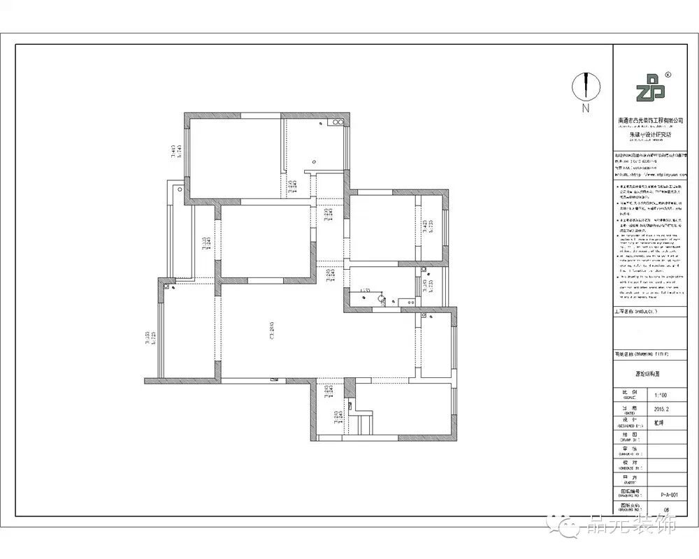
原始结构图↓ % C. T+ V" C* v8 u
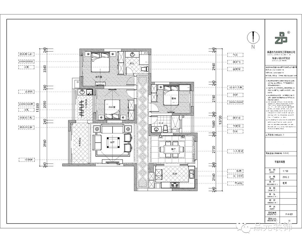
平面布置图↓ % [# T$ E- n; k _3 W
【设计说明】 :本案的公共部位色彩主调为白色和灰蓝色。家具为古典直腿式,家具、门套、窗深色,。擅用各种木线变化、富丽的窗帘帷幄是西式传统室内装饰的固定模式,空间环境多表现出华美、富丽、浪漫的气氛。效果图欣赏↓ 
* G8 v ?" Q% Q5 O0 F/ |- ^4 F2 N>>>相关链接 品元装饰春季家装博览月 专注家装品质 - l% y# v! J9 b
活动时间:3.29~4.19家装建材博览月 活动地址:一号桥南50米路东,濠西路99号尚德城邦B座7楼 预约热线:17715038483 在线预约:
' o7 J# q+ M8 d; |$ f越来越多的人选择品质选择品元,我们静候您的到来! 南通0 |