濠滨论坛

点击扫描二维码

查看: 2388|回复: 1

【爱蜂潮装饰】美女设计师代表作品之走进橡树湾之现代风格篇

[复制链接]

该用户从未签到

发表于 2015-4-11 09:34 | 显示全部楼层 |阅读模式 来自:江苏
爱蜂潮装饰
爱蜂潮——中国智慧家居的领跑者!
爱蜂潮——中国家居领域受人尊敬的领导者!
爱蜂潮——中国装饰行业6S环保工程管理体系倡导者!

6 T+ p. m" `. o. z
走进橡树湾之现代风格篇
基本信息
工程地址:橡树湾48#2006
设计师: 刘一漫、季红梅         
户型:   三室两厅一厨一卫
面积:   135㎡  
装修风格:现代   
每平米造价:600元               
半包预算:54000元        
主材预算:25万
餐厅效果图
! {5 L9 P/ p. \# E! v. q! }6 j
客厅效果图
$ ]7 u. U' G" }$ r" J5 Z* T% H5 d

  p% a: W- F( ~8 K/ Q& g6 e; s
设计师介绍  Q7 y+ X9 H3 R! M
姓    名:季红梅
毕业学院:厦门集美大学
从业年限:3年
设计理念:设计因人而异,品质始终如一
设计心语:每一个作品都像自己的孩子,会用心培育
擅长风格:现代简约、简欧、美式、田园
成功案例:苏建 、  星光耀  、万豪 、  骏和 、 橡树湾
  N2 g0 l& t6 `$ U7 I& Y0 Q

9 O2 c" [8 p1 t' N$ T! O8 U/ B2 o- t1 p/ x0 {2 C% z! p

: @: W5 {( ^( A
姓名:刘一漫
学历:本科
工作经验:四年
毕业学校:齐齐哈尔大学
设计心语: 追求独一无二的订制生活理念
设计理念:我主张个性化的设计,有新鲜感灵活的设计。
主要作品:中南世纪花城、如皋都市华庭、绿城玉兰公寓、高迪晶城、万濠星城等
- p* Y7 Q, G6 T& n& k

" E1 ]  m* `) N, y: t; k6 Z! d, H

& Q" k' m5 d# \* j2 s& E7 P设计师与业主合影~~美美哒
' S+ f( z4 N8 ^
* r' {) X# j  ~: g/ o/ c8 r

: J$ L+ y  p" }0 Q- t6 S" S6 x& ?5 s6 D$ r0 k- F
" n' a9 T9 G) I+ j+ ?( l; S

0 h& x7 v$ A- ]0 z. o
7 q( Y, s" r: B( H1 r

" P& }' n8 x' w- |5 u4 K  ?: j$ @  Y# |$ {! B2 P

. e) J9 u% g* F: M
, M6 m+ v* V- Q' T+ _; x, R) y
# y! A; q! k. I8 Y# }# f

& l) f% Y$ o) Q& m2 ?' P6 X+ B' N
  L$ b0 p' B2 t9 e) P, s
/ v5 P8 o, X) A# W9 v- I
南通0

该用户从未签到

 楼主| 发表于 2015-4-11 09:35 | 显示全部楼层 来自:江苏
方案解读原始结构图2 _) p, l. o% q& b3 }2 J

. l- b( N" S6 q1 ~7 ?$ H/ g7 J6 a# z/ c7 v& v3 k$ v

" \0 k7 h" i2 @/ R3 W' O# {- c1 {
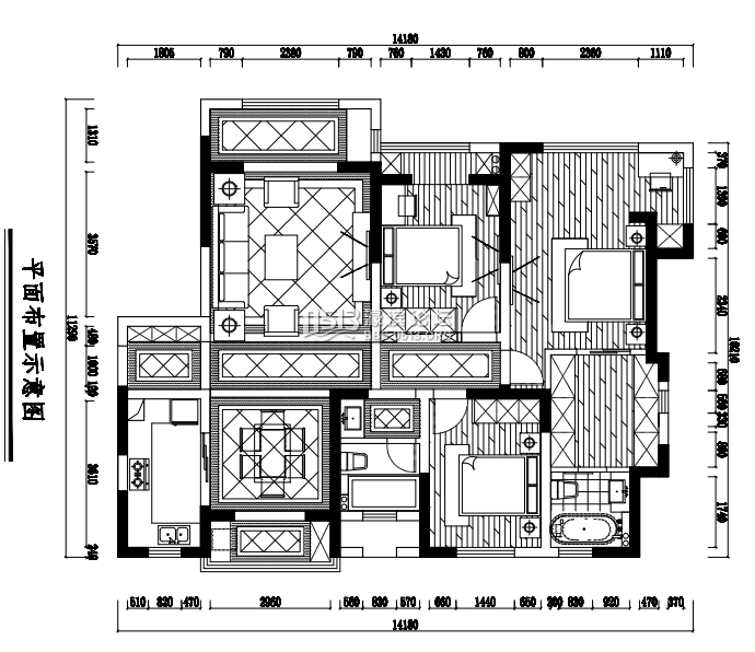
9 [8 q3 [: G! H+ |平面布置图
- ^& q7 g* K3 U6 h" h% m: M7 @

9 ^- P& {6 Z1 U1 [4 c# z* ^- }- p$ x; j
户型解析:
户型优点: 户型规整、通风采光较好。
户型缺点: 主卧卫生间过大,南边次卧空间较小
设计说明:
本方案是围绕现代简约为主题,以简洁温馨的设计风格为主调,简约风格不仅注重居室的实用性,而且还体现了现代社会生活的精致与个性,符合现代人的生活品位。室内采用软包和微晶石,配上精致的装饰品,既简单又大方,加上灰色的壁纸整个室内的现代感觉被提升起来。
使用材料介绍
主料:微晶石、墙纸、地砖、软包
! n8 l2 B. a. F( U5 R: @2 H
1 }1 M/ I: Z; z' i  e" I
# T& j- I& e  Q( s0 Z
. M  C0 ^  q1 z4 D0 \$ G) ~

) ]( Y4 _" n6 W( g1 l1 _联系方式
咨询QQ:629068887
预约热线:18862982885
公司网址:www.afczs,coм,cп
公司地址:南通市崇川区城山路锦安花园附八栋

, |8 N- `; w# @0 q6 {& |. z# X
* ?  `; i! e' _6 d0 P( Z: ]
  g  P) g! x( k
回复 支持 反对

使用道具 举报

您需要登录后才可以回帖 登录 | 注册

本版积分规则

手机版|无图版|站务联系 | 商务合作 | 平台公约

信息产业部备案:苏ICP备05014191号-1 经营性ICP许可证:苏B2-20110445 苏公网安备 32060202000307号 © 2001-2019 0513.org All Right Reserved.

投诉争议 技术支持:第一互联 GMT+8, 2025-12-20 06:50 , Processed in 2.620587 second(s), 14 queries , MemCache On. 站点统计

快速回复 返回顶部 返回列表