濠滨论坛

点击扫描二维码

查看: 2544|回复: 1

爱蜂潮设计师——袁野设计作品

[复制链接]

该用户从未签到

发表于 2015-3-28 11:24 | 显示全部楼层 |阅读模式 来自:江苏
爱蜂潮装饰
爱蜂潮——中国智慧家居的领跑者!
爱蜂潮——中国家居领域受人尊敬的领导者!
爱蜂潮——中国装饰行业6S环保工程管理体系倡导者!

% ]1 l8 N: [; r2 D: j6 M
0 I1 Y) s# ~- C/ O7 ]  v* g
设计师介绍
姓     名: 袁野
毕业院校:南京理工大学
从业年限:4年
设计理念:因生活而设计,因设计而美好
设计心语:设计是为了让家更好,用心设计是为了让生活更好,设计不仅仅是一门艺术,更是一种生活方式,一种人生态度
擅长风格:现代简约,简欧,中式
成功案例:优山美地 万通城 北城名郡 苏建阳光新城  弘阳上城  华强城
yuanye.png

9 K* Q6 \0 l9 J2 I1 T
作品介绍
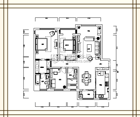
项目名称:景瑞望府
地址:开发区星湖101街区
建筑面积:145M2
装修风格:轻古典
主要材料:微晶石  进口墙纸  进口石材  硬包  软包 等
设计单位:南通爱蜂潮装饰工程有限公司
原始图
. c& G& w4 j% ^) e$ H8 v 袁野原始图.png
+ @  P# c* X6 y2 R0 I/ o# B平面图
袁野平面图.png
) |7 y3 _& T& t5 r餐厅效果图
餐厅效果图.png ​
客厅效果图
客厅效果图.png
设计说明
业主是一对非常恩爱和谐的夫妻带一个20岁的男孩,夫妻都从事教育事业。思想活跃,品味高雅,对传统文化和欧洲西方气息有深厚和独特的理解。
本案在设计手法上突出了文化人温文尔雅,平和理性的特点,用中性色渲染整个色调,家具和软装上偏柔和。让家的感觉既有厚度又不是温馨,在风格定位上吸取了文艺复兴世纪“巴洛克”风中的一些经典元素,既不过分夸张,而又恰到好处的把雍容华贵之气渗透到每个角落,既凸显出大户型的自然优势又彰显业主的个人品味。
轻古典的家装风格摒弃了简约的代办和单调,也没有古典风格中的繁琐和严肃,让人感觉庄重和恬静。
客厅背景采用石材上墙工艺手法,硬化了线条提高了客厅的明亮度,家具混搭的模式,地面波打线铺贴,既明显划分了区域,又提高了档次。
餐厅顶面地面擦用菱形铺贴外框加波打线,餐厅背景墙内边硬包上墙,边框灰镜手边,从视觉上扩大了餐厅面积,增加了意境。

1 Q) w7 w% B7 `0 R3 O8 p2 k
联系方式
咨询QQ:629068887
预约热线:18862982885
公司网址:www.afczs,coм,cп
公司地址:南通市城山路锦安花园附八栋

. |- d* T, y3 c+ e# W) e. V9 D* J3 n# [3 G! ~4 ~+ e0 D6 b1 M
南通0
袁野平面图.png

该用户从未签到

发表于 2015-4-9 17:37 | 显示全部楼层 来自:江苏
4.12下午在金牡丹酒店举办【您定家装,我送建材】活动,优惠:①现场交定金2倍升级直抵工程款,②签单送三星液晶电视、帅康燃气灶,③工程保修各延长一年,凭此短信预约领取价值188元的精美礼品一份,现场咨询:18862982885,地址:开发区星湖101金牡丹大酒店二楼!爱蜂潮装饰期待您的光临。
回复 支持 反对

使用道具 举报

您需要登录后才可以回帖 登录 | 注册

本版积分规则

手机版|无图版|站务联系 | 商务合作 | 平台公约

信息产业部备案:苏ICP备05014191号-1 经营性ICP许可证:苏B2-20110445 苏公网安备 32060202000307号 © 2001-2019 0513.org All Right Reserved.

投诉争议 技术支持:第一互联 GMT+8, 2025-12-20 07:55 , Processed in 0.157985 second(s), 14 queries , MemCache On. 站点统计

快速回复 返回顶部 返回列表