濠滨论坛

点击扫描二维码

查看: 3540|回复: 1

【爱蜂潮装饰】热烈祝贺苏建名都城周先生开工大吉!!!

[复制链接]

该用户从未签到

发表于 2015-3-27 10:05 | 显示全部楼层 |阅读模式 来自:江苏
4 m4 [4 c5 m' y6 O
# S% h( y8 @3 w爱蜂潮装饰
爱蜂潮——中国智慧家居的领跑者!
爱蜂潮——中国家居领域受人尊敬的领导者!
爱蜂潮——中国装饰行业6S环保工程管理体系倡导者!

$ k2 W! C1 P& E! O2 e
热烈祝贺苏建名都城周先生开工大吉!!!
kaigong.png
工程地址:苏建名都城
# _, m1 P- l% H, p6 E- k( k6 ~工程面积:122平米
  L7 x6 Y2 I7 G5 Q
项目经理:康权
开工日期:3月26日
开工现场
mmexport1427420191328.jpg
设计师与业主合影
mmexport1427420194091_副本.jpg
设计师介绍
" C% y  R  U( E) U8 H
姓    名:张明敏
毕业院校:苏州大学
从业年限:7年
获得荣誉:南通TV家装设计大赛最佳创意奖
设计理念:设计有心,魔鬼在细节
设计心语:用我的画笔在图纸上勾勒出你心的港湾
擅长风格:欧式,新中式,新古典,美式
成功案例:第九园,玉兰公寓,天安花园,尚德城邦,绿树湾,全景大厦,世伦名郡,未来景城,保利.香槟国际,骏和.棕榈湾,苏建名都城,万濠新城,苏建花园,水榭花都,御景华庭等
. v8 r: J1 a7 V/ P% i, _0 G
作品介绍
3 D8 ?+ h1 ?/ e/ ~+ T: j
苏建名都城2#702

. a' \# \2 ~- m
设计说明:此户型为苏建名都城2栋702,业主是位年轻时尚的单身女孩,前卫,时尚,学历高,品味的鉴定与生活品质的追求毋容置疑。风格定义为新古典,新古典的优雅,明亮,时尚,与业主兮兮相应。在设计过程中,软装与镜面的搭配,温馨与古典的碰擦,透露着高贵不失典雅,搭配这业主的气质,唯美的家居,更加突出了业主的气质与高贵。
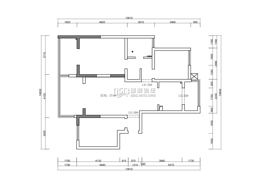
原始图
sujian1.png
平面图
sujian2.png
餐厅效果图
  g6 g9 I+ }0 a
餐厅改_副本.jpg
客厅效果图
客厅改_副本.jpg
2015爱蜂潮合作 logo.png
爱蜂潮1.jpg
联系方式
咨询QQ:629068887
预约热线:18862982885
公司网址:www.afczs,coм,cп
公司地址:南通市城山路锦安花园附八栋
4 z4 n0 ~7 F! s8 C
南通0
0812张明敏_副本.jpg

该用户从未签到

发表于 2015-4-9 17:39 | 显示全部楼层 来自:江苏
4.12下午在金牡丹酒店举办【您定家装,我送建材】活动,优惠:①现场交定金2倍升级直抵工程款,②签单送三星液晶电视、帅康燃气灶,③工程保修各延长一年,凭此短信预约领取价值188元的精美礼品一份,现场咨询:18862982885,地址:开发区星湖101金牡丹大酒店二楼!爱蜂潮装饰期待您的光临。
回复 支持 反对

使用道具 举报

您需要登录后才可以回帖 登录 | 注册

本版积分规则

手机版|无图版|站务联系 | 商务合作 | 平台公约

信息产业部备案:苏ICP备05014191号-1 经营性ICP许可证:苏B2-20110445 苏公网安备 32060202000307号 © 2001-2019 0513.org All Right Reserved.

投诉争议 技术支持:第一互联 GMT+8, 2025-12-20 05:15 , Processed in 0.170656 second(s), 15 queries , MemCache On. 站点统计

快速回复 返回顶部 返回列表