濠滨论坛

点击扫描二维码

查看: 2099|回复: 1

爱蜂潮设计师——袁建设计作品

[复制链接]

该用户从未签到

发表于 2015-3-26 11:27 | 显示全部楼层 |阅读模式 来自:江苏
爱蜂潮装饰
爱蜂潮——中国智慧家居的领跑者!
爱蜂潮——中国家居领域受人尊敬的领导者!
爱蜂潮——中国装饰行业6S环保工程管理体系倡导者!
设计师介绍
姓    名:袁 健
毕业学院:常州工学院
从业年限:8年
获得荣誉:国际建筑装饰室内设计协会会员
中国建筑装饰协会室内设计师二级2011-2012年度龙发装饰集团南通公司年度优秀设计师
设计理念:设计是向客户推荐的一种生活态度!
设计心语:家是内心情怀的完美表露,需要反复斟酌与品味细节与整体!
擅长风格:美式、中式、四园、欧式
成功案例:香槟美墅、金河名人世家、军山半岛、金水湾、高迪晶城、优山美地、水榭花都、长江一号、玉兰公寓、橡树湾、润华国际、尚德城邦、凤凰菜茵苑、英伦上院等。

; ?( _1 s9 C- X6 M' L- C4 S1 n2 T
作品介绍
项目名称:景瑞望府
户型:复式
面积:210平米
基础造价:13万
装修风格:美式
设计部门:焦点首席设计
施工单位:爱蜂潮装饰工程(南通)有限公司
工程类型:半包(水电材料及人工,瓦工辅料及人工,木工材料及人工,芬琳油漆及人工。)
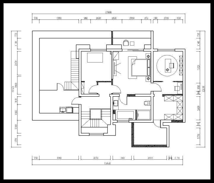
一层原始图

# D" c9 i7 t) d& `
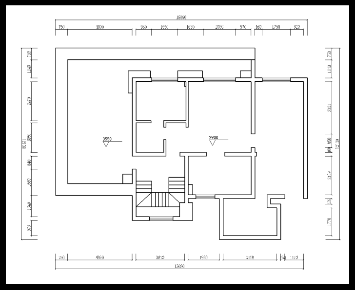
一层平面图
$ T! T* K- l3 ~3 s- F5 f% T
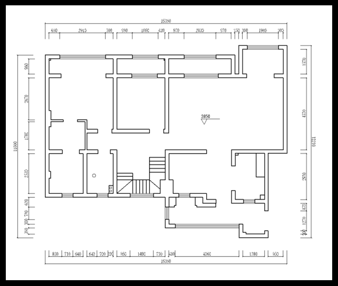
二层原始图
! c  Y: S5 ~+ F, n3 B
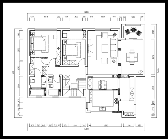
二层平面图

' k6 b% _  u0 y9 k2 ~, I
设计说明
# E3 C( b8 ^) W5 T  h. m" y% G/ e% J
效果图

+ C3 L2 V( f1 X1 e+ {. F( k
! d! D- Y7 d5 h; v- I9 i

; L! J' \3 i  X) z1 ^

& b; g4 E) [+ d2 I' Z, {) n
0 F8 Q, T' x- W4 Y
$ X) b  o3 V! ]" T6 o  t2 B- w
  r+ z* G  b! }" I( K, J$ [
联系方式
咨询QQ:629068887
预约热线:18862982885
公司网址:www.afczs,coм,cп
公司地址:南通市城山路锦安花园附八栋
+ T0 t+ w0 j. ~1 l
南通0

该用户从未签到

发表于 2015-4-9 17:39 | 显示全部楼层 来自:江苏
4.12下午在金牡丹酒店举办【您定家装,我送建材】活动,优惠:①现场交定金2倍升级直抵工程款,②签单送三星液晶电视、帅康燃气灶,③工程保修各延长一年,凭此短信预约领取价值188元的精美礼品一份,现场咨询:18862982885,地址:开发区星湖101金牡丹大酒店二楼!爱蜂潮装饰期待您的光临。
回复 支持 反对

使用道具 举报

您需要登录后才可以回帖 登录 | 注册

本版积分规则

手机版|无图版|站务联系 | 商务合作 | 平台公约

信息产业部备案:苏ICP备05014191号-1 经营性ICP许可证:苏B2-20110445 苏公网安备 32060202000307号 © 2001-2019 0513.org All Right Reserved.

投诉争议 技术支持:第一互联 GMT+8, 2025-12-20 08:19 , Processed in 0.169170 second(s), 13 queries , MemCache On. 站点统计

快速回复 返回顶部 返回列表